Südseitige 2 ZI Wohnung mit Balkon - 7 Minuten fußläufig von Schönbrunn und Hietzinger Platz

Wohnung - Etage, 1140 Wien


Beschreibung der Immobilie

Südseitige 2 ZI Wohnung mit Balkon - 7 Minuten fußläufig von Schönbrunn und Hietzinger Platz

Südseitig gelegen mit Blick in grüne Bäume erfreut die 2 Zimmer Wohnung mit Balkon, Sonnenanbeter mit Freude an einer guten Verkehrsanbindung und nur 9 Minuten fußläufig entfernt vom Meidlinger Eingang des Schönbrunner Schlossparks und dem Hietzinger Platz  mit Einkaufszentrum, Restaurants und Cafe Häusern.



Es bietet sich an das Leben in vollen Zügen zu genießen. 



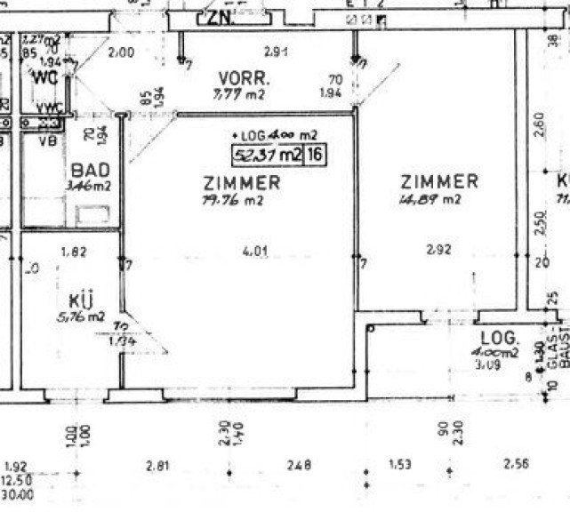
Die 2 Zimmer Wohnung besteht aus:



Vorzimmer



Toilette



Badezimmer mit



Wohnzimmer



Schlafzimmer mit Ausgang auf den Balkon



Heizung und Strom sind in der Miete nicht inkludiert.



Das Akonto für die Zentralheizung beträgt 57Euro /Monat.



Die Wohnung befindet sich in der hinteren Reihe einer Anlage, die im Jahr 1971 erbaut wurde. Alle Fenster sind südseitig ausgerichtet. Die U4 Station (Hietzing), S45 (Breitensee) sowie Straßenbahnlinie Richtung Westbahnhof sind in unmittelbarer Nähe.



Die Wohnung befindet sich im 2. Stock und hat keinen Lift.



Für Fragen und zur Vereinbarung eines Besichtigungstermines stehen wir Ihnen unter T +43 676 504 35 37 zur Verfügung.


Der Immobilienmakler erklärt, dass er – entgegen dem in der Immobilienwirtschaft üblichen Geschäftsgebrauch des Doppelmaklers – einseitig nur für den Vermieter tätig ist.

Infrastruktur / Entfernungen

Gesundheit
Arzt <500m
Apotheke <500m
Klinik <500m
Krankenhaus <2.000m

Kinder & Schulen
Schule <500m
Kindergarten <500m
Universität <500m
Höhere Schule <2.500m

Nahversorgung
Supermarkt <500m
Bäckerei <500m
Einkaufszentrum <1.500m

Sonstige
Geldautomat <500m
Bank <500m
Post <500m
Polizei <1.000m

Verkehr
Bus <500m
U-Bahn <500m
Straßenbahn <500m
Bahnhof <500m
Autobahnanschluss <4.000m

Angaben Entfernung Luftlinie / Quelle: OpenStreetMap

Eckdaten Objektnr. 1513

Art: Wohnung - Etage
Land: Österreich
Baujahr: 1971
Alter: Neubau
Gesamtmiete: 1.075,54
Kaltmiete (netto): 785,00 €
Kaltmiete: 915,00 €
Betriebskosten: 130,00 €
Heizkosten: 69,04 €
MwSt Gesamt: 91,50 €
Wohnfläche: 56,00 m²
Zimmer: 2
Bäder: 1
WC: 4
Balkone: 1
Heizwärmebedarf:  D  221,68 kWh/m²a
fGEE:  D  2,05
Nebenkostenübersicht Miete Immobilie merken Exposé

Ausstattung

Parkett, Fliesen, Zentralheizung, Einbauküche, Dusche


Immobilie anfragen


Ihre persönliche Beratung

3ES Immobilien KG

Mag. Katja Gálffy

3ES Immobilien KG

T +43 676 504 35 37