Wohnen im Dachgeschoss | Terrasse

Wohnung , 1140 Wien


Bahnhof Hütteldorf | U4 Ober St. Veit

Beschreibung der Immobilie

Wohnen im Dachgeschoss | Terrasse

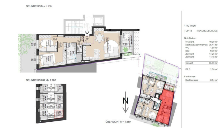
Diese hochwertig sanierte Dachgeschosswohnung befindet sich in einem liebevoll revitalisierten Zinshaus im Herzen des begehrten 14. Wiener Bezirks. Die Kombination aus edlen Materialien und modernster Haustechnik schafft ein exklusives Wohnambiente mit höchstem Komfort.



Das Herzstück der Wohnung bildet der großzügige Wohn- und Essbereich mit direktem Zugang zur Terrasse. Eine durchdachte Raumaufteilung sowie die erstklassige Ausstattung lassen keine Wünsche offen. Besonders attraktiv ist zudem die Möglichkeit, im selben Haus zwei Büroflächen zu erwerben. Dadurch bietet sich eine ideale Kombination aus Wohnen und Arbeiten unter einem Dach – effizient, komfortabel und ohne Zeitverlust.



Für Detailinformationen oder einen Besichtigungstermin stehe ich jederzeit gerne zur Verfügung!



Bernhard FRIEDRICH

+43 660 117 9020

bf@finallyhome.at


Wir weisen darauf hin, dass zwischen dem Vermittler und dem zu vermittelnden Dritten ein familiäres oder wirtschaftliches Naheverhältnis besteht.


Der Vermittler ist als Doppelmakler tätig.

Infrastruktur / Entfernungen

Gesundheit
Arzt <500m
Apotheke <500m
Klinik <2.000m
Krankenhaus <1.500m

Kinder & Schulen
Schule <500m
Kindergarten <500m
Universität <2.000m
Höhere Schule <3.500m

Nahversorgung
Supermarkt <500m
Bäckerei <500m
Einkaufszentrum <3.500m

Sonstige
Geldautomat <500m
Bank <500m
Post <500m
Polizei <1.000m

Verkehr
Bus <500m
U-Bahn <1.000m
Straßenbahn <500m
Bahnhof <1.000m
Autobahnanschluss <4.500m

Angaben Entfernung Luftlinie / Quelle: OpenStreetMap

Eckdaten Objektnr. 1819/65

Art: Wohnung
Land: Österreich
Baujahr: 2025
Zustand: Neuwertig
Kaufpreis: 820.000,00
Nutzfläche: 85,86 m²
Zimmer: 2
Bäder: 1
WC: 1
Terrassen: 1
Keller: 2,58 m²
Heizwärmebedarf: 28,00 kWh/m²a
fGEE: 0,75
Nebenkostenübersicht Kauf Immobilie merken Exposé

Ausstattung

Fliesen, Parkett, Fußbodenheizung, Personenaufzug, Badewanne, Dusche


Immobilie anfragen


Ihre persönliche Beratung

Bernhard Friedrich

finallyHOMEreal GmbH

T +43 660 117 9020