ERSTBEZUG „ein viertel grün“ in Wiener Neustadt - Pärchentraum inkl. Balkon

Wohnung , 2700 Wiener Neustadt , Stadionstraße


Mitten im Grünen und doch mitten im Leben: Das Wohnprojekt „ein viertel grün“ vereint modernen Wohnkomfort mit einer erstklassigen Lage – direkt gegenüber der Merkurcity in Wiener Neustadt. Hier treffen Ruhe, Natur und Stadtleben aufeinander – und schaffen einen Wohnraum, der keinerlei Wünsche offen lässt. In diesem neuen Stadtquartier finden Sie das passende Zuhause: mit gut durchdachten Grundrissen, großzügigen Freiflächen. Die ausgezeichnete Lage macht Ihren Alltag leichter. Das Stadtzentrum, der Bahnhof sowie die Autobahn A2 sind in wenigen Minuten erreichbar. Zahlreiche Nahversorger, Schulen, Kindergärten und medizinische Einrichtungen befinden sich in unmittelbarer fußläufiger Nähe. Die Merkurcity direkt gegenüber sorgt für kurze Wege beim Einkaufen. Die zweitgrößte Stadt Niederösterreichs bietet nicht nur hervorragende Infrastruktur, sondern auch ein breites Freizeit- und Kulturangebot sowie vielfältige Gastronomie, regelmäßige Veranstaltungen, Konzerte und Ausstellungen.

Beschreibung der Immobilie

ERSTBEZUG „ein viertel grün“ in Wiener Neustadt - Pärchentraum inkl. Balkon

Willkommen in Ihrem neuen Zuhause in Wiener Neustadt!



In unserem erstklassigen Wohnquartier bleiben keine Wünsche offen! Hier trifft modernes und zentrumnahes Wohnen auf naturnahe Umgebung - ideal für junge Familien, Paare sowie Einzelpersonen die Wert auf Lebensqualität, Gemeinschaft und Nachhaltigkeit legen.



Familien sind hier bestens versorgt. Direkt im Quartier befindet sich ein moderner Kindergarten. Hier werden Ihre Kleinen optimal betreut - und das ganz in Ihrer Nähe. Nach dem Kindergarten können sich die Kinder noch auf den diversen Spielgeräten austoben. Für die Eltern ist mit Sitzgelegenheiten gesorgt.



Ein eigener Quartierstreff auf dem Areal sorgt für regen Austausch unter Nachbarn und lässt garantiert neue Freundschaften bei Groß und Klein entstehen. 



Das gesamte Areal ist verkehrsberuhigt und umgeben von Grünflächen. Sie müssen jedoch aufgrund der hervorragenden Lage nicht auf die Annehmlichkeiten der Stadt verzichten. 



Sie genießen all die Vorzüge eines urbanen Lebensstil mitten im Grünen!



Hier die Details zu unserem Projekt im Überblick:



  • 39 geförderte Mietwohnungen
  • 2 - 4 Zimmer, ca. 51 m² - 89 m²
  • alle Wohnungen mit Eigengarten und Terrasse bzw. Balkon oder Dachterrasse
  • hochwertige Laminatböden
  • gut durchdachte Grundrisse
  • Tiefgaragenstellplatz, bereits in der Miete inkludiert
  • Fahrrad- und Kinderwageneinstellräume
  • Einlagerungsräume
  • Personenaufzug
  • Müllraum
  • effiziente Photovoltaikanlage am Dach
  • kontrollierte Wohnraumlüftung mit Wärmerückgewinnung und zentraler Lüftungsanlage
  • HWB Wert ca. 23,66 kWh/m²a, fGEE ca. 0,63
  • Fertigstellung voraussichtlich Frühjahr 2026




Anm.: Die winterlichen Bilder wurden mittels KI erstellt.

Willkommen in Ihrem neuen Zuhause!



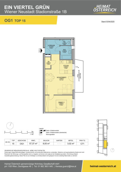
Diese großzügige 2-Zimmer-Wohnung im ersten Obergeschoss bietet auf etwa 57 m² alles, was Sie für ein komfortables und angenehmes Zuhause benötigen. Die ideale Größe macht sie besonders geeignet für Paare oder Singles.



Neben einem stilvollen Wohnambiente überzeugt die Wohnung durch eine durchdachte Raumaufteilung, die höchsten Komfort garantiert.



Als Erstbezug haben Sie die Möglichkeit, die Räumlichkeiten nach Ihren eigenen Vorstellungen zu gestalten.



Vom Wohnzimmer aus erreichen Sie den wunderschönen Balkon, der Ihnen zahlreiche entspannte Stunden im Freien oder einen ruhigen Ausklang des Tages ermöglicht. Der Küchenbereich ist mit einem eigenen Fenster ausgestattet, das einen Blick auf den Balkon bietet. Direkt neben der Kochnische befindet sich ein Abstellraum, der sich hervorragend als Speis eignet.



Das Schlafzimmer ist vom Wohnzimmer aus zugänglich.



Das moderne Badezimmer ist mit einer Badewanne, einem Handwaschbecken und einem Waschmaschinenanschluss ausgestattet. Besonders angenehm ist das Fenster im Badezimmer, das Ihnen täglich Tageslicht bietet.



Das WC ist separat angelegt und befindet sich gleich neben dem Badezimmer.



Mit einem Tiefgaragenabstellplatz ist bestens für Ihren PKW gesorgt. Dieser ist bereits in der Miete inkludiert!



Befristung: unbefristet, 1 Jahr Kündigungsverzicht 3 Monate Kündigungsfrist



Bezug: voraussichtlich Frühjahr 2026



Energiekennzahlen:  Der Heizwärmebedarf  beträgt ca. 23,66 kWh/m²a Klasse B und der Gesamtenergieeffizienz-Faktor ca. 0,63 Klasse A+.



Die monatliche Miete beläuft sich auf € 732,75 inkl. BK und Ust. und der einmalige Finanzierungsbeitrag beträgt € 20.079,50.



Zögern Sie nicht und sichern Sie sich diese einzigartige Wohnung, die modernes Wohnen mit einer hervorragenden Lage kombiniert.



Hier geht es zu weiteren Mietwohnungen: 
Geförderte Mietwohnungen - ein viertel grün



Anm.: Die winterlichen Bilder wurden mittels KI erstellt.

Noch nichts gefunden? Wir informieren Sie über geeignete Immobilienangebote noch vor allen anderen.
Legen Sie jetzt Ihren individuellen Suchagenten unter folgendem Link an. Wir schicken Ihnen passende Immobilien exklusiv vorab zu.
Suchagent anlegen - https://heimat-oesterreich.service.immo/registrieren/de

Infrastruktur / Entfernungen

Gesundheit
Arzt <1.000m
Apotheke <250m
Klinik <2.500m
Krankenhaus <1.250m

Kinder & Schulen
Schule <250m
Kindergarten <500m
Höhere Schule <1.750m
Universität <2.000m

Nahversorgung
Supermarkt <250m
Bäckerei <750m
Einkaufszentrum <250m

Sonstige
Bank <750m
Geldautomat <750m
Post <750m
Polizei <750m

Verkehr
Bus <250m
Autobahnanschluss <3.250m
Bahnhof <1.250m
Flughafen <2.250m

Angaben Entfernung Luftlinie / Quelle: OpenStreetMap

Eckdaten Objektnr. 5028

Art: Wohnung
Land: Österreich
Baujahr: 2025
Zustand: Erstbezug
Alter: Neubau
Gesamtmiete: 732,75
Kaltmiete (netto): 732,75 €
Kaltmiete: 732,75 €
Wohnfläche: 57,37 m²
Zimmer: 2
Bäder: 1
WC: 1
Balkone: 1
Stellplätze: 1
Keller: 3,02 m²
Heizwärmebedarf:  A  23,66 kWh/m²a
fGEE:  A+  0,63
Nebenkostenübersicht Miete Immobilie merken Exposé

Ausstattung

Fliesen, Laminatboden, Personenaufzug, Bad mit Fenster, Badewanne, Tiefgarage


Immobilie anfragen


Ihre persönliche Beratung

Theresa Günzl

Heimat Österreich gemeinnützige Wohnungs- und Siedlungsgesellschaft m.b.H.

T +431 9823601 645

H 0676 3717805