Landsitz am Wallersee
Haus
,
5302
Henndorf am Wallersee
Auf einer den Wallersee überblickenden Anhöhe wurde um 2015 auf einem ca. 17 ha großen Areal ergänzend zum bestehenden historischen Bauernhaus ein Anwesen errichtet, das im Großraum Salzburg und dem Seengebiet seinesgleichen sucht. Der Wallersee ist der größte der Salzburger Seen und weist neben seiner landschaftlichen Schönheit eine hervorragende Wasserqualität auf. Durch die Nähe zur Festspielstadt Salzburg und der Westautobahn A1 (Auffahrt Wallersee) besteht eine perfekte Verkehrsanbindung und sind die Salzburger Innenstadt, der Bahnhof und der Flughafen in 20-30 Minuten erreicht. Die Entfernung nach Wien, München und zum Wörthersee beträgt 2 bis 2,5 Std..
Beschreibung der Immobilie
Landsitz am Wallersee
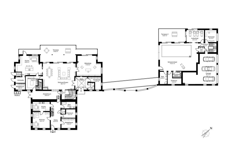
Umgeben von unverbaubarem Grünland, unweit des Ortskerns der Marktgemeinde Henndorf am Wallersee, wurde auf einem ca. 5.700 m² großen Bauplatz zum bestehenden historischen Bauernhaus ein Ensemble mit einem großzügigem Wohnhaus, einem Nebengebäude mit Hallenbad, Wellnessbereich, Hobbyräumen und Garagen sowie einem weiteren Garagengebäude errichtet.
Neben den vielfältigen Möglichkeiten das landwirtschaftliche Grünland zu nutzen, bieten auch die Gebäude viele Nutzungsmöglichkeiten. Mit Ausnahme des Inneren des alten Bauhauses verfügen alle Gebäude über einen hochwertigen Neubaustandard.
Mit seinen drei Baukörpern eignet sich das Anwesen vom großzügigen Wohnsitz/Familiensitz über eine gemischte Wohn- und firmenmäßige Nutzung, bis hin zu Umsetzung von Hobbies mit entsprechendem Platzbedarf. Das Raumprogramm der Gebäude können Sie den Planunterlagen entnehmen.
Die Gebäude- und Energietechnik befindet sich auf höchsten Niveau und erlaubt einen krisensicheren Betrieb. Von fachkundiger Hand errichtet und betrieben, befinden sich die Gebäude außen wie innen in neuwertigem Zustand.
+ Haupthaus
+ Dependance mit Hallenbad/Wellnessbereich
+ Historisches Bauernhaus
+ Garagengebäude
Der Vermittler ist als Doppelmakler tätig.
Infrastruktur / Entfernungen
Gesundheit
Arzt <1.000m
Apotheke <1.000m
Klinik <9.000m
Kinder & Schulen
Schule <1.000m
Kindergarten <3.500m
Universität <3.500m
Nahversorgung
Supermarkt <1.000m
Bäckerei <1.000m
Einkaufszentrum <6.500m
Sonstige
Bank <1.000m
Geldautomat <4.500m
Post <4.500m
Polizei <4.500m
Verkehr
Bus <1.000m
Bahnhof <2.500m
Autobahnanschluss <6.000m
Angaben Entfernung Luftlinie / Quelle: OpenStreetMap
Eckdaten Objektnr. 513/2987
| Art: | Haus |
| Land: | Österreich |
| Kaufpreis: | 9.900.000,00 € |
| Nutzfläche: | 2.184,00 m² |
| Grundstücksfl.: | 139.963,00 m² |
| Bäder: | 6 |
| WC: | 8 |
| Balkone: | 3 |
| Terrassen: | 2 |
| Stellplätze: | 8 |
| Heizwärmebedarf: | C 61,00 kWh/m²a |
| fGEE: | B 0,53 |
Ausstattung
Fliesen, Steinboden, Parkett, Fußbodenheizung, Einbauküche, Wohnküche / offene Küche, Personenaufzug, Bad mit Fenster, Badewanne, Dusche, Kabel/Satelliten-TV, Garage, Parkplatz
Ihre persönliche Beratung
Dieser Makler ist ein offizielles Mitglied des IR – ir.at Mehr Erfahren
