Beschreibung der Immobilie
Nachhaltiges Wohnen am Park – Ihr neues Zuhause
Nachhaltiges Wohnen am Park – Ihr neues Zuhause
In der Linzer Straße entstand eine moderne Wohnhausanlage mit hochwertigen Mietwohnungen zwischen 51,64 und 95,76 m2. Die Anlage verfügt über eine hauseigene Tiefgarage mit Stellplätzen für die zukünftigen Mieter. Das Wohnungsangebot umfasst 2- bis 3-Zimmer-Wohnungen und ist ideal für Singles, Paare sowie Familien. Jede Wohnung bietet einen privaten Außenbereich wie eine Loggia, Terrasse oder einen Garten, um zusätzlichen Freiraum zu schaffen.
Alle Wohnungen verfügen über ein eigenes Kellerabteil. Im Haus befinden sich zudem ein Kinderwagen- und Fahrradabstellraum sowie ein Spielplatz in der Anlage. Sämtliche Mietwohnungen sind vom Keller bis zur jeweiligen Etage über einen Aufzug erreichbar. Alle Einheiten werden modern und bezugsfertig übergeben und erfüllen höchste Wohnansprüche.
Die Wohnanlage wurde in Niedrigenergiebauweise errichtet, was für niedrige Heiz- und Warmwasserkosten sorgt. Das Gebäude zeichnet sich durch Deckenheizung und -Kühlung aus, die über eine Wärmepumpenanlage und Sonnenkollektoren betrieben wird. Geothermie durch Tiefenbohrungen ergänzt das nachhaltige Energiekonzept.
Die Ausstattung:
- Hochwertige Materialien
- Parkettböden in den Wohnräumen
- vollausgestattete Küchen (werden nach Anmietung eingebaut)
- Fliesen in den Nassräumen
- Außenliegender Sonnenschutz mit Fernsteuerung
- Großzügige Freiflächen wie Balkone oder Loggien
- Private Kellerabteile
- Gemeinschaftlicher Fahrradraum
Die Lage:
Das Projekt bietet eine hervorragende Infrastruktur. In der Umgebung befinden sich zahlreiche Nahversorger und Geschäfte entlang der Hütteldorfer Straße sowie das Auhofcenter mit einer großen Auswahl an Einkaufsmöglichkeiten, Gastronomie und Unterhaltung. Schulen, wie die Volksschule in der Hochsatzengasse, sind fußläufig erreichbar, während weiterführende Schulen gut an den öffentlichen Nahverkehr angebunden sind. Zudem liegt die A1-Autobahnauffahrt in unmittelbarer Nähe.
Öffentliche Verkehrsmittel:
- Buslinie 47A mit Anbindung an die U4 (Ober St. Veit)
- Straßenbahnlinie 52 (Hochsatzengasse) , 49 (Hochsatzengasse/Hütteldorfer Straße)
Befristung: 5 Jahre, 1 Jahr Kündigungsverzicht, 3 Monate Kündigungsfrist
Ein Parkplatz kann ab € 134,- brutto angemietet werden.
Strom, Heizung und Warm-/Wasser werden nach Verbrauch abgerechnet.
zzgl. 1 €/m² netto Akonto Heizung und Warmwasser
Nebenkosten
3 BMM Kaution
Wir weisen darauf hin, dass zwischen dem Vermittler und dem zu vermittelnden Dritten ein familiäres oder wirtschaftliches Naheverhältnis besteht.
Der Immobilienmakler erklärt, dass er – entgegen dem in der Immobilienwirtschaft üblichen Geschäftsgebrauch des Doppelmaklers – einseitig nur für den Vermieter tätig ist.
Infrastruktur / Entfernungen
Gesundheit
Arzt <250m
Apotheke <500m
Klinik <1.750m
Krankenhaus <1.250m
Kinder & Schulen
Schule <250m
Kindergarten <250m
Universität <1.750m
Höhere Schule <3.500m
Nahversorgung
Supermarkt <500m
Bäckerei <500m
Einkaufszentrum <3.250m
Sonstige
Geldautomat <500m
Bank <500m
Post <500m
Polizei <1.000m
Verkehr
Bus <250m
Straßenbahn <250m
U-Bahn <750m
Bahnhof <750m
Autobahnanschluss <4.250m
Angaben Entfernung Luftlinie / Quelle: OpenStreetMap
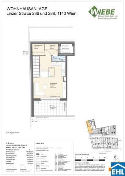
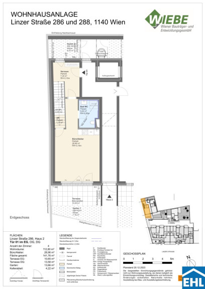
Eckdaten Objektnr. 91388
| Art: | Haus - Doppelhaushälfte |
| Land: | Österreich |
| Baujahr: | 2024 |
| Zustand: | Erstbezug |
| Alter: | Neubau |
| Gesamtmiete: | 2.635,26 € |
| Kaltmiete (netto): | 2.101,88 € |
| Kaltmiete: | 2.395,69 € |
| Betriebskosten: | 293,81 € |
| MwSt Gesamt: | 239,57 € |
| Wohnfläche: | 141,76 m² |
| Zimmer: | 4,50 |
| Bäder: | 2 |
| WC: | 3 |
| Terrassen: | 2 |
| Garten: | 14,88 m² |
| Keller: | 4,22 m² |
| Heizwärmebedarf: | B 25,80 kWh/m²a |
| fGEE: | A 0,71 |
Ausstattung
Parkett, Fliesen, Erdwärme, Einbauküche, Wohnküche / offene Küche, Personenaufzug, Südbalkon, Badewanne, Dusche
Ihre persönliche Beratung
Dieser Makler ist ein offizielles Mitglied des IR – ir.at Mehr Erfahren
