2 Loggien und U-Bahn-Nähe!

Wohnung , 1150 Wien,Rudolfsheim-Fünfhaus , Viktoriagasse


Die Wohnung in der einer ruhigen Seitenstraße besticht durch ihre ideale Lage im pulsierenden 15. Bezirk. Mit einer östlichen und westlichen Ausrichtung genießen Sie sowohl morgendliche Sonne als auch abendliches Licht. Der nahegelegene Westbahnhof sorgt für exzellente Anbindung an den öffentlichen Verkehr, während die Mariahilfer Straße mit ihren zahlreichen Geschäften und Cafés nur einen kurzen Spaziergang entfernt ist. Hier erleben Sie urbanes Lebensgefühl in bester Form!

Beschreibung der Immobilie

2 Loggien und U-Bahn-Nähe!

Quick facts: Westbahnhof I Ikea I ruhige Seitenstraße I 2 Loggien I 2 Zimmer I separate Küche


Ich freue mich auf Ihren Anruf

Irene Lindenberger, 01/526 26 36 



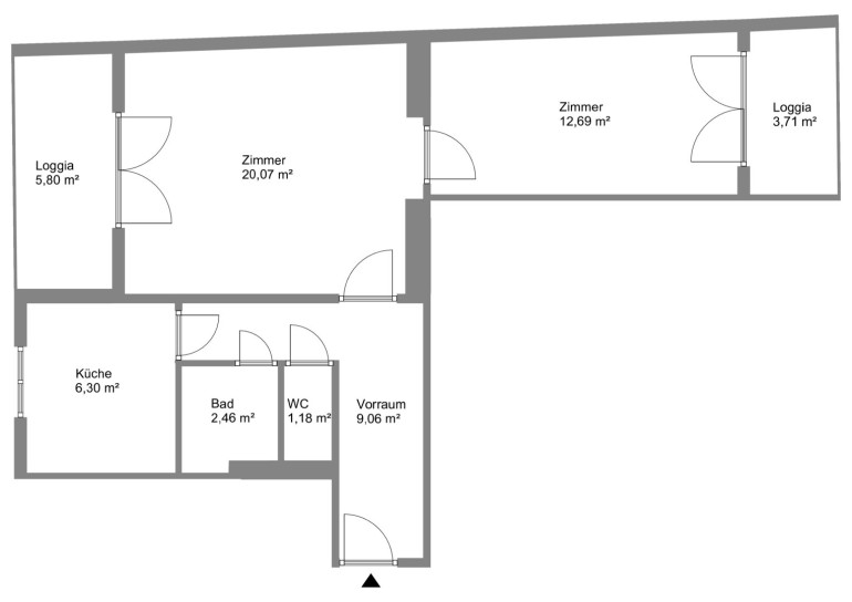
In einer ruhigen Seitenstraße der Mariahilfer Straße, in der Nähe vom Westbahnhof, wartet diese sehr gut geschnittene 2 Zimmerwohnung mit zwei Loggien auf Sie. Die Nutzfläche der Wohnung beträgt circa 52qm zuzüglich circa 10qm für die zwei Loggien. Das Apartment befindet sich im 1. Liftstock eines gepflegten Neubaus. 



Raumaufteilung:
Vorraum

Separate Toilette

Badezimmer mit Dusche

Separate Küche mit sämtlichen Geräten und Platz für einen Frühstückstisch

Zimmer mit Ausgang zur Loggia und 

Zugang zum zweiten Zimmer, ebenfalls mit Loggia



Die Wohnung ist derzeit noch bis Ende April 2027 befristet vermietet.

Jahresnettomieteinnahmen: EUR 5.618,64



HWB: 89



Ich freue mich auf Ihren Anruf

Irene Lindenberger, 01/526 26 36 




Der Vermittler ist als Doppelmakler tätig.

Eckdaten Objektnr. 1760/675

Art: Wohnung
Land: Österreich
Baujahr: 1969
Zustand: Gepflegt
Alter: Neubau
Kaufpreis: 249.000,00
Betriebskosten: 154,08 €
MwSt Gesamt: 15,41 €
Wohnfläche: 52,00 m²
Nutzfläche: 62,00 m²
Zimmer: 2,50
Bäder: 1
WC: 1
Heizwärmebedarf:  C  89,00 kWh/m²a
fGEE:  D  1,79
Nebenkostenübersicht Kauf Immobilie merken Exposé

Ausstattung

Gas, Etagenheizung, Einbauküche, Personenaufzug, Ostbalkon, Westbalkon, Dusche


Immobilie anfragen


Ihre persönliche Beratung

Lind Immobilien

Irene Lindenberger

Lind Immobilien

T +43 1 526 26 36

H +43 660 824 3952