Erstbezug- 2 Zimmer- Gartenwohnung

Wohnung , 3430 Tulln an der Donau


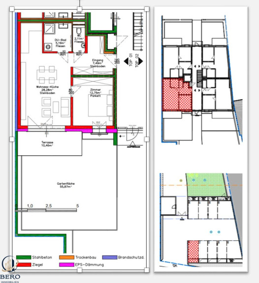
Beschreibung der Immobilie

Erstbezug- 2 Zimmer- Gartenwohnung

Wohnen am Fluss – Exklusives Neubauprojekt in Langenlebarn an der Donau



Lebensqualität trifft Design



Inmitten der idyllischen Gemeinde Langenlebarn, nur wenige Minuten von Tulln an der Donau entfernt, wurde ein Wohnprojekt errichtet, das modernes Wohnen mit traumhafter Naturnähe vereint. Hier verbinden sich Ruhe, Stil und Lebensfreude – und das direkt am Ufer der Donau gelegen.



Das Wohnprojekt



Ein Zuhause mit Charakter



Die Architektur vereint klare Linien, warme Materialien und durchdachte Raumkonzepte. Jede Wohnung öffnet sich über große Glasflächen zum Grün und zur Donau – ein Gefühl von Freiheit und Leichtigkeit durchzieht das gesamte Ensemble. In diesem Mehrparteienhaus wohnen Sie modern, ruhig und dennoch bestens angebunden – ein Ort zum Ankommen, Wohlfühlen und Genießen.



Ein modernes Ensemble aus 8 exklusiven Wohnungen und 1 Penthouse mit Privatpool – errichtet in Ziegelmassivbauweise von der renommierten ZÖFA GmbH. Die Wohnflächen überzeugen mit intelligenten Grundrissen, großzügigen Außenflächen (Gärten, Terrassen oder Balkone) und hochwertiger Ausstattung.



  • 2- bis 3-Zimmer-Wohnungen
  • Wohn-Nutzflächen- ca. 53 m²- ca. 70 m² 
  • Private Außenflächen: Garten, Terrasse oder Balkon
  • Penthouse mit Pool als Highlight des Projekts


Ausstattung & Besonderheiten



  • Erstbezug & hochwertige Materialien
  • 3-fach verglaste Holz-Alu-Fenster
  • elektrische Raffstores von JOSKO
  • Fischgrät-Parkettböden in den Wohnräumen
  • Travertin-Natursteinböden in Bad und Küche
  • Fußbodenheizung für behagliches Wohnklima
  • Vollholz-Terrassenbeläge von Kramer & Kramer
  • Überdachte Parkplätze und Abstellräume




Lage, Infrastruktur & Bildungseinrichtungen



  • Ob Spaziergänge entlang des Donauradwegs, sportliche Aktivitäten oder entspannte Nachmittage am Wasser – die Umgebung bietet alles, was das Herz begehrt.
  • Kindergarten, Volksschule, Lebensmittelgeschäfte und charmante Restaurants sind bequem fußläufig erreichbar.
  • Die Verkehrsanbindung ist hervorragend: Der Bahnhof Langenlebarn liegt nur wenige Gehminuten entfernt, die neu errichtete Park & Ride-Anlage sorgt für zusätzlichen Komfort.
  • Von hier aus sind Sie in wenigen Minuten in Tulln, rasch in Wien oder im Tullnerfeld – perfekt für Pendler und Naturliebhaber zugleich.




Weiterführende Informationen



Wir weisen ausdrücklich auf unser wirtschaftliches Naheverhältnis mit dem Abgeber/der Abgeberin hin! Irrtum und Änderungen vorbehalten! Die angeführten Bilder sind Visualisierungen. Abänderungen zur tatsächlichen Ausführung können resultieren. Die auf den Bildern ersichtlichen Einrichtungsgegenstände und Accessoires werden nicht mit verkauft. Eventuelle Änderungen der vorliegenden Baubeschreibung und Planung, die sich auf Grund von behördlichen Auflagen, Höherer Gewalt, Lieferengpässe, Kundenwünschen oder sonst notwendigen technischen Gründen ergeben, bleiben vorbehalten. Die ursprünglich ausgeschriebene Qualitätsnorm wird jedoch jederzeit gewährleistet. Alle Angaben ohne Gewährleistungsanspruch! Die Angaben im Exposé erfolgen im Auftrag unseres Auftraggebers. Für die Richtigkeit und Vollständigkeit der uns zur Verfügung gestellten Unterlagen/Auskünfte durch Veräußerer, Behörden usw. übernehmen wir keine Gewähr. Eigene Haftung ist ausgeschlossen.


Wir weisen darauf hin, dass zwischen dem Vermittler und dem zu vermittelnden Dritten ein familiäres oder wirtschaftliches Naheverhältnis besteht.


Der Vermittler ist als Doppelmakler tätig.

Infrastruktur / Entfernungen

Gesundheit
Arzt <500m
Apotheke <4.000m
Krankenhaus <4.500m

Kinder & Schulen
Schule <500m
Kindergarten <500m
Universität <4.000m
Höhere Schule <5.000m

Nahversorgung
Supermarkt <500m
Bäckerei <500m
Einkaufszentrum <5.000m

Sonstige
Geldautomat <5.000m
Bank <5.000m
Post <500m
Polizei <4.500m

Verkehr
Bus <500m
Autobahnanschluss <4.000m
Bahnhof <1.000m
Flughafen <1.000m

Angaben Entfernung Luftlinie / Quelle: OpenStreetMap

Eckdaten Objektnr. 5660/7840

Art: Wohnung
Land: Österreich
Baujahr: 2024
Zustand: Erstbezug
Alter: Neubau
Kaufpreis: 259.600,00
Betriebskosten: 203,79 €
Heizkosten: 50,00 €
MwSt Gesamt: 25,38 €
Wohnfläche: 55,82 m²
Zimmer: 2
Bäder: 1
WC: 1
Terrassen: 1
Stellplätze: 1
Garten: 55,87 m²
Keller: 2,61 m²
Heizwärmebedarf:  B  26,20 kWh/m²a
fGEE: 0,79
Nebenkostenübersicht Kauf Immobilie merken Exposé

Ausstattung

Fliesen, Parkett, Fußbodenheizung, Wohnküche / offene Küche, Personenaufzug, Südbalkon, Dusche, Carport


Immobilie anfragen


Ihre persönliche Beratung

Bero Immobilien GmbH

Norbert Vukits

Bero Immobilien GmbH

T +43 1 9978064

H +43 676 536 26 42