Rendite- & Entwicklungspotential nahe FH Eggenberg!

Zinshaus Renditeobjekt - Wohnanlagen, 8020 Graz


Unweit der FH Eggenberg gelegen ist die Infrastruktur für den täglichen Bedarf nahezu perfekt. Geschäfte, Schulen, Kinderbetreuung, Ärzte, Apotheke, Cafés, Restaurants, Bus und Bim finden sich hier in fussläufiger Entfernung!

Beschreibung der Immobilie

Rendite- & Entwicklungspotential nahe FH Eggenberg!

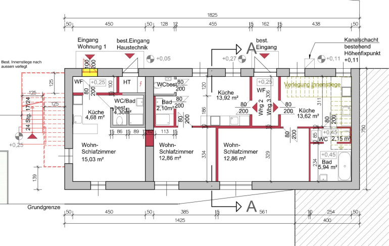
Das Objekt wurde 2007 komplett saniert und besteht heute aus zwei separaten Einheiten im EG und DG.



Aktuell ist das Erdgeschoss als Loft gestaltet. Laut vorhandenem Einreichplan könnte es in 3 separate Einheiten mit je ca. 27, 30 und 34qm geteilt werden.



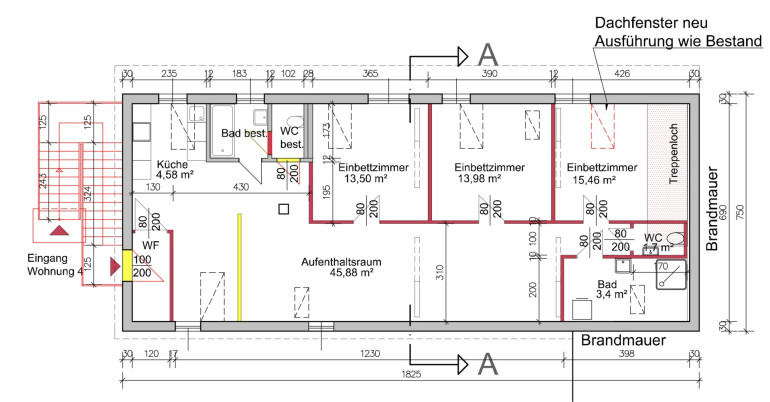
Das Dachgeschoss mit seinen ca. 98qm ist bereits als Wohnung ausgebaut und eignet sich perfekt für die Vermietung an Wohngemeinschaften! Es besteht aus 3 Schlafzimmern, 2 Bädern, 2 WCs, einer Küche mit Einbaugeräten und einem Wohnzimmer.



So könnten hier in Zukunft insgesamt 4 Wohneinheiten mit einer gesamten Fläche von ca. 189qm entstehen.



2 Parkplätze sind auf dem Grundstück vorhanden. Eine Gartennutzung ist möglich.



Die Widmung des Grundstückes lautet:  KG 0,8-2,0

Infrastruktur / Entfernungen

Gesundheit
Arzt <500m
Apotheke <500m
Klinik <1.000m
Krankenhaus <1.000m

Kinder & Schulen
Schule <500m
Kindergarten <500m
Universität <500m
Höhere Schule <500m

Nahversorgung
Supermarkt <500m
Bäckerei <500m
Einkaufszentrum <1.500m

Sonstige
Geldautomat <500m
Bank <500m
Post <500m
Polizei <1.000m

Verkehr
Bus <500m
Straßenbahn <500m
Autobahnanschluss <4.500m
Bahnhof <1.000m
Flughafen <10.000m

Angaben Entfernung Luftlinie / Quelle: OpenStreetMap

Eckdaten Objektnr. 6762/281

Art: Zinshaus Renditeobjekt - Wohnanlagen
Land: Österreich
Baujahr: 1940
Zustand: Modernisiert
Kaufpreis: 400.000,00
Nutzfläche: 197,00 m²
Grundstücksfl.: 513,00 m²
Stellplätze: 2
Heizwärmebedarf:  E  160,00 kWh/m²a
fGEE:  D  2,27
Nebenkostenübersicht Kauf Immobilie merken Exposé

Ausstattung

Gas, Zentralheizung, Einbauküche, Bad mit Fenster, Badewanne, Dusche, Parkplatz


Immobilie anfragen


Ihre persönliche Beratung

ASB Immobilien GmbH

Mag. Axel Pernitsch

ASB Immobilien GmbH

H +436648104420