NEUBAU 2-Zimmer-ERSTBEZUG mit Balkon im 1. OG in 1210 Wien! Top 1/5

Wohnung - Terrassenwohnung, 1210 Wien


Diese attraktive Balkonwohnung im 21. Bezirk von Wien besticht durch ihre ideale Lage. Nur wenige Gehminuten von der Alten Donau entfernt, genießen Sie hier nicht nur Natur, sondern auch eine hervorragende Anbindung. Der Franz-Jonas-Platz und der Bahnhof Wien Floridsdorf sind in der Nähe. Alle wichtigen Einrichtungen wie Arzt, Apotheke, Schulen, Kindergärten und Einkaufsmöglichkeiten sind fußläufig erreichbar. Perfekt für urbanes Wohnen mit hoher Lebensqualität!

Beschreibung der Immobilie

NEUBAU 2-Zimmer-ERSTBEZUG mit Balkon im 1. OG in 1210 Wien! Top 1/5

Willkommen in Ihrem neuen Zuhause in 1210 Wien – einer kompakten Balkonwohnung, die Ihnen das Beste aus urbanem Wohnen und naturnaher Lebensqualität bietet. Diese lichtdurchflutete Wohnung im 1. Liftstock überzeugt nicht nur durch ihren modernen Erstbezug, sondern auch durch einer durchdachten Raumaufteilung und hochwertige Ausstattung.



Mit einer Fläche von ca. 48 m² verteilt auf 2 Zimmer und Nebenräume, bietet Ihnen diese Wohnung ausreichend Platz, um Ihre Wohnträume zu verwirklichen. Die offene Gestaltung und die großen Fenster sorgen für eine angenehme Atmosphäre.



Die Ausstattung dieser Wohnung lässt keine Wünsche offen. Fliesen und Fußbodenheizung sorgen für ein angenehmes Raumklima, während die zentrale Heizungsanlage (Fußbodenheizung mittels Fernwärme) für eine wohlige Wärme in den kälteren Monaten sorgt. Das moderne Badezimmer ist mit einer komfortablen Badewanne ausgestattet.



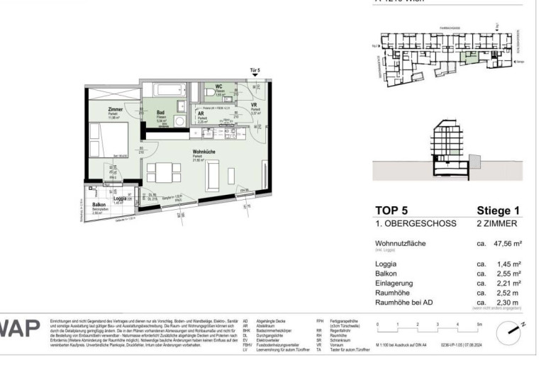
Wohnungsbeschreibung Stiege 1 - TOP 5 mit ca. 48 m² Wohnfläche plus Balkon befindet sich im 1. Liftstock:



Räumlichkeiten:



Vorraum (ca. 3 m²), Abstellraum (ca. 2 m²), extra WC (ca. 2 m²), Wohnküche (ca. 22 m²)  mit Zugang zum Schlafzimmer und zum Balkon, Schlafzimmer (ca. 12 m²) mit Zugang zum Badezimmer, Badezimmer (ca. 5 m²) mit Badewanne, Handwaschbecken und Waschmaschinenanschluss, Balkon (ca. 4 m²) SüdWest



AUSSTATTUNG:


  • Eichenparkettböden aus Österreich
  • Markensanitärprodukte
  • Außenliegender Sonnenschutz
  • Paketboxenanlage kombiniert mit Brieffachanlage
  • Digitales Schwarzes Brett
  • Digitale Gegensprechanlage via App
  • Smarte Hausverwaltung - App „puck
  • Photovoltaikanlagen am Dach für die Allgemeinflächen
  • Gemeinschaftsraum für alle Bewohner
  • Tiefgarage mit 41 KFZ und 2 Motorrad Abstellplätzen
  • Fahrrad- und Kinderwagenabstellraum




Die Lage dieser Immobilie ist hervorragend. Mit einer erstklassigen Verkehrsanbindung – Bus, U-Bahn, Straßenbahn und sogar ein Bahnhof in der Nähe – sind Sie bestens vernetzt. Der Autobahnanschluss ist ebenfalls schnell erreichbar, was Ihnen die Mobilität bietet, die Sie für einen stressfreien Alltag brauchen.



Die Umgebung lässt ebenfalls keine Wünsche offen. Ob Arzt, Apotheke oder Klinik – alles ist in unmittelbarer Nähe. Für Familien sind Schulen, Kindergärten und sogar eine Universität in Reichweite, während sich Supermärkte, Bäckereien und ein großes Einkaufszentrum für den täglichen Bedarf ebenfalls in der Nachbarschaft befinden.



Genießen Sie das pulsierende Leben der Stadt, während Sie gleichzeitig in einem ruhigen und modernen Zuhause wohnen. Diese Terrassenwohnung in 1210 Wien ist nicht nur eine attraktive Investition, sondern auch eine Einladung zu einem neuen Lebensstil.



Im Haus stehen derzeit noch 45 2 - 4 Zimmer Erstbezug-Wohneinheiten von ca. 40 - 130 m2 mit Balkonen und Terrassen vom EG bis zum DG zur Verfügung! Auf Anfrage senden wir Ihnen gerne eine entsprechende Projektübersicht! www.tmu-real.at



--------



Mit der Wohnungseigentumsbegründung, Kaufvertragserrichtung, treuhändigen Abwicklung und grundbücherlichen Durchführung ist die Rechtsanwaltskanzlei Tiefenthaler Gnesda beauftragt. Die Gesamtkosten für die angeführten Dienstleistungen belaufen sich auf 1,5% zzgl. Umsatzsteuer. Hinzu kommen die Beglaubigungskosten für die Unterschriften.



Dieses Objekt wird Ihnen unverbindlich und freibleibend zum Kauf angeboten. Oben angeführte Angaben basieren auf Informationen und Unterlagen des Eigentümers und sind unsererseits ohne Gewähr.



Als Vermittlungshonorar gelten die allgemeinen Geschäftsbedingungen und die Verordnung für Immobilienmakler des BM für Handel, Gewerbe und Industrie, BGBL. 297/1996. Für den Fall, dass es diesbezüglich zu einem entsprechenden Rechtsgeschäft kommt, verrechnen wir Ihnen eine Vermittlungsprovision von 3 Prozent der Kaufsumme zuzüglich der gesetzlichen Mehrwertsteuer.



Für weitere Informationen bzw. Ihren Besichtigungstermin steht Ihnen unser Herr Musser unter 0699/11105690 oder per Mail unter office@tmu-real.at gerne zur Verfügung!




Infrastruktur / Entfernungen

Gesundheit
Arzt <500m
Apotheke <500m
Klinik <500m
Krankenhaus <1.500m

Kinder & Schulen
Schule <500m
Kindergarten <500m
Universität <500m
Höhere Schule <500m

Nahversorgung
Supermarkt <500m
Bäckerei <500m
Einkaufszentrum <500m

Sonstige
Geldautomat <500m
Bank <500m
Post <500m
Polizei <1.000m

Verkehr
Bus <500m
U-Bahn <500m
Straßenbahn <500m
Bahnhof <500m
Autobahnanschluss <1.000m

Angaben Entfernung Luftlinie / Quelle: OpenStreetMap

Eckdaten Objektnr. 4976/1278

Art: Wohnung - Terrassenwohnung
Land: Österreich
Baujahr: 2025
Zustand: Erstbezug
Alter: Neubau
Kaufpreis: 298.900,00
Kaufpreis / m²: 5.797,13 €
Wohnfläche: 47,56 m²
Nutzfläche: 51,56 m²
Zimmer: 2
Bäder: 1
WC: 1
Balkone: 1
Keller: 2,20 m²
Heizwärmebedarf:  A  22,80 kWh/m²a
fGEE:  A  0,71
Nebenkostenübersicht Kauf Immobilie merken Exposé

Ausstattung

Parkettboden, Fliesen, Fußbodenheizung, Zentralheizung, Personenaufzug, Badewanne, Kabel/Satelliten-TV


Immobilie anfragen


Ihre persönliche Beratung

TMU-Realitäten

Thomas Musser

TMU-Realitäten

T +43 699/1110 5690

H +43 699 111 056 90

F +43 2687/42 396