Wohnen im Schloss Schwarzenegg! - 2 - Zimmer Wohnung

Wohnung , 8410 Wildon , Schwarzeneggweg 1


Das Schloss Schwarzenegg liegt ruhig und zugleich verkehrsgünstig in Wildon, nur wenige Minuten vom Ortszentrum entfernt. Einkaufsmöglichkeiten, Gastronomie, Schule und Bahnhof sind bequem erreichbar. Graz ist über die A9 oder den Zug in rund 20–25 Minuten erreichbar.

Beschreibung der Immobilie

Wohnen im Schloss Schwarzenegg! - 2 - Zimmer Wohnung

Objektbeschreibung



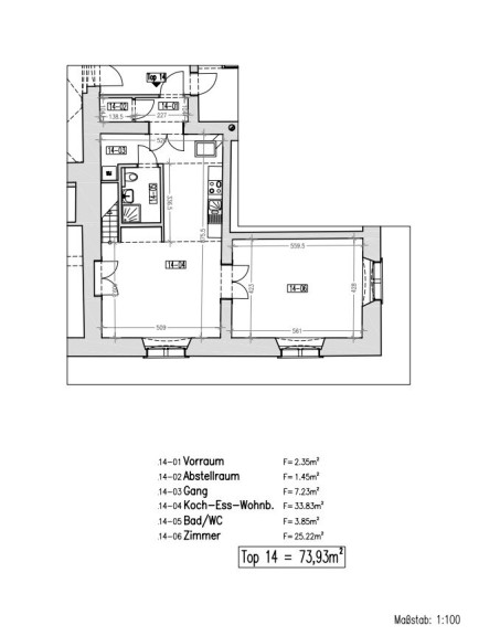
Diese 2-Zimmer-Wohnung befindet sich im geschichtsträchtigen Schloss Schwarzenegg in Wildon und verbindet historischen Flair mit modernem Wohnkomfort.

Das Objekt liegt im 2. Obergeschoss, das bequem mit dem Lift erreichbar ist.



Die Wohnung präsentiert sich in ausgezeichnetem Zustand und überzeugt durch eine neuwertige Küche, ein modern ausgestattetes Badezimmer sowie einen schönen Holzboden. Der großzügige Grundriss schafft ein offenes, helles Wohngefühl, ergänzt durch eine erhöhte Galerie, die sich als Arbeits- oder Lagerbereich nutzen lässt. Der Wohnung ist ein eigener Carport-Stellplatz zugeordneten.



Wohnfläche: 73,93 m²

Stockwerk: 2. Obergeschoss (mit Lift)

Bezug: ab sofort

Heizung: Fernwärme

Parkplatz: 1 Carport-Stellplatz inklusive




Ausstattung




  • Neuwertige Einbauküche



  • Modernes Badezimmer



  • Großzügiger Wohn-Essbereich



  • Erhöhte Fläche zur flexiblen Nutzung



  • Lift im Haus



  • Carport-Stellplatz



  • Fernwärmeheizung





Sonstiges



Es besteht die Möglichkeit, die Grünflächen im Schlosshof (zwischen Schloss, Pferdestall und Parkflächen) sowie den Rosengarten (innerhalb der östlich des Schlosses gelegenen Balustrade) und die Parkflächen mitzubenutzen.



Im Schloss Schwarzenegg befindet sich im 2. Obergeschoss eine Bibliothek, die allen Mietern gemeinschaftlich zur Verfügung steht.

Darüber hinaus können drei Räumlichkeiten im Erdgeschoss – Kapelle, Barocksaal und Gastro-Küche – sowie die Terrasse mit Grillplatz im Rosengarten und die WC-Anlage im ehemaligen Pferdestall von den Mietern prekaristisch mitbenützt werden.



Die Wohnung ist ab sofort beziehbar.

Ideal für Singles oder Paare, die das Besondere suchen – Wohnen mit Geschichte und modernem Komfort.





Hinweis zur Miete:
Die angeführte Miete basiert auf einer derzeit noch gültigen Wohnbauförderung, die mit 30.06.2033 ausläuft. Bis zu diesem Zeitpunkt wird die Wohnung zu einem geförderten Mietzins angeboten. Nach Ablauf der Förderperiode wird ein neuer, nicht geförderter Mietzins festgelegt.


Wir weisen darauf hin, dass zwischen dem Vermittler und dem zu vermittelnden Dritten ein familiäres oder wirtschaftliches Naheverhältnis besteht.


Der Immobilienmakler erklärt, dass er – entgegen dem in der Immobilienwirtschaft üblichen Geschäftsgebrauch des Doppelmaklers – einseitig nur für den Vermieter tätig ist.

Infrastruktur / Entfernungen

Gesundheit
Arzt <800m
Apotheke <1.375m

Kinder & Schulen
Schule <1.675m
Kindergarten <1.725m

Nahversorgung
Supermarkt <725m
Bäckerei <1.975m

Sonstige
Bank <1.550m
Geldautomat <1.550m
Post <3.225m
Polizei <1.800m

Verkehr
Bus <625m
Autobahnanschluss <1.375m
Bahnhof <1.950m

Angaben Entfernung Luftlinie / Quelle: OpenStreetMap

Eckdaten Objektnr. 7386/20250653

Art: Wohnung
Land: Österreich
Baujahr: 1600
Zustand: Gepflegt
Alter: Altbau
Gesamtmiete: 956,50
Kaltmiete (netto): 464,90 €
Kaltmiete: 653,00 €
Betriebskosten: 103,94 €
Heizkosten: 192,83 €
MwSt Gesamt: 110,67 €
Wohnfläche: 73,93 m²
Nutzfläche: 73,93 m²
Zimmer: 2,50
Heizwärmebedarf:  D  113,30 kWh/m²a
fGEE:  C  1,73
Nebenkostenübersicht Miete Immobilie merken Exposé

Ausstattung

Fernwärme, Einbauküche, Personenaufzug, Carport


Immobilie anfragen


Ihre persönliche Beratung

Andreas Fischer

Immobilien Huber

T +43 660 3665730

H +43 660 3665730