Erstbezug: Willkommen in Ihrem neuen, loftartigen Atelier / Büro / Praxis im Herzen von Margareten !

Büro / Praxis , 1050 Wien,Margareten


Margaretenplatz / Mitersteig

Beschreibung der Immobilie

Erstbezug: Willkommen in Ihrem neuen, loftartigen Atelier / Büro / Praxis im Herzen von Margareten !

Lassen Sie sich von dieser attraktiven Immobilie, zwischen Margaretenplatz und Mittersteig gelegen, überzeugen.



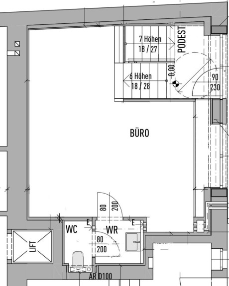
Auf einer großzügigen Fläche von 70,34 m² finden Sie hier die perfekte Umgebung für Ihre geschäftlichen Aktivitäten oder Ihre medizinische Praxis. Der Erstbezug bietet Ihnen die Möglichkeit, Ihre Visionen direkt umzusetzen und Ihre individuellen Gestaltungsideen zu verwirklichen.



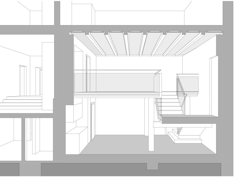
Diese loftartige Einheit im Erdgeschoss und Kellergeschoss besticht durch zwei freundliche Räume, die vielfältige Nutzungsmöglichkeiten bieten. Egal, ob Sie Platz für Büroarbeit, Besprechungen oder für Behandlungen benötigen, hier finden Sie die ideale Lösung. Die beiden WCs mit Handwaschbecken sorgen für zusätzlichen Komfort und praktischen Nutzen, sowohl für Sie als auch für Ihre Kunden oder Patienten.



Das Büro/Praxis wird mit einer Elektrofußbodenheizung beheizt. Die Elektroanschlüsse für ein Standklimagerät sind vorhanden. Eine Leerverrohrung für die EDV besteht und führt in den Abstellraum im Untergeschoss, welcher sich auch sehr gut als Serverraum eignet.  



Die Lage dieser Immobilie könnte nicht besser sein. Durch die hervorragende Verkehrsanbindung sind Sie schnell und unkompliziert erreichbar.



Busse ( 12A,13A, 14A und 59A ) , U-Bahn ( 44 Pilgramgesse ), Straßenbahn 1,62 und Badner Bahn befinden sich in direkter oder indirekter Nähe und ermöglichen es Ihren Kunden, Sie ohne Umwege zu erreichen.



Die Umgebung ist ebenso attraktiv: In der Nähe finden Sie alles, was Sie für den täglichen Bedarf benötigen. Ob Arzt, Apotheke, Klinik oder Krankenhaus – die medizinische Versorgung ist sichergestellt. Schulen, Kindergärten sowie Hochschulen und höhere Schulen machen die Lage besonders interessant für Familien und junge Menschen. Zudem sind Supermarkt, Bäckerei und ein Einkaufszentrum fußläufig erreichbar, was Ihnen und Ihren Mitarbeitern die Pausen oder den Einkauf während der Arbeit erleichtert.



Nutzen Sie diese seltene Gelegenheit, eine Immobilie in einer so zentralen und gut angebundenen Lage zu mieten! 



Es wird ein unbefristetes Mietverhältnis angeboten, dies ist eine tolle Investition in Ihre berufliche Zukunft.



Lassen Sie sich von dieser Immobilie überzeugen und starten Sie in eine erfolgreiche Zukunft mitten in Margareten !



Energiekennziffern wurden beim Eigentümer angefragt (§ 9 Abs/ EAVG 2012)



Terminvereinbarungen unter 01/713 58 22 oder unter 0664/231 45 37



Trimond Immobilienmakler GmbH 



1030 Wien, Hintzerstraße 1/9



Für allfällige Fehlinformationen bzw. Irrtümer in den Angaben übernehmen wir keine Haftung!



Nähere Informationen über die Datenschutzverordnung finden sie unter www.trimond.at


Hinweis gemäß Energieausweisvorlagegesetz: Ein Energieausweis wurde vom Eigentümer bzw. Verkäufer, nach unserer Aufklärung über die generell geltende Vorlagepflicht, sowie Aufforderung zu seiner Erstellung noch nicht vorgelegt. Daher gilt zumindest eine dem Alter und der Art des Gebäudes entsprechende Gesamtenergieeffizienz als vereinbart. Wir übernehmen keinerlei Gewähr oder Haftung für die tatsächliche Energieeffizienz der angebotenen Immobilie.


Wir weisen darauf hin, dass zwischen dem Vermittler und dem zu vermittelnden Dritten ein familiäres oder wirtschaftliches Naheverhältnis besteht.


Der Vermittler ist als Doppelmakler tätig.

Infrastruktur / Entfernungen

Gesundheit
Arzt <500m
Apotheke <500m
Klinik <500m
Krankenhaus <500m

Kinder & Schulen
Schule <500m
Kindergarten <500m
Universität <500m
Höhere Schule <500m

Nahversorgung
Supermarkt <500m
Bäckerei <500m
Einkaufszentrum <500m

Sonstige
Geldautomat <500m
Bank <500m
Post <500m
Polizei <500m

Verkehr
Bus <500m
U-Bahn <1.000m
Straßenbahn <500m
Bahnhof <1.000m
Autobahnanschluss <3.500m

Angaben Entfernung Luftlinie / Quelle: OpenStreetMap

Eckdaten Objektnr. 6202/50429

Art: Büro / Praxis
Land: Österreich
Zustand: Erstbezug
Kaltmiete (netto): 1.170,00 €
Kaltmiete: 1.369,08 €
Miete / m²: 16,63 €
Betriebskosten: 199,08 €
MwSt Gesamt: 273,82 €
Wohnfläche: 70,34 m²
Zimmer: 2
WC: 2
Nebenkostenübersicht Miete Immobilie merken Exposé

Ausstattung

Elektro, Fußbodenheizung


Immobilie anfragen


Ihre persönliche Beratung

TRIMOND Immobilienmakler GesmbH

Trimond Immobilienmakler Ges. m. b. H.

T 01/713 58 22