Flexible Raumaufteilung: WG, Paar oder Familie – 3 Zimmer mit Flair in Graz-Gösting!

Wohnung , 8051 Graz , Augasse 58


Beschreibung der Immobilie

Flexible Raumaufteilung: WG, Paar oder Familie – 3 Zimmer mit Flair in Graz-Gösting!

Wichtige Infos:



  • Gesamtmiete: 699€ pro Monat (inkl. Betriebskosten, ohne Heizung und Strom)
  • Heizung: Fernwärme
  • Verfügbar ab: ab sofort
  • Mietdauer: Befristet auf 3 Jahre – Verlängerung möglich
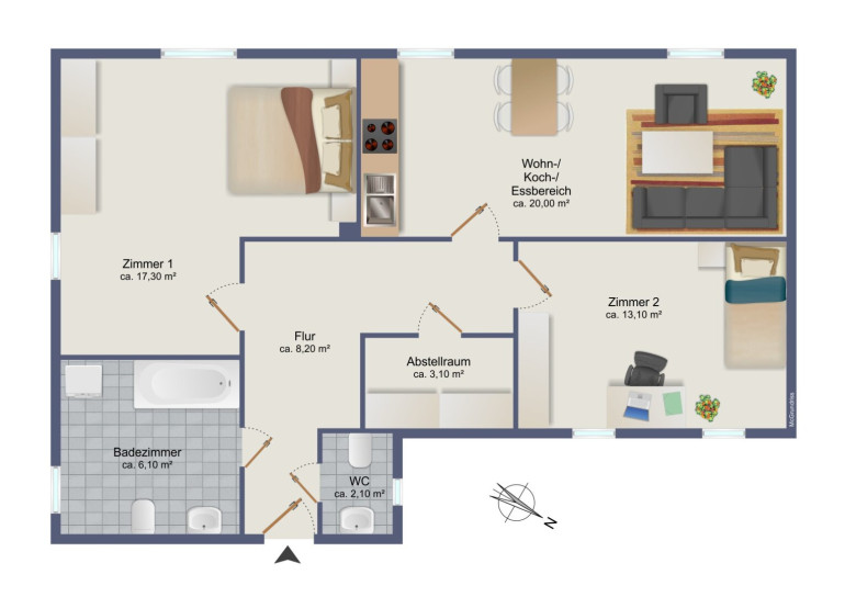
  • Wohnfläche: ca. 79,7 m²
  • Etage: 2. Stock (kein Lift)
  • Zimmer: 3 (2x Schlafzimmer, 1x Wohn-/Koch-/Esszimmer)



Lage:



Die Wohnung liegt in Graz-Gösting, Augasse 58.

Die Umgebung ist ruhig und trotzdem gut erreichbar.



  • Supermarkt und Geschäfte: zu Fuß erreichbar
  • Busverbindungen: bringen Sie schnell in die Innenstadt
  • Shoppingcenter Nord & Novapark: in der Nähe
  • Autobahn Graz-Nord: in wenigen Minuten erreichbar
  • Murradweg: ideal zum Spazieren oder Radfahren


Alles, was man im Alltag braucht, ist gut erreichbar.




Beschreibung der Wohnung:



Die Wohnung ist hell, groß und gemütlich.

Sie liegt im 2. Stock eines gepflegten Mehrparteienhauses (kein Lift).



Raumaufteilung:



  • Flur: zentraler Eingangsbereich, alle Räume erreichbar
  • WC: mit Fenster, gleich beim Eingang
  • Badezimmer: ca. 5,5 m², mit Badewanne und Fenster
  • Wohnzimmer / großer Raum: ideal als Gemeinschaftsraum oder Wohnbereich
  • Küche mit Essbereich: mit Einbauküche
  • Abstellraum: im Flur, praktisch für Stauraum
  • Zwei weitere Zimmer: flexibel nutzbar (z. B. Schlafzimmer, Büro oder WG-Zimmer)


Die freiliegenden Holzbalken an der Decke machen die Wohnung besonders gemütlich.




Für wen ist die Wohnung geeignet?



Diese Wohnung ist für verschiedene Lebenssituationen ideal:



? Für eine 2er-WG:



  • Zwei getrennte, gleichwertige Zimmer – beide separat begehbar
  • Großer Gemeinschaftsraum mit Küche, Essplatz und Wohnbereich
  • Bad und WC sind getrennt, was sehr praktisch für Mitbewohner ist


? Für Paare:



  • Offener Koch-, Ess- und Wohnbereich als Herzstück der Wohnung
  • Ein Raum als Schlafzimmer, der andere Raum z. B. als
    • Homeoffice,
    • Gästezimmer oder
    • Hobbyraum / Multifunktionsraum nutzbar



So lässt sich die Wohnung ganz flexibel an die eigenen Bedürfnisse anpassen.




Zusätzliche Infos:



  • Kellerabteil: vorhanden
  • Innenhof: kann mitbenutzt werden (z. B. zum Wäscheaufhängen)
  • Heizung: Fernwärme
  • Haus: 2002 umfassend saniert (Fassade, Vollwärmeschutz)
  • Treppenhaus: 2021 renoviert – gepflegtes Erscheinungsbild



Fazit:



Eine großzügige 3-Zimmer-Wohnung mit guter Raumaufteilung und fairer Miete in Graz-Gösting.

Ideal für Paare, kleine Familien oder WGs.

Helle Räume, gute Lage, gepflegtes Haus.



? Miete: 699 € / Monat (inkl. Betriebskosten, ohne Strom und Heizung)

? Verfügbar ab: ab sofort!

? Befristet auf 3 Jahre – Verlängerung möglich




Interesse?
Gerne einen Termin zur Besichtigung vereinbaren!


Der Immobilienmakler erklärt, dass er – entgegen dem in der Immobilienwirtschaft üblichen Geschäftsgebrauch des Doppelmaklers – einseitig nur für den Vermieter tätig ist.

Infrastruktur / Entfernungen

Gesundheit
Arzt <225m
Apotheke <250m
Klinik <1.200m
Krankenhaus <1.925m

Kinder & Schulen
Schule <300m
Kindergarten <300m
Universität <1.850m
Höhere Schule <1.925m

Nahversorgung
Supermarkt <400m
Bäckerei <975m
Einkaufszentrum <1.675m

Sonstige
Geldautomat <350m
Bank <350m
Post <525m
Polizei <425m

Verkehr
Bus <175m
Straßenbahn <700m
Bahnhof <2.200m
Autobahnanschluss <3.950m

Angaben Entfernung Luftlinie / Quelle: OpenStreetMap

Eckdaten Objektnr. 2077/94

Art: Wohnung
Land: Österreich
Baujahr: 2002
Zustand: Neuwertig
Gesamtmiete: 699,00
Kaltmiete (netto): 439,43 €
Kaltmiete: 675,40 €
Betriebskosten: 235,97 €
MwSt Gesamt: 23,60 €
Wohnfläche: 80,00 m²
Zimmer: 3
Bäder: 1
WC: 1
Heizwärmebedarf:  C  94,00 kWh/m²a
fGEE:  C  1,58
Nebenkostenübersicht Miete Immobilie merken Exposé

Ausstattung

Zentralheizung


Immobilie anfragen


Ihre persönliche Beratung

Gregor Andrekowitsch

Immotaurus Living & Management GmbH

T +43 660 449 39 69