ERSTBEZUG „ein viertel grün“ in Wiener Neustadt - herrliche 3 Zimmerwohnung mit Balkon

Wohnung , 2700 Wiener Neustadt , Stadionstraße


Mitten im Grünen und doch mitten im Leben: Das Wohnprojekt „ein viertel grün“ vereint modernen Wohnkomfort mit einer erstklassigen Lage – direkt gegenüber der Merkurcity in Wiener Neustadt. Hier treffen Ruhe, Natur und Stadtleben aufeinander – und schaffen einen Wohnraum, der keine Wünsche offen lässt. In diesem neuen Stadtquartier finden Sie das passende Zuhause: mit gut durchdachten Grundrissen, großzügigen Freiflächen. Die ausgezeichnete Lage macht Ihren Alltag leichter. Das Stadtzentrum, der Bahnhof sowie die Autobahn A2 sind in wenigen Minuten erreichbar. Zahlreiche Nahversorger, Schulen, Kindergärten und medizinische Einrichtungen befinden sich in unmittelbarer Nähe. Die Merkurcity direkt gegenüber sorgt für kurze Wege beim Einkaufen. Die zweitgrößte Stadt Niederösterreichs bietet nicht nur hervorragende Infrastruktur, sondern auch ein breites Freizeit- und Kulturangebot wie vielfältige Gastronomie, regelmäßige Veranstaltungen, Konzerte und Ausstellungen.

Beschreibung der Immobilie

ERSTBEZUG „ein viertel grün“ in Wiener Neustadt - herrliche 3 Zimmerwohnung mit Balkon

Willkommen in Ihrem neuen Zuhause in Wiener Neustadt!



In unserem neuen Wohnquartier trifft modernes Wohnen auf naturnahe Umgebung – ideal für junge Familien, Paare sowie Einzelpersonen die Wert auf Lebensqualität, Gemeinschaft und Nachhaltigkeit legen.



Das Projekt bietet besten Wohnkomfort für Familien, direkt im Quartier befindet sich ein moderner Kindergarten. Hier werden Ihre Kleinen optimal betreut - und das ganz in Ihrer Nähe Ihres Wohnortes. 



Nach dem Kindergarten können sich die Kinder noch auf den diversen Spiel- und Bewegungsmöglichkeiten austoben, welche sich über das gesamte Areal erstrecken. 



Ein eigener Quartierstreff sorgt für regen Austausch unter Nachbarn und lässt garantiert neue Freundschaften bei Groß und Klein entstehen. 



Das gesamte Areal ist verkehrsberuhigt und umgeben von Grünflächen. Sie müssen jedoch aufgrund der hervorragenden Lage nicht auf die Annehmlichkeiten der Stadt verzichten. 



Diverse Geschäfte des täglichen Bedarfs befinden sich in unmittelbarer Nähe und sind fußläufig erreichbar (Merkur City).



Hier die Details zu unserem Projekt im Überblick:



  • 42 geförderte Mietwohnungen
  • 2 - 4 Zimmer, ca. 51 m² - 89 m²
  • Jede Wohnung mit Eigengarten und Terrasse, Balkon oder Dachterrasse 
  • hochwertige Laminatböden
  • gut durchdachte Grundrisse
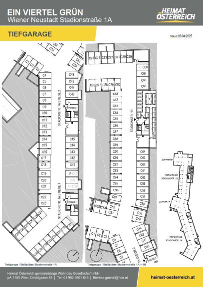
  • Tiefgaragenstellplatz, bereits in der Miete inkludiert
  • Fahrrad- und Kinderwagenräume
  • Einlagerungsräume
  • Personenaufzug
  • Müllraum
  • effiziente Photovoltaikanlage am Dach
  • kontrollierte Wohnraumlüftung mit Wärmerückgewinnung und zentraler Lüftungsanlage
  • HWB Wert ca. 26,26 kWh/m²a, fGEE ca. 0,63
  • beziehbar ab 1.4.2026


Anm.: Fotos mithilfe von Virtual Staging eingerichtet



Hier geht es zu weiteren Mietwohnungen: Geförderte Mietwohnungen "ein viertel grün"



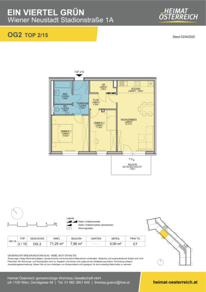
Willkommen in Ihrem neuen Zuhause!



Diese wunderschöne Wohnung im 2. Obergeschoss ist der perfekte Rückzugsort für all jene, die modernen Wohnraum in einer begehrten Lage suchen. 



Mit einer Fläche von ca. 71m² und drei hellen, lichtdurchfluteten Zimmern bietet diese Immobilie ausreichend Platz für Paare oder kleine Familien. Der Erstbezug garantiert Ihnen eine frische und moderne Ausstattung, die keine Wünsche offenlässt.



Ein Highlight dieser Immobilie ist der einladende Balkon, der Ihnen die Möglichkeit bietet, die Sonne und frische Luft in vollen Zügen zu genießen. Ob beim Frühstück am Morgen oder beim Entspannen nach einem langen Tag – hier finden Sie den idealen Ort, um die Seele baumeln zu lassen.



Das Wohnzimmer ist sehr geräumig und der Küchenbereich fügt sich harmonisch ein. 



Ein Schlafzimmer ist über den Flur direkt vom Wohnzimmer und vom Vorzimmer aus begehbar. Das zweite Schlaf- bzw. Kinderzimmer erreicht man direkt vom Vorzimmer. 



Der praktische Abstellraum sorgt für extra Stauraum.



Das Badezimmer ist modern verfliest und mit einer Badewanne ausgestattet. Des Weiteren befinden sich ein Handwaschbecken und ein Waschmaschinenanschluss im Badezimmer. Das WC ist ebenfalls modern verfliest und separat, neben dem Badezimmer vorzufinden.



Mit einem Tiefgaragenstellplatz ist bestens für Ihren PKW gesorgt. Dieser ist bereits in der Miete inkludiert!



Befristung: unbefristet, 1 Jahr Kündigungsverzicht 3 Monate Kündigungsfrist



Bezug: beziehbar ab 1.4.2026



Energiekennzahlen:  Der Heizwärmebedarf  beträgt ca. 26,26 kWh/m²a Klasse B und der Gesamtenergieeffizienz-Faktor ca. 0,63 Klasse A+.



Die monatliche Miete beläuft sich auf € 931,69 inkl. BK und Ust. und der einmalige Finanzierungsbeitrag beträgt € 24.937,50




Diese Wohnung ist ein wahres Juwel und wartet nur darauf, von Ihnen entdeckt zu werden!



Hier geht es zu weiteren Mietwohnungen:
Geförderte Mietwohnungen - ein viertel grün



Anm.: Fotos mithilfe von Virtual Staging eingerichtet



Noch nichts gefunden? Wir informieren Sie über geeignete Immobilienangebote noch vor allen anderen.
Legen Sie jetzt Ihren individuellen Suchagenten unter folgendem Link an. Wir schicken Ihnen passende Immobilien exklusiv vorab zu.
Suchagent anlegen - https://heimat-oesterreich.service.immo/registrieren/de


Der Immobilienmakler erklärt, dass er – entgegen dem in der Immobilienwirtschaft üblichen Geschäftsgebrauch des Doppelmaklers – einseitig nur für den Vermieter tätig ist.

Infrastruktur / Entfernungen

Gesundheit
Arzt <1.000m
Apotheke <250m
Klinik <2.500m
Krankenhaus <1.000m

Kinder & Schulen
Schule <250m
Kindergarten <500m
Höhere Schule <1.750m
Universität <2.000m

Nahversorgung
Supermarkt <500m
Bäckerei <750m
Einkaufszentrum <250m

Sonstige
Bank <750m
Geldautomat <750m
Post <750m
Polizei <750m

Verkehr
Bus <250m
Autobahnanschluss <3.000m
Bahnhof <1.500m
Flughafen <2.250m

Angaben Entfernung Luftlinie / Quelle: OpenStreetMap

Eckdaten Objektnr. 4977

Art: Wohnung
Land: Österreich
Baujahr: 2025
Zustand: Erstbezug
Alter: Neubau
Gesamtmiete: 931,69
Kaltmiete (netto): 931,69 €
Kaltmiete: 931,69 €
Wohnfläche: 71,25 m²
Zimmer: 3
Bäder: 1
WC: 1
Balkone: 1
Stellplätze: 1
Keller: 3,00 m²
Heizwärmebedarf:  B  26,26 kWh/m²a
fGEE:  A+  0,63
Nebenkostenübersicht Miete Immobilie merken Exposé

Ausstattung

Fliesen, Laminatboden, Solarenergie, Personenaufzug, Badewanne, Tiefgarage


Immobilie anfragen


Ihre persönliche Beratung

Theresa Günzl

Heimat Österreich gemeinnützige Wohnungs- und Siedlungsgesellschaft m.b.H.

T +431 9823601 645

H 0676 3717805