Praktisches & gut angebundenes Büro nahe Flughafen, 5020 Salzburg
Büro / Praxis
- Bürofläche,
5020
Salzburg
,
Innsbrucker Bundesstraße 140
Die Innsbrucker Bundesstraße 140 befindet sich unweit des Flughafens Salzburg und ist verkehrstechnisch gut gelegen. Die Lage bietet eine gute Anbindung an das öffentliche Verkehrsnetz inklusive den HBF und die Autobahnauffahrt Salzburg West + Flughafen. Gastronomische Einrichtungen und Nahversorger finden sich in fußläufiger Umgebung.
Beschreibung der Immobilie
Praktisches & gut angebundenes Büro nahe Flughafen, 5020 Salzburg
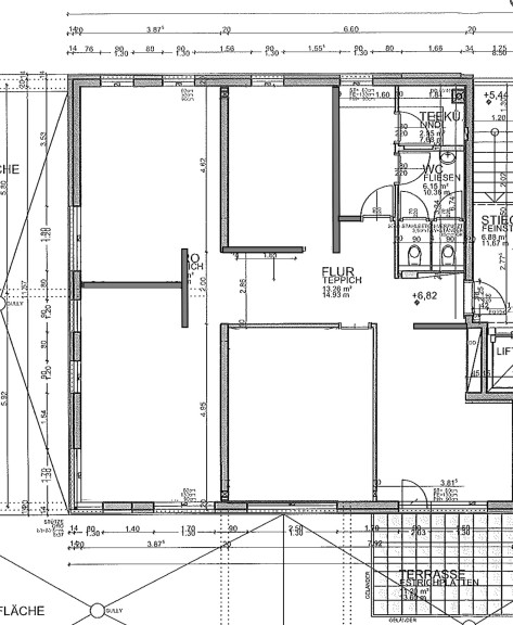
Modernes, helles Büro im Business Center West.Die vermietungsgegenständliche Büroeinheit befindet sich im 2. OG eines sehr gepflegten Bürogebäudes. Die Aufschließung mit Lift ist gegeben.
Die angebotene Fläche erstreckt sich über ca. 121 m².
Insgesamt präsentieren sich die Räume in einem sehr guten Zustand und sind von einem Nachmieter nach Vereinbarung sofort bezugsfertig. Die zahlreichen Fenster sorgen für reichlich natürliches Licht, eine Teeküche sowie Sanitärräume und ein kleines Lager sind vorhanden.
In den Betriebskosten sind inkludiert Aufzug und Klimakostenakonto.
Eckdaten Objektnr. 505240109_6
| Art: | Büro / Praxis - Bürofläche |
| Land: | Österreich |
| Baujahr: | 2010 |
| Gesamtmiete: | 2.322,87 € |
| Kaltmiete (netto): | 1.580,67 € |
| Miete / m²: | 13,00 € |
| Betriebskosten: | 268,17 € |
| Heizkosten: | 64,36 € |
| Bürofläche: | 121,59 m² |
Ausstattung
Zentralheizung, DV-Verkabelung
Ihre persönliche Beratung
Dieser Makler ist ein offizielles Mitglied des IR – ir.at Mehr Erfahren
