Moderne, großzügige Gartenwohnung mit Tiefgaragen-Stellplatz

Wohnung , 4030 Linz


Diese charmante 2-Zimmer-Gartenwohnung befindet sich in ruhiger, dennoch zentraler Lage. Die gute Infrastruktur und Nahversorgung (Supermarkt, Bus, Bahnhof, Ärzte etc.) befinden sich in unmittelbarer Nähe. In wenigen Minuten erreicht man den Anschluss an die Autobahn. Trotz zentraler Lage genießen Sie hier ein entspanntes und grünes Wohnumfeld.

Beschreibung der Immobilie

Moderne, großzügige Gartenwohnung mit Tiefgaragen-Stellplatz

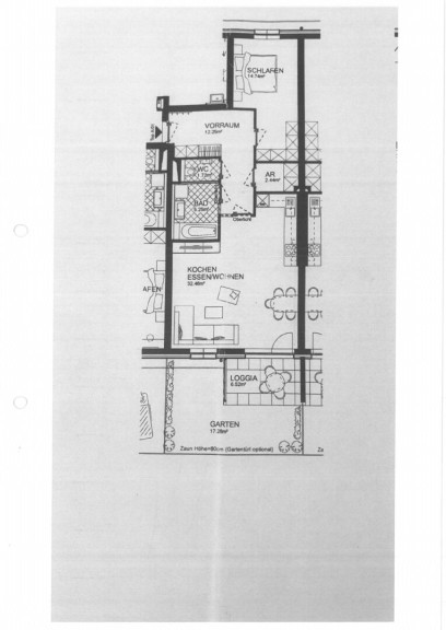
Die Wohnung mit ca. 75,33 m² Nutzfläche (inkl. 6,52m² Loggia) besticht durch ihren großzügigen Grundriss, der deutlich mehr Raumgefühl bietet als klassische 2-Zimmer-Wohnungen. Der offene Wohn-Essbereich mit Einbauküche (ca. 32,46 m²) bildet das Herzstück der Wohnung. Von hier aus gelangt man direkt auf die überdachte Loggia und in den sonnigen Eigengarten mit ca. 17 m², der viel Privatsphäre bietet – perfekt zum Entspannen oder für kleine Gartenprojekte.





Weitere Highlights:




  • Geräumiges Schlafzimmer (14,74 m²)



  • Badezimmer mit Badewanne und Platz für Waschmaschine & Trockner



  • Separates Gäste-WC mit eigenem Waschtisch



  • Praktischer Abstellraum in der Wohnung



  • Parkett- und Fliesenböden, moderne Ausstattung



  • Fußbodenheizung mit Fernwärme



  • HWB 27,6 kWh/m²a – Energieklasse B, fGEE 0,77 (A)






Ein großer Tiefgaragenstellplatz (15,79 m²) rundet das Angebot ab – ideal auch für größere Fahrzeuge.


Der Vermittler ist als Doppelmakler tätig.

Infrastruktur / Entfernungen

Gesundheit
Arzt <1.000m
Apotheke <1.000m
Klinik <3.000m
Krankenhaus <4.500m

Kinder & Schulen
Kindergarten <500m
Schule <500m
Universität <3.000m
Höhere Schule <6.500m

Nahversorgung
Supermarkt <500m
Bäckerei <1.000m
Einkaufszentrum <1.000m

Sonstige
Bank <1.000m
Geldautomat <1.000m
Post <1.000m
Polizei <1.000m

Verkehr
Bus <500m
Straßenbahn <2.500m
Bahnhof <500m
Autobahnanschluss <1.500m
Flughafen <7.000m

Angaben Entfernung Luftlinie / Quelle: OpenStreetMap

Eckdaten Objektnr. 7834/257

Art: Wohnung
Land: Österreich
Baujahr: 2014
Zustand: Neuwertig
Alter: Neubau
Kaufpreis: 298.000,00
Betriebskosten: 142,42 €
MwSt Gesamt: 14,24 €
Wohnfläche: 68,86 m²
Nutzfläche: 75,33 m²
Zimmer: 2
Bäder: 1
WC: 1
Garten: 17,28 m²
Keller: 6,77 m²
Heizwärmebedarf:  B  27,60 kWh/m²a
fGEE:  A  0,77
Nebenkostenübersicht Kauf Immobilie merken Exposé

Ausstattung

Fliesen, Parkett, Fußbodenheizung, Einbauküche, Wohnküche / offene Küche, Personenaufzug, Badewanne, Tiefgarage, Wasch/Trockenraum


Immobilie anfragen


Ihre persönliche Beratung

BL Immobroker GmbH

Ing. Michael Lindinger-Pesendorfer, BSc

LP Immobilien GmbH

T +43 732 29 99 27

H +43 676 81419652