Einzigartige 3-Zimmer-Wohnung mit traumhafter Aussicht und Terrasse! U4, U6 und Schnellbahn

Wohnung , 1120 Wien


Die Wohnung befindet sich im wunderschönen 12. Wiener Bezirk. Das Haus liegt in einer friedlichen Straße, in der Wohnung ist es immer ruhig! 2 Gehminuten von der berühmtesten und beliebtesten Straße des 12. Bezirks mit zahlreichen Cafés und Geschäften entfernt. Hervorragende Verkehrsanbindung: Die U4, U6 sowie der Bahnhof Meidling sind nur wenige Minuten entfernt. Nahe Schönbrunn: Der Schlosspark ist ideal für Spaziergänge, sportliche Aktivitäten oder entspannte Stunden im Grünen. Direkt am Meidlinger Markt: Genießen Sie frische Lebensmittel und die lebendige Atmosphäre des Viertels.

Beschreibung der Immobilie

Einzigartige 3-Zimmer-Wohnung mit traumhafter Aussicht und Terrasse! U4, U6 und Schnellbahn

Willkommen in Ihrem neuen Zuhause in einer der begehrtesten Gegenden Wiens! Diese traumhafte Wohnung in 1120 Wien bietet alles, was das Herz begehrt und ist der perfekte Ort, um Ihren Wohntraum zu verwirklichen.



Ein Highlight dieser Immobilie ist die großzügige Terrasse, von der aus Sie einen atemberaubenden Grünblick genießen können. Hier können Sie entspannen, Sonne tanken und den Alltagsstress hinter sich lassen. Die perfekte Kombination aus urbanem Wohnen und Naturerlebnis!



Badezimmer mit einer Badewanne und einer Dusche. Perfekt für entspannende Wellnessmomente!



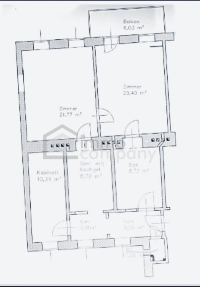
Die Gesamtfläche der Wohnung beträgt  80 m2, die Wohnung befindet sich im 2 Stock mit Lift.  Diese Wohnung in einem eleganten Altbau verfügt über folgende Aufteilung:   



  • Wohnzimmer mit Zugang zur Terrasse
  • Schlafzimmer
  • Kinderzimmer/ Kabinen 
  • Küche
  • Badezimmer
  • WC
  • Korridor
  • Terrasse 


In der Umgebung finden Sie alles, was Sie für den täglichen Bedarf benötigen. 



Sichern Sie sich jetzt Ihre Traumwohnung und werden Sie Teil einer lebendigen und beliebten Gemeinschaft in 1120 Wien.



Vereinbaren Sie noch heute einen Termin um diese wunderschöne Wohnung zu besichtigen, sie sieht einfach fantastisch aus. Lassen Sie Ihren Traum von einer neuen Wohnung wahr werden!!!


Wir weisen darauf hin, dass zwischen dem Vermittler und dem zu vermittelnden Dritten ein familiäres oder wirtschaftliches Naheverhältnis besteht.


Der Vermittler ist als Doppelmakler tätig.

Nutzen Sie die einmalige Gelegenheit, diese Immobilie zu besichtigen – sehen und erleben ist sehr viel eindrucksvoller!
Eine Besichtigung ist kostenfrei und unverbindlich, und gibt Ihnen einen unverfälschten Eindruck von der Immobilie.
Gerne unterstütze ich Sie auch bei der Finanzierung sowie beim Verkauf/Vermietung Ihrer Immobilie.

Infrastruktur / Entfernungen

Gesundheit
Arzt <500m
Apotheke <500m
Klinik <500m
Krankenhaus <1.500m

Kinder & Schulen
Schule <500m
Kindergarten <500m
Universität <500m
Höhere Schule <1.000m

Nahversorgung
Supermarkt <500m
Bäckerei <500m
Einkaufszentrum <500m

Sonstige
Geldautomat <500m
Bank <500m
Post <500m
Polizei <500m

Verkehr
Bus <500m
U-Bahn <500m
Straßenbahn <1.000m
Bahnhof <500m
Autobahnanschluss <2.500m

Angaben Entfernung Luftlinie / Quelle: OpenStreetMap

Eckdaten Objektnr. 7939/2300162219

Art: Wohnung
Land: Österreich
Alter: Altbau
Kaufpreis: 479.000,00
Betriebskosten: 126,84 €
MwSt Gesamt: 12,68 €
Wohnfläche: 80,00 m²
Zimmer: 3
Bäder: 1
WC: 1
Balkone: 1
Keller: 7,00 m²
Heizwärmebedarf:  D  109,40 kWh/m²a
fGEE:  D  2,10
Nebenkostenübersicht Kauf Immobilie merken Exposé

Ausstattung

Parkett, Fliesen, Gas, Einbauküche, Personenaufzug, Badewanne, Dusche, Kantine/Cafeteria


Immobilie anfragen


Ihre persönliche Beratung

Immo-Company Haas & Urban Immobilien GmbH

Mag.(UA) Veronika Nagorna

Immo-Company Haas & Urban Immobilien GmbH

H +43 699 18410037