Ein Haus, zwei Wohnbereiche – unzählige Möglichkeiten: perfekt für Familie, Gäste, Mieter oder als Bürofläche

Haus - Zweifamilienhaus, 6832 Röthis , Walgaustraße 17


Beschreibung der Immobilie

Ein Haus, zwei Wohnbereiche – unzählige Möglichkeiten: perfekt für Familie, Gäste, Mieter oder als Bürofläche

Zweifamilienhaus in Röthis – zwei Wohneinheiten mit getrennten Eingängen



In der Walgaustraße in Röthis steht dieses vielseitige Zweifamilienhaus, das mit klarer Raumstruktur und flexiblen Nutzungsmöglichkeiten überzeugt.



Das Gebäude umfasst insgesamt rund 167 m² Wohnfläche, aufgeteilt in zwei Einheiten mit jeweils eigenem Eingang:




  • ca. 109,74 m² im 1. und 2. Obergeschoss – eine großzügige Wohnung mit klassischer Aufteilung, die viel Platz für Familie oder Paare bietet.

    Besonders charmant sind die sichtbaren Holzbalken im Dachgeschoss, die dem Wohnbereich eine warme und einladende Atmosphäre verleihen.



  • ca. 53,46 m² im Erdgeschoss – eine separate, kompakte Wohnung, ideal für Angehörige, als Einliegerwohnung oder zur Vermietung. Selbst eine Nutzung als Geschäftsraum ist in dieser Einheit möglich.




Für Komfort im Alltag sorgen zwei Einzelgaragen sowie zusätzliche Außenstellplätze.



Die zentrale Lage in Röthis bietet kurze Wege: Einkaufsmöglichkeiten, Schulen, öffentliche Verkehrsmittel und die Rheintalautobahn sind in wenigen Minuten erreichbar. Gleichzeitig genießen Sie hier ein ruhiges Wohnumfeld mit hoher Lebensqualität.



Ob als Mehrgenerationenhaus, zur Kombination von Wohnen und Vermieten oder als Investment – dieses Haus eröffnet Ihnen zahlreiche Möglichkeiten.







GRUNDSTÜCKSDATEN


Grundstücksgröße: ca. 319 m²

Bauwidmung: Baufläche Mischgebiet

 



TECHNISCHE DATEN


Auf dem Grundstück befindet sich ein Zweifamilienhaus mit folgenden Eckdaten:




Baujahr der Immobilie


1960

Heizungsart



Gastherme



Anlage/Gesamteinheiten              



2 Wohneinheiten



Autoabstellplätze




2 Garagenplätze

4 Stellplätze

1 Carport
DAS GEBÄUDE BESTEHT AUS
Wohnfläche Gesamt ca. 163,2 m²
Wohnung 1

2-Zimmer-Wohnung im Erdgeschoss        
ca. 53,46 m²
Wohnraum ca.   8,88 m²
Essküche ca. 17,74 m²
Gang ca.   7,43 m²
WC ca.   1,27 m²
Bad ca.   7,84 m²
Schlafzimmer ca. 10,30 m²
Wohnung 2

5-Zimmer-Wohnung im 1. und 2. Obergeschoss  
ca.  109,74 m²
EG
Gang  ca.   3,57 m²
OG  
Essküche ca. 18,59 m²
Bad / WC ca.   8,25 m²
Wohnzimmer ca. 20,35 m²
Gang ca.   9,77 m²
Terrrasse ca. 16,80 m²
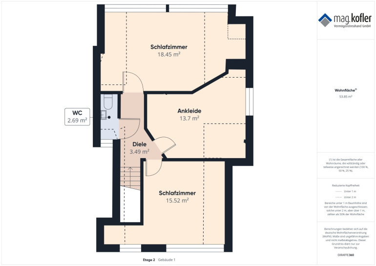
DG
Gang ca.   3,49 m²
WC ca.   2,69 m²
Elternschlafzimmer ca. 16,60 m²
Kinderzimmer  ca. 12,53 m²
Kinderzimmer  ca. 13,90 m²
EG
Zugang und Unterstellplatz  ca. 17,37 m²
Abstellraum ca.  9,49 m²
Garage 1 ca.  17,78 m²
Garage 2 ca.  17,00 m²



MODERNISIERUNGEN


Das Haus wurde in den vergangenen Jahren stetig modernisiert und technisch wie optisch aufgewertet.



Allgemeine Maßnahmen



  • 2025: Garagen innen und außen neu gestrichen, Holzbalken am Carport aufgearbeitet
  • 2024: Fassadenreinigung und Versiegelung durch die Firma Algenmax
  • vor ca. 20 Jahren: Erneuerung aller Fenster, Terrassentüren, Heizung und Elektrik


Wohnung 1

2-Zimmer-Wohnung im Erdgeschoss



  • 2011: Komplette Grundsanierung inkl. Badezimmer
  • Neue hochwertige Haustüre
  • Einbauküche vorhanden aus Vollholz mit Granitarbeitsplatte aus dem Jahr 2020

     


Wohnung 2

5-Zimmer-Wohnung im Obergeschoss/Dachgeschoss



  • 2025: Terrassenboden erneuert (OG/RG)
  • 2018: Komplette Grundsanierung inkl. Badezimmer
  • Neue hochwertige Einbauküche
  • Moderne Vinyl-Klickböden in allen Wohnräumen
  • Sanierung der Toilette im Dachgeschoss

                        


BESTANDSVERTRAG & MIETEINNAHMEN



Die Einliegerwohnung im Erdgeschoss ist derzeit noch vermietet. Die Maisonettewohnung ist sofort bezugsbereit.



Wohnung 1
2-Zimmer-Wohnung im Erdgeschoss



  • Mietvertrag seit: 01.01.2022
  • Aktuelle Laufzeit: 01.01.2025 – 31.09.2026
  • Nettomiete p. m.: 603,- € ohne UST
  • Betriebskosten p. m.: 125,- €
  • Gesamtmieteinnahme p. a.: 7.236,- € netto ohne BK
  • Kaution: 1.725, €


Gesamtobjekt



  • Jahresnettomiete gesamt: 7.236,- € netto ohne BK


MONATLICHE AUSGABEN




  • Wasser- / Kanalabgabe:    42,14 €



  • Strom Wohnung 1:            33,00 €



  • Strom Wohnung 2:            70,00 € 




NEBENKOSTENÜBERSICHT



  • 3,5% Grunderwerbsteuer
  • 1,1% Grundbucheintragung
  • 3,6% Provision inklusive 20% Umsatzsteuer
  • zuzüglich Rechtsanwalt- und Vertragserrichtungskosten zuzüglich Umsatzsteuer
  • zuzüglich Barauslagen


HINWEIS ZU DEN NEBENKOSTEN:



Ab dem 01.04.2024 werden die Grundbucheintragungsgebühr von 1,1 % sowie die Pfandrechtseintragungsgebühr von 1,2 % des Kaufpreises unter bestimmten Voraussetzungen erlassen. Die neue Regelung gilt allerdings nur bis zu einem Freibetrag von 500.000,00 Euro und für Grundbucheintragungen ab dem 01.07.2024.

Von den Nebengebühren befreit ist nur der Kauf von Immobilien, die als Hauptwohnsitz dienen. Die Regelung ist außerdem auf zwei Jahre befristet und gilt bis Juni 2026. Für genaue Hinweise und ob diese Regelung für Sie anwendbar ist wenden Sie sich bitte an den Treuhänder / Vertragserrichter. Diese Zusammenfassung ist nur als Vorabinformation zu verstehen.



SONSTIGE INFORMATION



  • sofort verfügbar


Alle Angaben sind nach bestem Wissen aufbereitet worden. Irrtum und Zwischenverkauf vorbehalten. Dieses Exposé ist eine Vorinformation, als Rechtsgrundlage gilt der abgeschlossene Kaufvertrag. Der angegebene Preis ist ein Richtpreis, der in etwa dem möglichen zukünftigen Kaufpreis entsprechen kann. Da der Preis vom Interessenten mit einem dafür ausgestellten Angebot definiert wird, kann er abhängig von der jeweiligen Nachfrage, auch über dem Richtpreis zu liegen kommen. Die Zustimmung erfolgt ausschließlich vom Abgeber durch Gegenzeichnung des gestellten Angebotes.



Vereinbaren Sie einen Besichtigungstermin und überzeugen Sie sich selbst von dieser einzigartigen Immobilie!

Noch nichts gefunden? Wir informieren Sie über geeignete Immobilienangebote noch vor allen anderen.
Legen Sie jetzt Ihren individuellen Suchagenten unter folgendem Link an. Wir schicken Ihnen passende Immobilien exklusiv vorab zu.

Suchagent anlegen - https://mag-kofler-vermoegenstreuhand.service.immo/registrieren/de


Wir weisen darauf hin, dass zwischen dem Vermittler und dem zu vermittelnden Dritten ein familiäres oder wirtschaftliches Naheverhältnis besteht.


Der Vermittler ist als Doppelmakler tätig.

Infrastruktur / Entfernungen

Gesundheit
Arzt <550m
Apotheke <525m
Krankenhaus <3.850m

Kinder & Schulen
Schule <475m
Kindergarten <500m
Höhere Schule <4.625m
Universität <7.900m

Nahversorgung
Supermarkt <700m
Bäckerei <900m
Einkaufszentrum <2.800m

Sonstige
Bank <625m
Geldautomat <625m
Post <1.175m
Polizei <775m

Verkehr
Bus <75m
Bahnhof <1.300m
Autobahnanschluss <1.950m

Angaben Entfernung Luftlinie / Quelle: OpenStreetMap

Eckdaten Objektnr. 5781/3100071

Art: Haus - Zweifamilienhaus
Land: Österreich
Baujahr: 1960
Zustand: Gepflegt
Kaufpreis: 625.000,00
Wohnfläche: 163,20 m²
Zimmer: 7
Bäder: 2
WC: 3
Terrassen: 1
Stellplätze: 3
Heizwärmebedarf:  C  96,00 kWh/m²a
fGEE:  C  1,37
Nebenkostenübersicht Kauf Immobilie merken Exposé

Ausstattung

Fliesen, Kunststoffboden, Gas, Zentralheizung, Einbauküche, Ostbalkon, Bad mit Fenster, Badewanne, Dusche, Garage, Parkplatz


Immobilie anfragen


Ihre persönliche Beratung

Mag. Kofler Vermögenstreuhand GmbH

Kerstin Jautz

Mag. Kofler Vermögenstreuhand GmbH

T +43 5523 53156 618