ALTBAUWOHNUNG mit BALKON! | 3 Zimmer | 2. Liftstock

Wohnung , 1160 Wien


Wilhelminenberg / Kongreßbad

Beschreibung der Immobilie

ALTBAUWOHNUNG mit BALKON! | 3 Zimmer | 2. Liftstock

Unser Exposé enthält ein Video von diesem Objekt (auf Anfrage).

Es wurden seit Videoerstellung nur kleinere Veränderungen vorgenommen, wie bspw die Wandtäfelung im Vorzimmer weiß gestrichen.

_____________________________________
HISTORIE DER LIEGENSCHAFT
Guido Gröger - während der K&K-Monarchie in Ybbs a.d.D. als Sohn eines Baumeisters geboren - war einer der erfolgreichsten Bauunternehmer seiner Zeit und Erbauer dieses schönen Gründerzeithauses aus 1906/1907.

Er konzipierte Gebäude nach eigenen Entwürfen und war namhafter Mitgestalter des kaiserlichen Wiens.

In der einschlägigen Literatur wird die Vermutung aufgestellt, dass Guido Gröger der Sitz der Ärtzekammer in 1010 Wien, Weihburggasse 10-12 zuzuordnen sei.

Als gesichert gilt seine Errichtung zahlreicher Miet-/Wohnhäuser, Villen, Doppelmietvillen, Pfarrhöfe, zweier Volksschulen und Sanatorien und eines Hotels; vorwiegend in den Bezirken 11.,13.,15.,16, 18.,19. zu Wien.



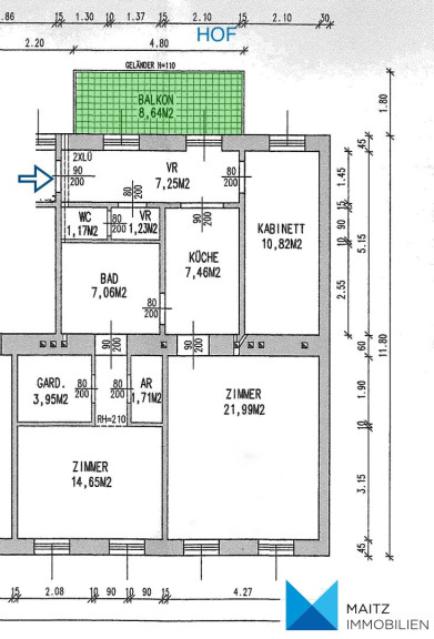
WOHNUNG
2. Liftstock

Wohnfläche ca. 77,29m2

zuzüglich ca. 8,64m2-Balkon 



Details zum Grundriss:
Vorraum 

+ 3 Zimmer (ein Zimmer ist via Badezimmer zu erreichen, siehe Plan)

+ Küche im Flur zu den beiden Zimmern

+ Bad mit Waschbecken, Dusche, Waschmaschinenanschluss

+ WC mit Handwaschbecken

+ kleiner Garderoberaum

+ Abstellraum

+ hofseitiger BALKON!



Küche: Geschirrspüler, Backofen, Herd, Ober-/Unterbauschränke

Herd/Ceranfeld und Geschirrspüler wurden im Jänner 2024 erneuert. 



Ein E-Befund sowie Befund für den Ofen im Wohnzimmer liegen vor.



Die Gastherme ist im Bad untergebracht (Gasetagenheizung).



Ein Abstellraum am Gang vor der Wohnung gehört zum Objekt!

Zusätzlich kann auch ein Kellerabteil genutzt werden.



Ein Fahrradabstellraum im Souterrain ist ebenfalls vorhanden (begehbar direkt von der Straße über einen Stiegenabgang).



Besondere Ausstattungsmerkmale:
+ einflügelige Kunststofffenster

+ innenliegender Sonnenschutz (Jalousien)



Im großen Zimmer mit Kaminofen und im Kabinett sind keine Türe verbaut.

 



Infrastruktur:
Einkaufs-, Sport- und Freizeitmöglichkeiten - vom Baumarkt bis zum Fitnesscenter - in unmittelbarer Gehdistanz

Kongreßpark & Kongreßbad

Wilhelminenberg

BAUHAUS



Öffentliche Verkehrsanbindung:
Straßenbahnlinien 2, 10, 43 (zB. Richtung U3 Ottakring, U3 Kendlerstraße oder Richtung U6 Josefstädter Str / Alser Str und in den 1. Bezirk)

Bus 44A, 46A, 46B

S-45 Hernals und Ottakring



Vertrag & Kosten:
Kaufpreis und Betriebskosten wie hier angegeben; keine USt. 



Maklercourtage: 3% vom Kaufpreis (zuzügl. 20% USt.)



Bilder mit Mobiliar sind KI-generiert (außer Küche).



Auf Wunsch profitieren unsere Kunden von kostengünstigen Konditionen für die Vertragserrichtung durch einen Anwalt oder Notar.

Weiters unterstützen wir Sie gerne bei der Suche nach einer geeigneten Finanzierung (wir selbst sind nicht als Finanzierungsvermittler tätig).



Wir freuen uns auf Ihre schriftliche Anfrage (bitte unbedingt mit vollständigem Namen und Kontaktdaten) und stehen Ihnen gerne auch an Wochenenden und Feiertagen für Auskünfte zur Verfügung!





Hinweis im Sinne des Maklergesetzes:
Zum Verkäufer dieser Immobilie stehen wir in einem wirtschaftlichen Naheverhältnis im Sinne des Maklergesetztes, weil wir bereits mehrmals in seinem Auftrag tätig waren. Es bestehen jedoch keinerlei wechselseitige gesellschaftsrechtliche Firmenbeteiligungen und/oder sonstige -verflechtungen. Sämtliche Informationen zum Objekt wurden uns vom Abgeber zur Verfügung gestellt; wir gehen von deren Richtigkeit aus. Tipp- und andere Fehler in unserer Insertion und im Exposé sind vorbehalten. Die Informationen erfolgen ohne Gewähr. Wir ersuchen Sie vor dem Ankauf eine genaue Prüfung der Unterlagen vorzunehmen, wobei wir Sie selbstverständlich bestmöglich unterstützen.

Maitz 
Immobilientreuhand e.U. ist als Doppelmakler tätig und hat daher gleichermaßen die Interessen sowohl des Angebers wie auch des Kaufinteressenten sorgfältig zu wahren.


 

Noch nichts gefunden? Wir informieren Sie über geeignete Immobilienangebote noch vor allen anderen.
Legen Sie jetzt Ihren individuellen Suchagenten unter folgendem Link an. Wir schicken Ihnen passende Immobilien exklusiv vorab zu.

Suchagent anlegen - https://maitz-immobilientreuhand.service.immo/registrieren/de

Tipp: Jetzt auf www.immomarktplatz.at neue Angebote 24 Stunden früher finden!

Infrastruktur / Entfernungen

Gesundheit
Arzt <500m
Apotheke <500m
Klinik <1.000m
Krankenhaus <500m

Kinder & Schulen
Schule <500m
Kindergarten <500m
Universität <2.000m
Höhere Schule <1.500m

Nahversorgung
Supermarkt <500m
Bäckerei <500m
Einkaufszentrum <500m

Sonstige
Geldautomat <500m
Bank <500m
Post <500m
Polizei <1.000m

Verkehr
Bus <500m
U-Bahn <1.000m
Straßenbahn <500m
Bahnhof <1.000m
Autobahnanschluss <5.000m

Angaben Entfernung Luftlinie / Quelle: OpenStreetMap

Eckdaten Objektnr. 897

Art: Wohnung
Land: Österreich
Baujahr: 1907
Zustand: Gepflegt
Alter: Altbau
Kaufpreis: 346.500,00
Betriebskosten: 191,01 €
MwSt Gesamt: 19,10 €
Wohnfläche: 77,29 m²
Nutzfläche: 85,93 m²
Zimmer: 3
Bäder: 1
WC: 1
Balkone: 1
Heizwärmebedarf:  C  93,00 kWh/m²a
fGEE:  D  1,91
Nebenkostenübersicht Kauf Immobilie merken Exposé

Ausstattung

Gas, Etagenheizung, Einbauküche, Personenaufzug, Nordbalkon, Dusche


Immobilie anfragen


Ihre persönliche Beratung

MAITZ Immobilientreuhand e.U.

Mag. Dominik Maitz

MAITZ Immobilientreuhand e.U.

T +43 676 733 61 60

H +43 676 733 61 60