Hochmoderne und helle Büroeinheit inmitten der Gamsstadt Kitzbühel

Büro / Praxis , 6370 Kitzbühel


Die Büro- oder Praxisimmobilie in 6370 Kitzbühel überzeugt durch ihre erstklassige Lage im malerischen Tirol. Mit einer Südwest-Ausrichtung genießen Sie nicht nur viel Licht, sondern auch einen traumhaften Blick auf die umliegende Berglandschaft. In unmittelbarer Nähe finden Sie den Eurospar sowie zahlreiche wichtige Einrichtungen wie Arzt, Apotheke, Klinik und Schule. Einkaufsmöglichkeiten, Bäckerei, Bank und öffentliche Verkehrsanbindungen sind bequem zu Fuß erreichbar – ideal für Ihre Geschäftstätigkeit!

Beschreibung der Immobilie

Hochmoderne und helle Büroeinheit inmitten der Gamsstadt Kitzbühel

Entdecken Sie Ihre neue Büro- oder Praxisfläche in der malerischen Stadt Kitzbühel, Tirol – ein Ort, der nicht nur für seine atemberaubende Landschaft, sondern auch für seine hervorragenden Lebens- und Arbeitsbedingungen bekannt ist.



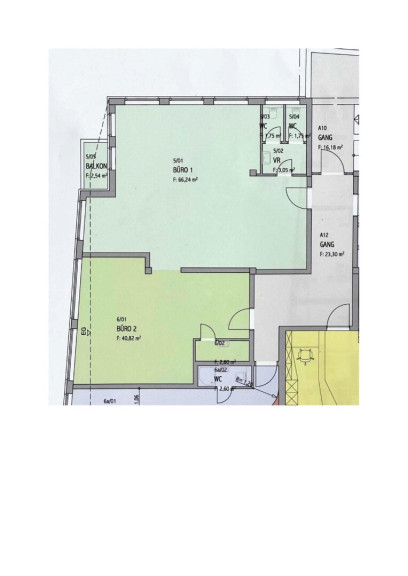
Diese gepflegte Immobilie im Dienstleistungszentrum Kitzbühel befindet sich im Hochparterre eines modernen Gebäudes und bietet Ihnen auf 2 Zimmern eine ideale Grundlage für Ihre beruflichen Ambitionen. Der Kaufpreis von 754.000,00 € stellt eine attraktive Investition dar, die sich sowohl für Selbständige als auch für Unternehmen eignet, die einen repräsentativen Standort suchen.



Das herausragende an diesem Objekt ist, sollten Ihnen die 116 m² zu groß sein, können durch die räumliche Abtrennung des Büros auf 2 Räume auch nur 73 m² gekauft werden. Hierfür beträgt der Kaufpreis € 474.500,- und die Betriebskosten belaufen sich auf € 313,- pro Monat!!



Genießen Sie den luxuriösen Komfort eines Südwestbalkons, der Ihnen nicht nur einen herrlichen Ausblick auf die umliegenden Berge und die grüne Natur bietet, sondern mit seinem nahegelegenem Bachrauschen auch einen perfekten Ort für entspannte Pausen im Freien darstellt. Die großzügigen Fenster sorgen für viel Tageslicht und schaffen eine angenehme Arbeitsatmosphäre.



Die Räumlichkeiten sind mit hochwertigen Fliesen und Parkett ausgestattet, die nicht nur stilvoll, sondern auch pflegeleicht sind. Die durchdachte Aufteilung umfasst zwei WCs, die sowohl für Mitarbeiter als auch für Klienten von Vorteil sind. Zudem ist die Büro- oder Praxisfläche mit modernster DV- und EDV-Verkabelung ausgestattet, sodass Sie jederzeit optimal vernetzt sind.



Die Pantryküche bietet Ihren Mitarbeitern den nötigen Komfort, um sich in den Pausen zu stärken.



Der Personenaufzug bietet Ihnen und Ihren Kunden einen barrierefreien Zugang, und die bodenliegenden Steckdosen ermöglichen Ihnen eine flexible Raumgestaltung, die sich an Ihre Bedürfnisse anpasst. Der außenliegende Sonnenschutz sorgt dafür, dass Sie auch an sonnigen Tagen eine angenehme Temperatur in Ihren Räumen halten können.



Dieses außergewöhnliche Büro wird komplettiert mit 2 Tiefgaragenabstellplätzen, wobei eine davon mit E-Ladestation ausgestattet ist.



Die Verkehrsanbindung ist durch die nahegelegene Bushaltestelle optimal, sodass Sie schnell und bequem zu erreichen sind. In der unmittelbaren Umgebung finden Sie alles, was das Herz begehrt: Ärzte, Apotheken, Banken, Supermärkte und ein Einkaufszentrum – hier ist alles für Ihren täglichen Bedarf vorhanden.



Nutzen Sie die Gelegenheit, Ihre Vision in dieser einzigartigen Immobilie in Kitzbühel zu realisieren. Egal, ob Sie eine Praxis für Gesundheitsberufe, ein Büro für kreative Projekte oder einen repräsentativen Standort für Ihr Unternehmen suchen – diese Immobilie bietet Ihnen die perfekte Basis. Überzeugen Sie sich selbst von den Vorzügen dieser erstklassigen Lage und machen Sie den ersten Schritt in eine erfolgreiche Zukunft!







Noch nichts gefunden? Wir informieren Sie über geeignete Immobilienangebote noch vor allen anderen.
Legen Sie jetzt Ihren individuellen Suchagenten unter folgendem Link an. Wir schicken Ihnen passende Immobilien exklusiv vorab zu.

Suchagent anlegen - https://herbert-eisenmann.service.immo/registrieren/de


Hinweis gemäß Energieausweisvorlagegesetz: Ein Energieausweis wurde vom Eigentümer bzw. Verkäufer, nach unserer Aufklärung über die generell geltende Vorlagepflicht, sowie Aufforderung zu seiner Erstellung noch nicht vorgelegt. Daher gilt zumindest eine dem Alter und der Art des Gebäudes entsprechende Gesamtenergieeffizienz als vereinbart. Wir übernehmen keinerlei Gewähr oder Haftung für die tatsächliche Energieeffizienz der angebotenen Immobilie.

Infrastruktur / Entfernungen

Gesundheit
Arzt <500m
Apotheke <1.000m
Klinik <500m
Krankenhaus <10.000m

Kinder & Schulen
Schule <1.000m
Kindergarten <1.500m

Nahversorgung
Supermarkt <500m
Bäckerei <500m
Einkaufszentrum <500m

Sonstige
Bank <500m
Geldautomat <500m
Post <2.000m
Polizei <1.500m

Verkehr
Bus <500m
Bahnhof <1.500m
Flughafen <10.000m

Angaben Entfernung Luftlinie / Quelle: OpenStreetMap

Eckdaten Objektnr. 7329/278

Art: Büro / Praxis
Land: Österreich
Zustand: Gepflegt
Alter: Neubau
Heizkosten: 199,00 €
Bürofläche: 116,00 m²
Zimmer: 2
WC: 2
Balkone: 1
Nebenkostenübersicht Kauf Immobilie merken Exposé

Ausstattung

Parkett, Fliesen, Personenaufzug, DV-Verkabelung


Immobilie anfragen


Ihre persönliche Beratung

Eisenmann Immobilien GmbH

Herbert Eisenmann

Eisenmann Immobilien e.U.

H +43 664 831 7331