Generalsaniertes Traumhaus nahe Wien, schnell erreichbar vom P+R Hütteldorf

Haus - Einfamilienhaus, 3052 Innermanzing


Beschreibung der Immobilie

Generalsaniertes Traumhaus nahe Wien, schnell erreichbar vom P+R Hütteldorf

Dieses rundum äußerst gepflegte Einfamilienhaus befindet sich in herrlicher Ruhelage mit traumhaftem Grünblick in der Wienerwaldgemeinde Neustift-Innermanzing. Es wurde im Jahre 1956 erbaut, die vollständige Generalsanierung wurde 2024 abgeschlossen (Dach, Leitungen, Fenster, Heizung, Wärmedämmung, Carport,..).



Im Ortsgebiet gibt es einen Kindergarten, eine Volksschule und die Neue Mittelschule Laabental. Weiterführende Schulen, eine Vielzahl an Einkaufsmöglichkeiten und einen Bahnhof mit halbstündlichen Verbindungen Richtung Wien bzw. St. Pölten findet man im 6 km entfernten Neulengbach. Mit dem Auto benötigt man 5 Minuten zur A1-Auffahrt Altlengbach. Das P+R Hütteldorf im westlichen Wien erreicht man in rund 25 Minuten, St.Pölten erreicht man in nur 15 Minuten. Mit dem stündlichen Bus benötigt man zum Bahnhof Eichgraben 15 Minuten und zur U4 Hütteldorf 35 Minuten.



Das Erdgeschoß wird dominiert von einem ca. 45 m² großen Wohn-Essbereich mit Küche und Ausgang auf den Balkon. Neben dem Vorraum mit Gang und Stiegen wird ein separates WC geboten.



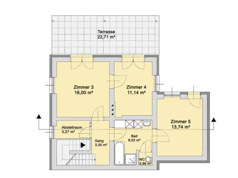
Im Gartengeschoß stehen den zukünftigen BewohnerInnen drei geräumige Zimmer mit jeweils einem Gartenzugang zur Verfügung. Ein Badezimmer mit Badewanne und ein durch eine Tür separiertes WC, sowie ein Abstellraum und Gang vervollständigen das Raumangebot in diesem Geschoß.



Das Obergeschoß verteilt sich auf einen zentralen Gang, ein ca. 30 m² großes Zimmer (auch teilbar) mit einflügeliger und doppelflügeliger Fenstertür, ein weiteres Zimmer mit Fenster, einen Abstellraum und ein Badezimmer mit Dusche und Waschbecken.


Der Vermittler ist als Doppelmakler tätig.

Infrastruktur / Entfernungen

Gesundheit
Arzt <2.000m
Apotheke <7.500m

Kinder & Schulen
Schule <2.000m
Kindergarten <1.500m

Nahversorgung
Supermarkt <2.000m
Bäckerei <2.000m

Sonstige
Bank <2.500m
Geldautomat <2.500m
Post <1.500m
Polizei <3.500m

Verkehr
Bus <1.000m
Autobahnanschluss <3.000m
Bahnhof <7.500m

Angaben Entfernung Luftlinie / Quelle: OpenStreetMap

Eckdaten Objektnr. 95242

Art: Haus - Einfamilienhaus
Land: Österreich
Baujahr: 1956
Zustand: Teil_vollrenoviert
Kaufpreis: 570.000,00
Wohnfläche: 165,00 m²
Grundstücksfl.: 490,00 m²
Zimmer: 7
Bäder: 2
WC: 2
Balkone: 1
Terrassen: 1
Stellplätze: 1
Heizwärmebedarf:  C  59,00 kWh/m²a
fGEE: 1,19
Nebenkostenübersicht Kauf Immobilie merken Exposé

Ausstattung

Parkett, Fliesen, Gas, Etagenheizung, Nordbalkon, Dusche, Badewanne, Parkplatz


Immobilie anfragen


Ihre persönliche Beratung

Rudi Dräxler Immobilientreuhand GesmbH

​Karin Hanika

Rudi Dräxler Immobilientreuhand GesmbH

T ​+43 1 577 44 34

H ​+43 664 394 0880