PREISREDUKTION!!! Erstbezug Dachausbau - Nähe Währinger Straße!

Wohnung - Dachgeschoß, 1180 Wien , Gymnasiumstraße


Öffentliche Verkehrsanbindung: Eine gute öffentliche Verkehrsanbindung ist durch die nahegelegene U6, Station Nußdorferstraße oder Währinger Straße Volksoper, die Autobuslinien 37A u. 40A und die Straßenbahnlinien 40 u. 41 gegeben. Infrastruktur: Zum Flanieren und shoppen sind auf der Währinger Straße und den umliegenden Seitengassen eine Vielzahl an hochwertigen Geschäften und Lokale für jeden Geschmack. Für den täglichen Einkauf befinden sich Supermärkte, Bioläden und der Kutschkermarkt in unmittelbarer Nähe. Zum Ausspannen und sporteln sind der Türkenschanzpark und der Währinger Park schnell zu erreichen.

Beschreibung der Immobilie

PREISREDUKTION!!! Erstbezug Dachausbau - Nähe Währinger Straße!

PROJEKTDATEN



1180 Wien, Gymnasiumstraße 28



Direkt am Cottage in zentraler Lage mit sehr guter Infrastruktur und gut öffentlicher Verkehrsanbindung. 



Ein schönes Wiener Jahrhundertwendehaus wird renoviert und ein neues Dachgeschoss mit 2 Etagen wurde neu errichtet. Im 1.,2. und 3. Stock werden 11 Altbauwohnungen topsaniert.



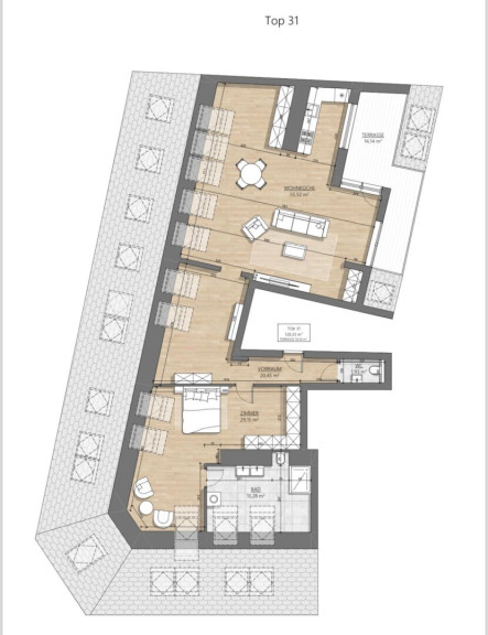
2. Dachgeschoss/ Top 31:



  • 73m² große Wohnküche mit Ausgang auf die hofseitig ausgerichtete Terrasse mit 14m²
  • 1 Schlafzimmer
  • 1 Durchgangszimmer
  • Badezimmer mit Dusche und WC
  • Separates WC
  • Vorraum


weitere Informationen finden Sie unter http://www.gym28.at



Im 1. und 2.Dachgeschoss werden insgesamt 6 Wohnungen errichtet. Im 2. und 3. Stock werden 11 Altbauwohnungen saniert.



  • 11 topsanierte Altbauwohnungen
  • 1.DG: 4 Dachwohnung / Neuausbau
  • 2.DG: 2 Dachwohnung / Neuausbau
  • 58 m² bis 120 m2 Wohnfläche
  • 2 – 3 Zimmer Wohnungen
  • Teilweise mit Freifläche
  • Schlüsselfertige Übergabe (lt. Bau und Ausstattungbeschreibung)


AUSSTATTUNG



  • Moderne duale Hauszentralheizung 
  • Luft-Wasser-Wärmepumpe
  • Alle Wohnungen mit Kühlfunktion (über L/W-Wärmepumpe)
  • Fußbodenheizung (- kühlung)
  • Klimaanlage
  • Großzügige Sanitärbereiche (Feinsteinzeug 60x30/60x60)
  • Eichenparkettböden
  • Großformatige Feinsteinzeugfliesen (Bad/WC)
  • Gegensprechanlage
  • Neuer Personenlift
  • Fahrradabstellraum


Öffentliche Verkehrsmittel:



* Straßenbahn: 40, 41

* Autobus Linie: 37A, 40A

* U-Bahn: U6 - Nußdorfer Straße

* U-Bahn: U6 - Währinger Straße



Wir weisen darauf hin, dass zwischen dem Vermittler und dem Auftraggeber ein familiäres oder wirtschaftliches Naheverhältnis besteht.




Wir weisen darauf hin, dass zwischen dem Vermittler und dem zu vermittelnden Dritten ein familiäres oder wirtschaftliches Naheverhältnis besteht.


Der Vermittler ist als Doppelmakler tätig.

Infrastruktur / Entfernungen

Gesundheit
Arzt <250m
Apotheke <500m
Klinik <500m
Krankenhaus <750m

Kinder & Schulen
Schule <500m
Kindergarten <250m
Universität <500m
Höhere Schule <500m

Nahversorgung
Supermarkt <250m
Bäckerei <500m
Einkaufszentrum <1.750m

Sonstige
Geldautomat <500m
Bank <500m
Post <500m
Polizei <1.000m

Verkehr
Bus <250m
U-Bahn <500m
Straßenbahn <500m
Bahnhof <750m
Autobahnanschluss <1.750m

Angaben Entfernung Luftlinie / Quelle: OpenStreetMap

Eckdaten Objektnr. 1818311-1

Art: Wohnung - Dachgeschoß
Land: Österreich
Zustand: Erstbezug
Alter: Neubau
Kaufpreis: 795.000,00
Wohnfläche: 120,45 m²
Zimmer: 2
Bäder: 1
WC: 2
Terrassen: 1
Heizwärmebedarf: 27,70 kWh/m²a
fGEE: 0,71
Nebenkostenübersicht Kauf Immobilie merken Exposé

Ausstattung

Parkett, Fliesen, Fußbodenheizung, Wohnküche / offene Küche, Personenaufzug, Bad mit Fenster, Dusche, Kabel/Satelliten-TV


Immobilie anfragen


Ihre persönliche Beratung

Ticon Immobilienservice

Alexander Lafenthaler

Ticon Immobilienservice

T +43 664 1225007

H +43 664 1225007

F +43 1 9618101