Schöne 4-Zimmer Wohnung, Nähe Westbahnhof

Wohnung , 1060 Wien,Mariahilf


Beschreibung der Immobilie

Schöne 4-Zimmer Wohnung, Nähe Westbahnhof

Im Falle der Notwendigkeit einer Fremdfinanzierung Ihrer Wunschimmobilie ermittelt unser Wohnbau-Finanzierungsexperte gerne die optimale Finanzierungslösung und findet das passende Zins- und Konditionsangebot für Sie. Er vergleicht die aktuellen Angebote aller relevanten Banken und Bausparkassen. Der Angebotsvergleich kann aus einem Portfolio von über 120 Banken erfolgen. Das Erstgespräch ist für Sie kostenfrei und unverbindlich, gerne auch bei Ihnen vor Ort. So sparen Sie Ihre wertvolle Zeit und erhalten eine professionelle und unabhängige Finanzierungslösung vom Spezialisten. Sprechen Sie uns wegen eines Termins gerne an!





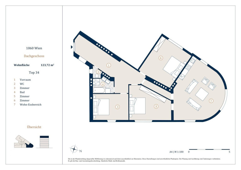
Zum Verkauf gelangt eine schöne 4-Zimmer Wohnung im 6. Wiener Gemeindebezirk Neubau.



Die Wohnung befindet sich im DG eines schönen Stilaltbaus aus dem Jahr 1897 und gliedert sich in einen Vorraum, eine Wohnküche, drei Zimmer, ein Badezimmer und ein separates WC. Die Wohnung ist möbliert.



Sie betreten die Wohnung und befinden sich im Vorraum, gerade durch gelangen Sie in die geräumige Wohnküche mit einem schönen Erker. Alle Zimmer sind getrennt begehbar. Das Bad ist mit einer Badewanne, einer Dusche, einem Doppelwaschbecken und einer Waschmaschine ausgestattet. Das separate WC ist vom Vorraum erreichbar. Die Wohnräume sind mit schönem Parkett ausgestattet und die Nassräume sind verfliest.



Das Gebäude erstreckt sich über vier Regelgeschoße sowie ein ausgebautes Dachgeschoß und bietet eine vielfältige Auswahl an Wohnungen. Einige Einheiten befinden sich in gepflegtem Gebrauchtzustand, während andere hochwertig saniert wurden.



Die Lage überzeugt durch ihre ausgezeichnete Infrastruktur. In direkter Umgebung befinden sich zahlreiche Einkaufsmöglichkeiten, Cafés, Restaurants und kulturelle Einrichtungen – allen voran die Mariahilfer Straße als bedeutendste Einkaufsmeile Wiens. Die öffentliche Verkehrsanbindung ist hervorragend, mit U-Bahn-Stationen der Linie U3 in Gehweite sowie mehreren Straßenbahn- und Buslinien in der Nähe. Auch der Westbahnhof ist schnell erreichbar und sorgt für optimale nationale und internationale Anbindung.



Zudem bietet das Umfeld ein umfassendes Angebot an Nahversorgung, medizinischer Betreuung sowie Bildungs- und Betreuungseinrichtungen für Kinder. Die Nähe zu beliebten Erholungs- und Freizeitangeboten wie dem MuseumsQuartier oder dem Burggarten rundet die hohe Lebensqualität dieser Adresse ab.



Die Vertragserrichtung und Treuhandabwicklung ist gebunden an die Kanzlei Mag. Schreiber A-1010 Wien, Schottenring 16. Die Kosten betragen 1,5 % des Kaufpreises zzgl. 20 % USt. sowie Barauslagen und Beglaubigung. Bei Fremdfinanzierung erhöht sich das Honorar auf 1,8 % vom Kaufpreis zzgl. 20 % USt., Barauslagen und Beglaubigung.



Für Besichtigungsmöglichkeiten und nähere Informationen stehen wir Ihnen gerne zur Verfügung.



Frau Marie-Louise Eisenburger

national - Tel: 0676 605 9800
international - Tel.: +43 676 605 9800
e-mail: eisenburger@lifestyle-properties.at


Wir weisen darauf hin, dass zwischen dem Vermittler und dem zu vermittelnden Dritten ein familiäres oder wirtschaftliches Naheverhältnis besteht.


Der Vermittler ist als Doppelmakler tätig.

Infrastruktur / Entfernungen

Gesundheit
Arzt <500m
Apotheke <500m
Klinik <500m
Krankenhaus <500m

Kinder & Schulen
Schule <500m
Kindergarten <500m
Universität <1.000m
Höhere Schule <1.500m

Nahversorgung
Supermarkt <500m
Bäckerei <500m
Einkaufszentrum <1.000m

Sonstige
Geldautomat <500m
Bank <500m
Post <500m
Polizei <500m

Verkehr
Bus <500m
U-Bahn <500m
Straßenbahn <500m
Bahnhof <500m
Autobahnanschluss <4.500m

Angaben Entfernung Luftlinie / Quelle: OpenStreetMap

Eckdaten Objektnr. 4972

Art: Wohnung
Land: Österreich
Baujahr: 1897
Alter: Altbau
Kaufpreis: 780.000,00
Wohnfläche: 123,72 m²
Zimmer: 4
Bäder: 1
WC: 1
Heizwärmebedarf:  E  195,70 kWh/m²a
fGEE: 2,18
Nebenkostenübersicht Kauf Immobilie merken Exposé

Ausstattung

Fliesen, Parkett, Gas, Etagenheizung, Einbauküche, Personenaufzug, Badewanne, Dusche


Immobilie anfragen


Ihre persönliche Beratung

IM Lifestyle Properties GmbH

Marie-Louise Eisenburger

Lifestyle Properties

T +43 1 512 14 84

H +43 676 6059800