360° TOUR // VINEYARD RESIDENCES - ERSTBEZUG NEUBAUEIGENTUMS-BÜRO in NEUSTIFT AM WALDE

Büro / Praxis , 1190 Wien


Beschreibung der Immobilie

360° TOUR // VINEYARD RESIDENCES - ERSTBEZUG NEUBAUEIGENTUMS-BÜRO in NEUSTIFT AM WALDE

ERSTBEZUG-NEUBAUEIGENTUMS-BÜRO IN NEUSTIFT

Im Herzen von Neustift am Walde gelangt eine exklusive Eigentumsgeschäftslokal mit ca. 75m² Bürofläche zum Verkauf

Das Bürolokal befindet sich im Erdgeschoß eines Mehrparteienhauses mit 4 Einheiten, welches im Jahre 2021 errichtet wurde.
Das Gebäude ist voll unterkellert und verfügt über einen Personenaufzug und eine hauseigene Tiefgarage.

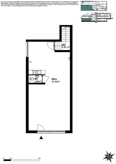
Raumaufteilung:
Das Büro Top 1 mit ca. 75,01 m² Nutzfläche gliedert sich wie folgt:

Büroraum (ca. 67,92m²)
separate Toilette mit Handwaschbecken (ca. 1,80m²)
Abstellraum im Untergeschoß (ca. 5,29m²)

Ausstattung:
• Feinsteinzeug-Fliesenboden
• Fußbodenheizung
• elektrische Außenrollläden
• dreifach isolierverglaste Fenster
• Sicherheitseingangstüre
• Lift

PKW-Garagenplätze im Innenhof können um Euro 50.000,- je Stellplatz zusätzlich erworben werden.

Das Objekt befindet sich in einer der besten Lagen Wiens im 19. Gemeindebezirk, welcher durch seine Grünruhelage besonders beliebt ist. Der Wienerwald und die Weingärten befinden sich in unmittelbarer Nähe. Besonders für Naturliebhaber und Sportbegeisterte ist die Umgebung bestens geeignet.
Zusätzlich lädt eine Vielzahl an Heurigen zum Verweilen ein. In der naheliegenden Krottenbachstraße stehen darüber hinaus zahlreiche Einkaufsmöglichkeiten zur Verfügung.

Durch die Buslinie 35A ist die Anbindung an die U-Bahnlinien U4 und U6 (Station Spittelau) und somit eine gute Erreichbarkeit des Stadtzentrums gewährleistet.

Energieausweis:
Der Heizwärmebedarf beträgt 47,6 kWh/m²a, welcher der Klasse B entspricht.

Infrastruktur / Entfernungen

Gesundheit
Arzt <1.000m
Apotheke <500m
Klinik <2.500m
Krankenhaus <3.000m

Kinder & Schulen
Schule <1.000m
Kindergarten <500m
Universität <2.500m
Höhere Schule <3.000m

Nahversorgung
Supermarkt <500m
Bäckerei <1.000m
Einkaufszentrum <3.500m

Sonstige
Geldautomat <2.000m
Bank <2.000m
Post <500m
Polizei <2.500m

Verkehr
Bus <500m
Straßenbahn <1.500m
U-Bahn <3.500m
Bahnhof <3.000m
Autobahnanschluss <5.000m

Angaben Entfernung Luftlinie / Quelle: OpenStreetMap

Eckdaten Objektnr. 17767

Art: Büro / Praxis
Land: Österreich
Baujahr: 2022
Zustand: Neuwertig
Kaufpreis: 299.000,00
Nutzfläche: 75,01 m²
Zimmer: 2
WC: 1
Heizwärmebedarf:  B  47,60 kWh/m²a
Nebenkostenübersicht Kauf Immobilie merken Exposé

Ausstattung

Gas, Etagenheizung, Personenaufzug


Immobilie anfragen


Ihre persönliche Beratung

KALANDRA Immobilien Robert Kalandra e.U.

Mag. Robin Kalandra

KALANDRA Immobilien Robert Kalandra e.U.

T +43-1533326913

H +43-69911804004

F +43-1-533-32-69-20