360° TOUR // DACHGESCHOßWOHNUNG mit TERRASSE

Wohnung - Penthouse, 1090 Wien


Beschreibung der Immobilie

360° TOUR // DACHGESCHOßWOHNUNG mit TERRASSE

DACHTERRASSENWOHNUNG im klassischen STILHAUS nahe CANISIUSKIRCHE


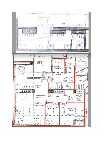
Diese ca. 135m² (inkl. gewichteter Terrassenflächen) große, lichtdurchflutete Dachgeschoßwohnung (BJ 2014) bietet auf 2 Ebenen Terrassenflächen mit traumhaftem Blick über Wien sowie folgende



Raumaufteilung:

1.Ebene:

Vorzimmer, übergehend in das großzügige Wohn-& Eßzimmer mit offen gestalteter Wohnküche und Zugang zu einer süd-ostseitigen Terrasse (ca. 6m²), zwei getrennt zugängliche Schlafzimmer, ein Badezimmer mit Dusche und WC, ein Wirtschafts-/ Abstellraum sowie ein separates Gäste-WC; aus dem Wohnraum führt eine verglaste Innenstiege in die



2.Ebene:

Galerie bzw. weiteres Schlafzimmer mit Zugang zur Dachterrasse (ca. 23m²) die einen weiten Fernblick auf die Stadt bietet sowie auch in angrenzende, begrünte Innenhöfe, ein Badezimmer mit Badewanne und WC.



Ausstattung:

- in den Wohnräumen durchgehend dunkel geölter Eichen-Langdielenboden

- Sanitärräume mit anthrazitgrauem Feinsteinzeug verfliest

- komplette Design-Einbauküche

- Obergeschoß mit Klimatisierung ausgestattet

- Gas-Etagenheizung



Monatliche Kosten:

Betriebskosten inkl. Rücklage: € 441,90 (brutto)

davon Rep.Rl.: € 112,87

Betriebskosten: € 299,12 (netto)



Einen Garagenplatz kann bei Bedarf um € 140,- brutto monatlich in der nahe gelegenen Ayrenhoffgasse angemietet werden.



Sie wohnen hier in zentraler Lage und profitieren von perfekter Infrastruktur. Einkaufsmöglichkeiten, Nahversorger, Supermärkte, Apotheken, öffentliche Verkehrsmittel (U6-Bahn, diverse Bus-, Straßenbahnlinien), Kindergärten, Schulen, Sport- und Freizeitmöglichkeiten und vieles mehr befinden sich in unmittelbarer Nähe.



360° Tour:

https://360.kalandra.at/view/portal/id/VZY7Z

Infrastruktur / Entfernungen

Gesundheit
Arzt <500m
Apotheke <500m
Klinik <500m
Krankenhaus <1.000m

Kinder & Schulen
Schule <500m
Kindergarten <500m
Universität <500m
Höhere Schule <500m

Nahversorgung
Supermarkt <500m
Bäckerei <500m
Einkaufszentrum <2.000m

Sonstige
Geldautomat <500m
Bank <500m
Post <500m
Polizei <1.000m

Verkehr
Bus <500m
U-Bahn <500m
Straßenbahn <500m
Bahnhof <500m
Autobahnanschluss <1.500m

Angaben Entfernung Luftlinie / Quelle: OpenStreetMap

Eckdaten Objektnr. 18220

Art: Wohnung - Penthouse
Land: Österreich
Baujahr: 1900
Zustand: Neuwertig
Kaufpreis: 1.230.000,00
Betriebskosten: 299,12 €
MwSt Gesamt: 29,91 €
Wohnfläche: 125,41 m²
Zimmer: 4
Bäder: 2
WC: 3
Terrassen: 2
Heizwärmebedarf:  B  48,80 kWh/m²a
fGEE:  C  1,06
Nebenkostenübersicht Kauf Immobilie merken Exposé

Ausstattung

Gas, Etagenheizung, Personenaufzug


Immobilie anfragen


Ihre persönliche Beratung

KALANDRA Immobilien Robert Kalandra e.U.

Oliver Kalandra

KALANDRA Immobilien Robert Kalandra e.U.

T +43-1/ 533-32-69-12

H +43-699/ 1040-4010

F +43 1/533-32-69-20