360° TOUR // LUXUS-MÖBLIERTE DOPPELHAUSHÄLFTE

Haus - Doppelhaushälfte, 1230 Wien


Beschreibung der Immobilie

360° TOUR // LUXUS-MÖBLIERTE DOPPELHAUSHÄLFTE

MÖBLIERTES EINFAMILIENHAUS IN GRÜNRUHELAGE

Diese in eine ruhigen Gasse, im Cottagegebiet von Mauer gelegene Doppelhaushälfte kann komplett möbliert (wie abgebildet) erworben werden.
Die Gesamtwohnfläche von ca. 170m² verteilt sich auf 3 Ebenen mit fogender

Raumaufteilung:
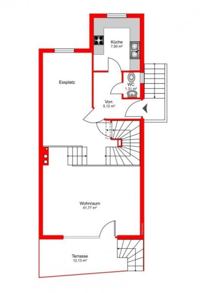
Gartengeschoß:
Vorraum, großes Wohn-/ Eßzimmer (ca. 41m²) auf 2 Ebenen mit Ausgang über einen angebauten Wintergarten in den nach Süden ausgerichtete Garten sowie zu einer ca. 12m² große Terrasse, Küche (ca. 7m²), Gäste-WC;

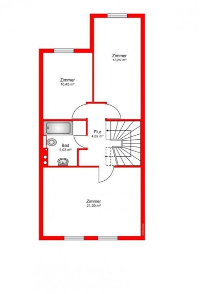
Obergeschoß:
Vorraum, drei Schlafzimmer (ca. 10m², 14m² & 21m²), aus dem größten Ausgang auf eine gartensüdseitige Terrasse, großes Badezimmer mit Wanne und WC (ca. 5m²);

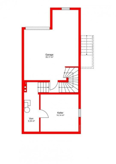
Kellergeschoß:
ein Zimmer (ca. 14m²) mit großem Fenster in den Garten, Duschbad, Wirtschaftsraum.

Ein Garagenplatz mit direktem Zugang zum Haus.
Ein zweiter Abstellplatz für einen PKW ist direkt vor der Garage am Grundstück gegeben.

Ausstattung:
• Umbau/ Erweiterung um Wintergarten und Generalsanierung im Jahr 2022
• moderne Vaillant Heiztherme (Mod. 2022)
• Sichtschutz zu Nachbarn durch eine 20m lange und 3m hohe Zypressenzaun-Hecke
• Natursteinverfliesung und WPC Terrassendiele im Garten
• Parkett-& Laminatboden
• Steinkeramikfliesen in Küche & Sanitärräumen
• Einbauküche
• Terrasse mit Loungemöbeln & Gartenzelt
• Kabel-& Satelliten-TV, Internetanschluß (Glasfaser-Verkabelung möglich)
• Garage
• Wirtschaftsraum mit Waschmaschine und Trockner
• massive Kunststofffenster
• elektrische Außenbeschattung und Klimaanlage
• Raumhöhe von teilweise über 3m

Das Haus ist sehr großzügig, effizient geschnitten und voll unterkellert.
Das ist Haus mit einer direkten Telefonverbindung zur Polizei sowie mittels Videoüberwachung alarmgesichert.

360° Tour:
https://360.kalandra.at/view/portal/id/VRGLP
--------------------------------------

FURNISHED DETACHED HOUSE in GREEN and QUIET AREA

This semi-detached house is located in a quiet lane in the cottage area of "Mauer" and is offered completely furnished as shown in the pictures.

Layout:
Garden level:
entrance hall, large living/ dining room on 2 levels (ca. 41 sqm) with exit with exit via an attached "Winter Garden" to the south-facing garden and a 12m² terrace, kitchen (ca .7sqm), guest toilet;

1st level:
ante room, three bedrooms (ca. 10sqm, 14sqm & 21sqm), bathroom with tub and toilet (ca. 5 sqm);

Basement:a room (ca. 14 sqm) with large window to the garden, shower bathroom, laundry room.

One garage with direct access to the house, a second parking space for one car in front of the garage on the property.

Furnishing & equipment:
• parquet flooring
• stone ceramic tiles in kitchen & sanitary rooms
• fully equipped kitchen
• terrace with lounge furniture & garden tent
• cable-/ satellite TV, internet (optional by fiber optic cabling)
• garage
• laundry room with washer and dryer
• solid plastic windows
• electric shades and aircondition
• room height of over 3 meters
• the is house protected with a direct alarm connection to the police & video surveillance.

360° tour:
https://360.kalandra.at/view/portal/id/VRGLP

Infrastruktur / Entfernungen

Gesundheit
Arzt <500m
Apotheke <1.000m
Klinik <1.500m
Krankenhaus <500m

Kinder & Schulen
Schule <1.000m
Kindergarten <500m
Universität <3.500m
Höhere Schule <5.000m

Nahversorgung
Supermarkt <500m
Bäckerei <1.000m
Einkaufszentrum <2.500m

Sonstige
Geldautomat <1.000m
Bank <1.500m
Post <1.500m
Polizei <2.500m

Verkehr
Bus <500m
Straßenbahn <500m
U-Bahn <3.000m
Bahnhof <1.500m
Autobahnanschluss <3.000m

Angaben Entfernung Luftlinie / Quelle: OpenStreetMap

Eckdaten Objektnr. 17129

Art: Haus - Doppelhaushälfte
Land: Österreich
Baujahr: 1988
Zustand: Neuwertig
Möbliert: Voll
Kaufpreis: 990.000,00
Betriebskosten: 118,30 €
MwSt Gesamt: 11,83 €
Wohnfläche: 170,00 m²
Grundstücksfl.: 237,50 m²
Zimmer: 6
Bäder: 2
WC: 2
Terrassen: 1
Stellplätze: 1
Nebenkostenübersicht Kauf Immobilie merken Exposé

Ausstattung

Gas, Etagenheizung


Immobilie anfragen


Ihre persönliche Beratung

KALANDRA Immobilien Robert Kalandra e.U.

Mag. Robin Kalandra

KALANDRA Immobilien Robert Kalandra e.U.

T +43-1533326913

H +43-69911804004

F +43-1-533-32-69-20