360 TOUR // LUXUS-MÖBLIERTE DOPPELHAUSHÄLFTE

Wohnung , 1230 Wien


Beschreibung der Immobilie

360 TOUR // LUXUS-MÖBLIERTE DOPPELHAUSHÄLFTE

MÖBLIERTES EINFAMILIENHAUS IN GRÜNRUHELAGE

Diese in eine ruhigen Gasse Mauers gelegene Haushälfte wird komplett möbliert angeboten.

Raumaufteilung:
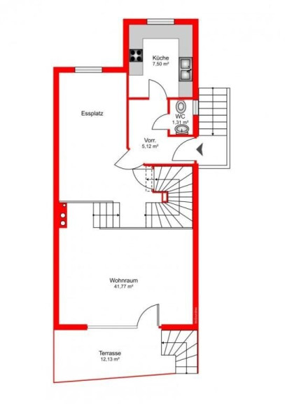
Gartengeschoss:
Vorraum, 41m² großer Wohn/Esssalon auf 2 Ebenen mit Ausgang in den nach Süden ausgerichtete Garten sowie eine 12m² große Terrasse, 7m² Küche, WC
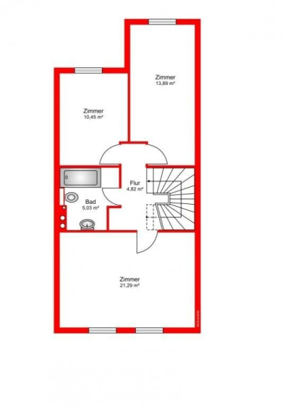
Obergeschoss,:
drei Schlafzimmer mit je 10m², 14m² & 21m²) 5m² großes Badezimmer mit Wanne
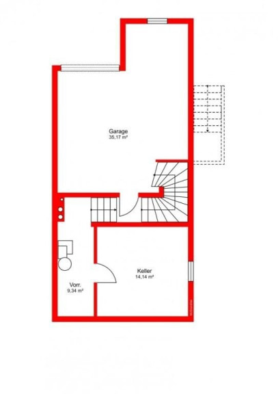
Kellergeschoss:
ein weiteres 14m² großes Zimmer mit großem Fenster in den Garten Duschbad, Wäscheraum
Garage im mit direktem Zugang ins Haus
Ein zweiter Abstellplatz für ein Auto ist direkt vor der Garage am Grundstück.

Ausstattung
• 2022 generalsaniert
• neue moderne Vaillant Heiztherme
• 20m langer 3m hohe Zypressenzaun
• Natursteinverfliessung und WPC Terrassendiele im Garten
• Parkettboden
• Steinkeramikfliesen in Küche & Nassräumen
• Einbauküche
• Terrasse mit Loungemöbeln & Gartenzelt
• Kabel / Satelliten-TV
• Garage
• Wäscheraum mit Waschmaschine und Trockner
• Kunststofffenster Massiv
• Raumhöhe von teilweise weit über 3 Metern
Das Haus ist sehr großzügigen effizient geschnitten und voll unterkellert.



Das ist Haus mit einer direkten Verbindung zur Polizei & Videoüberwachung alarmgesichert.

360 ° Tour
Klicken Sie hier für eine virtuelle 360 ° Tour
FURNISHED DETACHED HOUSE IN GREEN RUHELAGE

This semi-detached house is located in a quiet lane Ober St.Veiths and isoffered completely furnished.

Interior layout:
Garden level:
Entrance hall, 41m² large living / dining room on 2 levels with exit to the south-facing garden and a 12m² terrace, 7m² kitchen, WC
upstairs ,:
three bedrooms each with 10sqm, 14sqm & 21sqm) 5sqm bathroom with tub
Basement:
another 14sqm room with large window to the garden shower room, laundry room
Garage with direct access to the house
A second parking space for a car is directly in front of the garage on the property.

domestic equipments
• parquet floor
• Stone ceramic tiles in kitchen & wet rooms
• Equipped kitchen
• Terrace with lounge furniture & garden tent
• Cable / Satellite TV
• Garage
• Laundry room with washer and dryer
• Plastic windows solid
• Room height of sometimes well over 3 meters

This is house alarmed with a direct connection to the police & video surveillance.

Virtuelle 360 ° Tour

Klicken Sie hier für eine virtuelle 360 ° Tour

Infrastruktur / Entfernungen

Gesundheit
Arzt <500m
Apotheke <1.000m
Klinik <1.500m
Krankenhaus <500m

Kinder & Schulen
Schule <1.000m
Kindergarten <500m
Universität <3.500m
Höhere Schule <5.000m

Nahversorgung
Supermarkt <500m
Bäckerei <1.000m
Einkaufszentrum <2.500m

Sonstige
Geldautomat <1.000m
Bank <1.500m
Post <1.500m
Polizei <2.500m

Verkehr
Bus <500m
Straßenbahn <500m
U-Bahn <3.000m
Bahnhof <1.500m
Autobahnanschluss <3.000m

Angaben Entfernung Luftlinie / Quelle: OpenStreetMap

Eckdaten Objektnr. 18322

Art: Wohnung
Land: Österreich
Baujahr: 1988
Zustand: Neuwertig
Möbliert: Teil
Kaufpreis: 990.000,00
Betriebskosten: 118,30 €
MwSt Gesamt: 11,83 €
Wohnfläche: 170,00 m²
Zimmer: 6
Terrassen: 1
Stellplätze: 1
Garten: 237,50 m²
Nebenkostenübersicht Kauf Immobilie merken Exposé

Ausstattung

Gas, Etagenheizung


Immobilie anfragen


Ihre persönliche Beratung

KALANDRA Immobilien Robert Kalandra e.U.

Mag. Robin Kalandra

KALANDRA Immobilien Robert Kalandra e.U.

T +43-1533326913

H +43-69911804004

F +43-1-533-32-69-20