Der Weg zu Ihrem Traumhaus beginnt hier

Haus - Einfamilienhaus, 6095 Grinzens


Das Grundstück befindet sich in Neder, Gemeinde Grinzens, unterhalb des Fußball-Sportplatzes in absoluter Ruhelage. Von hier eröffnet sich ein einzigartiger Fernblick auf die beeindruckende Martinswand und die majestätische Nordkette, über die Stadt Innsbruck bis weit hinein ins Tiroler Oberland. Grinzens überzeugt mit einer gut ausgebauten Gemeindeinfrastruktur – Kindergarten, Schule, Nahversorgung und öffentliche Verkehrsanbindung sind vorhanden. Die Nähe zur Landeshauptstadt Innsbruck, die in wenigen Fahrminuten erreichbar ist, verbindet die Vorteile des urbanen Lebens mit der Ruhe und Natur des Landlebens. Damit ist dieser Standort der ideale Platz für ein Eigenheim, das sowohl Naturnähe als auch Stadtnähe vereint.

Beschreibung der Immobilie

Der Weg zu Ihrem Traumhaus beginnt hier

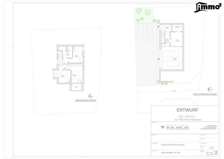
Das Grundstück mit der Gst-Nr: 773/9 umfasst ca. 390 m² und ist als Bauland gewidmet. Es befindet sich in leichter Hanglage mit nördlicher Ausrichtung und bietet einen hervorragenden Ausblick auf die umliegende Bergwelt.



Für das Grundstück liegt bereits eine durchdachte Planung für eine moderne Architektenvilla mit ca 114 m² Wohnfläche vor, die optimal an die Hanglage und die Sonneneinstrahlung angepasst wurde. Das geplante Wohnkonzept umfasst:



    •    3 Schlafzimmer



    •    1 Badezimmer



    •    großzügiger Wohn- und Essbereich mit offener Gestaltung



    •    Loggia und große Terrasse mit angrenzenden Grünflächen



    •    Wirtschaftsraum und Gäste-WC


 



    •    Doppelgarage, großes Kellerabteil, Haustechnikraum und separater Eingang



    •    zusätzlich 2 Außenstellplätze


Die Architektur ist modern, großzügig verglast und verbindet lichtdurchflutete Räume mit einem offenen Wohngefühl. Die Planung kann vom Bauträger übernommen und wie vorgesehen umgesetzt werden. Änderungen sind selbstverständlich möglich. Eine Bindung an den Bauträger besteht nicht – die Ausführung ist frei wählbar. Dennoch stellt die vorhandene Planung eine attraktive Option dar, um den Weg zum eigenen Traumhaus zu erleichtern.


Wir weisen darauf hin, dass zwischen dem Vermittler und dem zu vermittelnden Dritten ein familiäres oder wirtschaftliches Naheverhältnis besteht.


Der Vermittler ist als Doppelmakler tätig.

Infrastruktur / Entfernungen

Gesundheit
Arzt <3.000m
Apotheke <3.000m
Krankenhaus <7.000m

Kinder & Schulen
Schule <1.500m
Kindergarten <2.000m
Universität <9.500m

Nahversorgung
Supermarkt <2.000m
Bäckerei <3.000m
Einkaufszentrum <8.000m

Sonstige
Bank <2.000m
Geldautomat <2.000m
Post <2.000m
Polizei <3.500m

Verkehr
Bus <500m
Straßenbahn <9.500m
Bahnhof <5.000m
Autobahnanschluss <5.500m
Flughafen <9.500m

Angaben Entfernung Luftlinie / Quelle: OpenStreetMap

Eckdaten Objektnr. 989

Art: Haus - Einfamilienhaus
Land: Österreich
Alter: Neubau
Kaufpreis: 986.000,00
Nutzfläche: 136,44 m²
Grundstücksfl.: 390,00 m²
Bäder: 1
WC: 2
Terrassen: 1
Stellplätze: 2
Keller: 22,57 m²
Heizwärmebedarf:  B  46,00 kWh/m²a
fGEE:  A+  0,66
Nebenkostenübersicht Kauf Immobilie merken Exposé

Ausstattung

Fliesen, Parkett, Fußbodenheizung, Garage, Parkplatz


Immobilie anfragen


Ihre persönliche Beratung

Immo-Hoch2

Linda Eller

Immo-Hoch2

T +43 664 1517984