Eibenweg - Sonnige Doppelhaushälfte mit Fernblick | DH2

Haus - Doppelhaushälfte, 4061 Pasching


Die Wohnanlage entsteht in Thurnharting, einem ruhigen Ortsteil der Gemeinde Pasching, in einer angenehmen Wohnsiedlung mit viel Grün. Die Umgebung ist geprägt von Feldern und kleinen Waldflächen und bietet zahlreiche Möglichkeiten für Spaziergänge, Joggen oder Radfahren direkt vor der Haustür. Durch die Nähe zu Pasching, Hitzing und Leonding profitieren Sie von einer sehr guten Infrastruktur. Kinderbetreuungseinrichtungen, Schulen, Ärzte sowie vielfältige Einkaufsmöglichkeiten sind in kurzer Zeit erreichbar. Spiel- und Sportplätze in der Umgebung bieten zusätzlich Raum für Freizeit und Bewegung. Eine ideale Lage für alle, die naturnah wohnen und gleichzeitig eine gute Anbindung genießen möchten.

Beschreibung der Immobilie

Eibenweg - Sonnige Doppelhaushälfte mit Fernblick | DH2

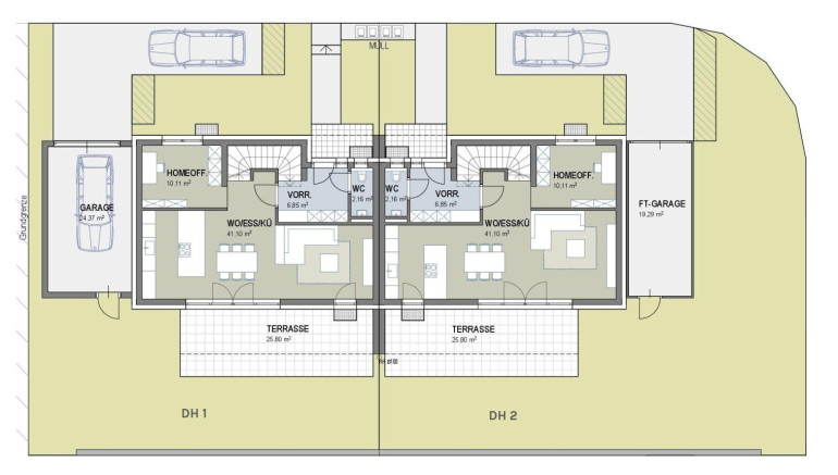
Am Eibenweg in Pasching-Thurnharting entsteht ein attraktives Neubauprojekt mit 8 modernen Doppelhaushälften, die in energieeffizienter Bauweise (HWB 40) realisiert werden. Mit rund 122 m² Wohnfläche bieten die Häuser ein durchdachtes Raumkonzept und schaffen ideale Voraussetzungen für komfortables Familienleben.



Die sonnige Südausrichtung, private Eigengärten sowie großzügige Raumhöhen von mindestens 2,60 m im Erd- und Obergeschoss sorgen für ein besonders helles und offenes Wohngefühl. Die Gärten erweitern den Wohnraum ins Freie und bieten viel Platz zum Entspannen. Auf Wunsch können in den Eigengärten der Doppelhaushälften Swimmingpools als Sonderausstattung umgesetzt werden – für zusätzlichen Wohn- und Freizeitkomfort im eigenen Zuhause.



Highlights im Überblick:



  • ca. 122 m² Wohnfläche auf Erd- und Obergeschoss
  • voll unterkellert – viel Stauraum
  • Massivbauweise mit Ziegel und Stahlbeton, auch Innenwände in Ziegel
  • Luft-Wärmepumpe mit Fußbodenheizung für effiziente Wärme
  • energieeffizienter Bauweise (HWB 40) -> niedrige Betriebskosten
  • Haus Typ A mit Garage + Stellplatz | Haus Typ B mit Carport + Stellplatz
  • wahlweise belags- oder schlüsselfertige Ausführung (Aufzahlung schlüsselfertig: € 47.950,–)
  • parifizierte Ausführung – jede Einheit im Wohnungseigentum
  • förderfähige Bauweise laut Richtlinien des Landes OÖ
  • treuhändige Abwicklung gemäß Bauträgervertragsgesetz (BTVG)




Zusätzliche Informationen:



  • Raumhöhe: mind. 2,60 m (EG & OG), 2,40 m (KG)
  • Anschlusskosten für Kanal, Wasser, Strom, Straßenaufschließung: € 12.000,–  geschätzt und nicht im Kaufpreis inkludiert



Wohnen mit Qualität und Weitblick – sichern Sie sich jetzt Ihre Traumhaushälfte!



Weitere Unterlagen wie Grundrisspläne, Ausstattungsbeschreibung oder Energieausweis senden wir Ihnen gerne auf Anfrage zu.



Finanzierung: 
Die passende Finanzierung bekommen Sie bei der Raiffeisenbank Region Eferding eGen, Raiffeisenweg 2, 4073 Wilhering, Kontaktdaten und Ansprechpartner senden wir Ihnen gerne auf Anfrage mit den weiteren Unterlagen. 





Sehr gerne laden wir Sie auch zu einem unverbindlichen persönlichen Beratungsgespräch in unser Büro in Wels ein oder vereinbaren einen Besichtigungstermin Vorort.

Kontaktieren Sie uns, damit wir einen Termin vereinbaren können! Wir freuen uns auf Sie!



Ihr SPERER Immobilien Team 

Stefan Pichler | 0676 4630535 | s.pichler@sperer-group.com


Wir weisen darauf hin, dass zwischen dem Vermittler und dem zu vermittelnden Dritten ein familiäres oder wirtschaftliches Naheverhältnis besteht.


Der Vermittler ist als Doppelmakler tätig.

Infrastruktur / Entfernungen

Gesundheit
Arzt <2.500m
Apotheke <4.500m
Krankenhaus <8.000m
Klinik <4.500m

Kinder & Schulen
Schule <1.500m
Kindergarten <1.500m
Universität <6.000m
Höhere Schule <8.500m

Nahversorgung
Supermarkt <1.000m
Bäckerei <1.000m
Einkaufszentrum <4.500m

Sonstige
Bank <1.500m
Geldautomat <2.000m
Post <2.000m
Polizei <3.500m

Verkehr
Bus <500m
Straßenbahn <4.500m
Bahnhof <500m
Autobahnanschluss <7.000m
Flughafen <4.000m

Angaben Entfernung Luftlinie / Quelle: OpenStreetMap

Eckdaten Objektnr. 425

Art: Haus - Doppelhaushälfte
Land: Österreich
Baujahr: 2026
Zustand: Erstbezug
Alter: Neubau
Kaufpreis: 695.000,00
Kaufpreis / m²: 5.694,85 €
Wohnfläche: 122,04 m²
Grundstücksfl.: 357,64 m²
Zimmer: 5
Bäder: 1
WC: 2
Terrassen: 1
Stellplätze: 1
Keller: 63,06 m²
Heizwärmebedarf:  B  40,00 kWh/m²a
fGEE:  A+  0,68
Nebenkostenübersicht Kauf Immobilie merken Exposé

Ausstattung

Parkett, Estrichboden, Fliesen, Fußbodenheizung, Wohnküche / offene Küche, Südbalkon, Badewanne, Dusche, Bad mit Fenster, Kabel/Satelliten-TV, Garage, Parkplatz


Immobilie anfragen


Ihre persönliche Beratung

SPERER Immobilien GmbH

Ing. Stefan Pichler

Axia Immobilien GmbH - TESTACCOUNT

T +43 7242 306030

H +43 676 4630535