Reihenhaus-Highlight mit schönem Garten - Einkauf, Schule und Öffis "vor der Türe"

Haus - Reihenhaus, 1140 Wien


Beschreibung der Immobilie

Reihenhaus-Highlight mit schönem Garten - Einkauf, Schule und Öffis "vor der Türe"

Zum Verkauf steht dieses gepflegte Reihenhaus in ausgezeichneter Lage des 14. Wiener Gemeindebezirks. Über drei Ebenen bietet es viel Platz, einen ruhigen Westgarten und eine hervorragende Infrastruktur in unmittelbarer Umgebung.



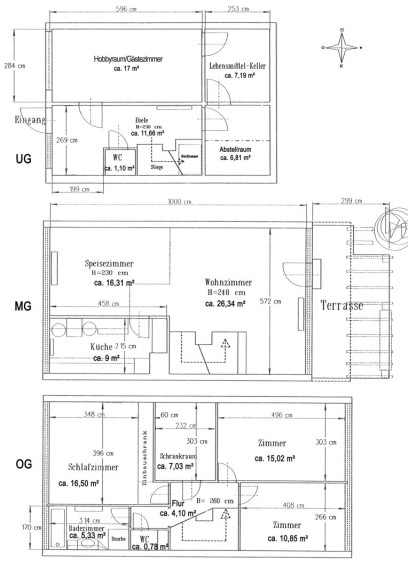
Im Untergeschoß befinden sich Diele mit Garderobe, Abstellräume, Lebensmittelkeller und separates WC. Das Mittelgeschoß überzeugt mit großzügigem Wohn- und Essbereich, Küche mit hochwertigen Miele-Geräten sowie Zugang zur Terrasse mit elektrischer Markise und zum liebevoll gestalteten Garten mit Gerätehäuschen. Im Obergeschoß erwarten Sie drei Zimmer, ein Schrankraum, Bad mit Wanne und Dusche sowie ein weiteres WC.



Die Reihenhausanlage erhielt kürzlich ein neues Dach, vorbereitet für Photovoltaik; der Einbau einer Wärmepumpe ist möglich. Eine PKW-Stellplatzmöglichkeit vor der Haustüre sorgt für Komfort.



Die Lage kombiniert ruhiges Wohnen mit optimaler Anbindung: Bushaltestelle und Nachtbus quasi vor der Türe, Bahnstation Wien-Hadersdorf in 3 Gehminuten, Auhof Center in ca. 500 m Entfernung. Kindergarten, Schulen und Apotheke sind direkt in der Nachbarschaft. Natur und Freizeitmöglichkeiten wie Wienerwald, Wienfluss-Promenade und Radwege liegen ebenfalls in unmittelbarer Nähe.


Der Vermittler ist als Doppelmakler tätig.

Eckdaten Objektnr. 95216

Art: Haus - Reihenhaus
Land: Österreich
Baujahr: 1976
Zustand: Gepflegt
Kaufpreis: 790.000,00
Betriebskosten: 201,33 €
Sonstige Kosten: 90,30 €
Wohnfläche: 124,00 m²
Zimmer: 5
Bäder: 1
WC: 2
Terrassen: 1
Heizwärmebedarf:  C  102,99 kWh/m²a
Nebenkostenübersicht Kauf Immobilie merken Exposé

Ausstattung

Parkett, Fliesen, Laminatboden, Gas, Etagenheizung, Einbauküche, Westbalkon, Dusche, Bad mit Fenster, Badewanne, Kabel/Satelliten-TV, Parkplatz


Immobilie anfragen


Ihre persönliche Beratung

Rudi Dräxler Immobilientreuhand GesmbH

​Maximilian Cypris

Rudi Dräxler Immobilientreuhand GesmbH

T ​+43 1 577 44 34

H +43 664 915 6444