+NEU+ Einzigartiges GEWERBEOBJEKT mit vielseitigen NUTZUNGSMÖGLICHKEITEN und großem BETRIEBSGRUNDSTÜCK in DEUTSCHKREUTZ +

Halle / Lager / Produktion , 7301 Deutschkreutz


Beschreibung der Immobilie

+NEU+ Einzigartiges GEWERBEOBJEKT mit vielseitigen NUTZUNGSMÖGLICHKEITEN und großem BETRIEBSGRUNDSTÜCK in DEUTSCHKREUTZ +

„Hochwertige Gewerbeliegenschaft auf über 5.900 m² – ideal für Bau, Produktion, Handel oder Logistik“





Adresse:



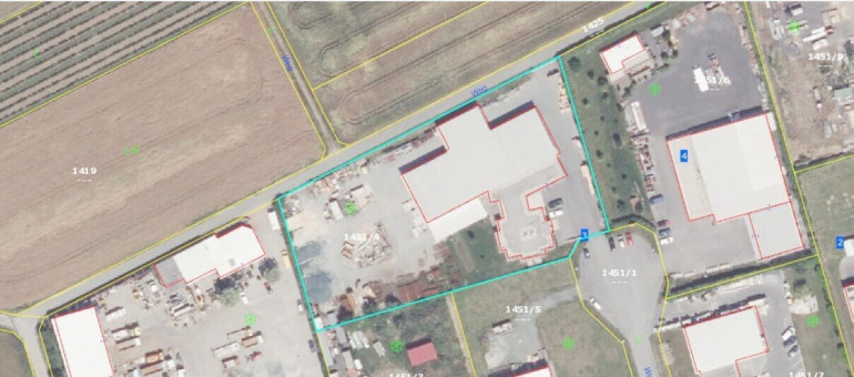
Gewerbestraße, 7301 Deutschkreutz, Mittelburgenland

Grundstücksgröße: 5.914 m² (Widmung: Bauland-Betriebsgebiet)




Objektbeschreibung:



Diese außergewöhnliche Liegenschaft in Deutschkreutz bietet eine hervorragende Kombination aus Büro-, Hallen- und Lagerflächen mit großzügiger Außenanlage. Das gesamte Areal ist betrieblich optimal erschlossen und ermöglicht eine Vielzahl von Nutzungen im gewerblichen oder industriellen Bereich.



Die Immobilie besticht durch ihren gepflegten Zustand, die hochwertige Bauweise, durchdachte Flächenaufteilung sowie umfangreiche Infrastruktur wie Videoüberwachung, asphaltierte Zufahrten und elektrische Einfahrtstore.




Grundstück & Außenanlagen




  • Grundstücksgröße: 5.914 m²
    (davon 1.579 m² Baufläche Gebäude und 4.335 m² Betriebsfläche)



  • Widmung: Bauland – Betriebsgebiet (BB)



  • Befestigung: 60 cm Rollierung mit 10 cm Asphalt – für Schwerlastfahrzeuge geeignet



  • Zufahrt: 3 elektrisch betriebene Schiebetore



  • Sickermulde rund um das Grundstück



  • Vollständig eingefriedet (Betonmauern + Zaunelemente)



  • Außenbereiche:




    • Asphaltierter Parkplatz & Vorplatz



    • Überdachter Ladebereich mit Tankstelle



    • Eisenbiegeplatz



    • Terrassenbereich hinter dem Büro



    • Lagerflächen für Betonelemente, Schotterboxen (verschiedene Körnungen)






Bürotrakt (EG – ca. 395,51 m²)




  • Repräsentativer Windfang mit Glasfront | 8,82 m²



  • Foyer mit Empfangsbereich & Schaltzentrale | 59,88 m²



  • 3 Einzelbüros mit hochwertiger Möblierung | ca. 54 m² gesamt



  • Besprechungsraum mit Massivtisch & 8 Stühlen | 31,93 m²



  • Komplett ausgestattete Küche mit Kundenzone & Hinterausgang | 20,53 m²



  • Sekretariat mit moderner Technik & Möblierung | 24,19 m²



  • Archivraum mit maßgefertigten Schranksystemen | 19,67 m²



  • Lagerraum / Technikraum mit Gastherme, Wasseruhr & Kamin | 16,82 m²



  • Garage mit 2 elektrischen Sektionaltoren, Ölfangrinne & versiegeltem Boden | 67,46 m²





Hallenbereich (ca. 758,43 m²)




  • Lagerhalle in isolierter Stahlbauweise (10 cm Dämmung)

    – 2 große Sektionaltore (4,85 x 4,15 m)

    – Beidseitige LKW-Zufahrt

    – Versiegelter Betonboden | 698,63 m²



  • Kleinteilemagazin, Werkstatt, Hochlager & Problemstofflager | 59,80 m²



  • Tankfläche überdacht mit Seitenwand aus Profilblech | 104,40 m²





Nebenräume / Sozialbereich




  • Verbindungsgang zur Halle & WC-Anlage | 13,23 m²



  • Sanitärräume (Damen & Herren getrennt) mit Waschraum | 11,83 m²



  • Gang zu Sozialraum | 10,37 m²



  • Sozialraum mit Spinden & Boiler | 16,22 m²



  • Lagerraum mit direktem Zugang zur Halle | 34,01 m²



  • Verbindungsgang zur Garage | 6,08 m²





Infrastruktur & Lage




  • Top-Gewerbelage in Deutschkreutz mit hervorragender Anbindung



  • Ortszentrum: ca. 500 m



  • Sopron (Ungarn): ca. 12 km



  • Autobahnauffahrt S31 / A3: wenige Fahrminuten



  • Wien: ca. 1 Autostunde entfernt



  • Gute Nahversorgung im Ort: Supermärkte, Ärzte, Apotheke, Schulen, Banken etc.





Besonderheiten




  • Videoüberwachung & Außenbeleuchtung am gesamten Areal



  • Nicht im Verdachtsflächenkataster oder Altlastenatlas geführt



  • Anpassbare Nutzungsmöglichkeiten – ideal für Bau-, Logistik-, Produktions- oder Handelsbetriebe





Zusammenfassung



  • Gesamtfläche Grundstück: 5.914 m²
  • Gesamte verbaute Nutzfläche: ca. 1.250 m²
  • Widmung: Bauland – Betriebsgebiet (BB)


Ein ideales Gewerbeobjekt für Unternehmen, die einen hochwertigen Standort mit viel Platz, guter Infrastruktur und sofortiger Nutzbarkeit suchen.




Kontakt



Für nähere Informationen, Unterlagen oder zur Vereinbarung eines Besichtigungstermins stehen wir Ihnen jederzeit gerne zur Verfügung.



Beste Grüße,



Paul Kneisz



Immobilientreuhand



Grabner Immobilien



? +43 (0)660 3 817 517



kneisz@grabner-immobilien.at


Hinweis gemäß Energieausweisvorlagegesetz: Ein Energieausweis wurde vom Eigentümer bzw. Verkäufer, nach unserer Aufklärung über die generell geltende Vorlagepflicht, sowie Aufforderung zu seiner Erstellung noch nicht vorgelegt. Daher gilt zumindest eine dem Alter und der Art des Gebäudes entsprechende Gesamtenergieeffizienz als vereinbart. Wir übernehmen keinerlei Gewähr oder Haftung für die tatsächliche Energieeffizienz der angebotenen Immobilie.

Infrastruktur / Entfernungen

Gesundheit
Arzt <500m
Apotheke <500m

Kinder & Schulen
Schule <500m
Kindergarten <1.000m

Nahversorgung
Supermarkt <500m
Bäckerei <6.000m

Sonstige
Bank <500m
Post <500m
Geldautomat <500m
Polizei <500m

Verkehr
Bus <500m
Bahnhof <500m
Autobahnanschluss <3.500m

Angaben Entfernung Luftlinie / Quelle: OpenStreetMap

Eckdaten Objektnr. 8160

Art: Halle / Lager / Produktion
Land: Österreich
Kaufpreis: 1.908.000,00
Grundstücksfl.: 5.914,00 m²
Lagerfläche: 758,43 m²
Bürofläche: 395,51 m²
Nebenkostenübersicht Kauf Immobilie merken Exposé

Immobilie anfragen


Ihre persönliche Beratung

Grabner Immobilien

Paul Kneisz

Grabner Immobilien GmbH

T +43 660 38 17 517