Exklusive Villa mit Pool, Terrassen, Wintergarten & großer Garage in Klosterneuburg-Weidling

Haus - Villa, 3400 Weidling


Idyllische Ruhelage in begehrter Wohngegend Beste Infrastruktur in der Nähe (Schulen, Einkauf, Freizeit) Sehr gute Anbindung nach Wien – ideal für Pendler und Stadtfreunde Natur vor der Tür: Donauauen, Wienerwald, Wanderwege

Beschreibung der Immobilie

Exklusive Villa mit Pool, Terrassen, Wintergarten & großer Garage in Klosterneuburg-Weidling

Repräsentatives Wohnen auf höchstem Niveau – ruhig, grün und stadtnah



Diese imposante Villa in begehrter Lage von Klosterneuburg-Weidling vereint luxuriöse Ausstattung mit großzügigem Raumangebot und naturnahem Wohnkomfort. Ein perfektes Zuhause für Familien mit Anspruch – oder repräsentatives Wohnen in stilvoller Umgebung.




? Eckdaten




  • Grundstück: ca. 1.742 m² – viel Platz & Privatsphäre



  • Wohnfläche: ca. 561 m² – auch teilbar, z. B. mit Einliegerwohnung



  • Zimmer: zahlreiche großzügige Wohn- und Schlafbereiche



  • Nutzung: ideal für Familien, Repräsentation oder Mehrgenerationenwohnen





Ausstattungs-Highlights




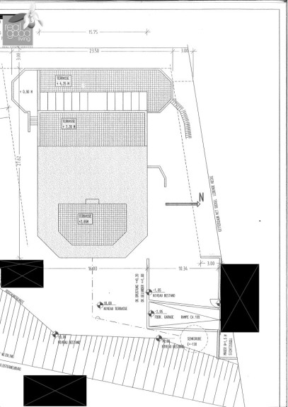
  • Mehrere Terrassen – mit Blick ins Grüne



  • Großer Swimmingpool – ideal für Entspannung & Freizeit



  • Wintergarten – ganzjährig Licht & Natur genießen



  • Sauna – privater Wellnessbereich



  • Luxuriöses Wohndesign – hochwertige Materialien, modernes Raumkonzept



  • Garage für mehrere Fahrzeuge – perfekt für Autoliebhaber oder Familien mit Bedarf ca. 100 m²



  • Garten – großzügig, ruhig, gepflegt und vielseitig nutzbar





? Lage: Klosterneuburg – Weidling




  • Idyllische Ruhelage in begehrter Wohngegend



  • Beste Infrastruktur in der Nähe (Schulen, Einkauf, Freizeit)



  • Sehr gute Anbindung nach Wien – ideal für Pendler und Stadtfreunde



  • Natur vor der Tür: Donauauen, Wienerwald, Wanderwege





? Fazit



Diese Villa bietet Raum, Stil und Komfort auf höchstem Niveau – eingebettet in eine der schönsten Lagen Niederösterreichs. Einzigartige Gelegenheit für anspruchsvolle Käufer.



Gerne übermitteln wir Ihnen weitere Informationen sowie Pläne auf Anfrage.



Kaufpreis & Konditionen



Kaufpreis: €  2.195.000,00

Provision: 3 % des Kaufpreises zzgl. 20 % USt



Besichtigung & Kontakt



Gerne präsentieren wir Ihnen dieses besondere Objekt im Rahmen eines persönlichen Besichtigungstermins.



Kontaktieren Sie:
? Herrn Bruno Franz
? +43 664 3553 790



Bitte beachten Sie, dass wir nur bei vollständiger Angabe Ihrer Kontaktdaten (inkl. Telefonnummer) weitere Informationen übermitteln können.




Immobilie verkaufen oder vermieten?



Wir begleiten Sie professionell – von der Bewertung bis zum erfolgreichen Abschluss.

Jetzt Kontakt aufnehmen – wir freuen uns auf Ihre Nachricht!




Wir weisen darauf hin, dass zwischen dem Vermittler und dem zu vermittelnden Dritten ein familiäres oder wirtschaftliches Naheverhältnis besteht.


Der Vermittler ist als Doppelmakler tätig.

Infrastruktur / Entfernungen

Gesundheit
Arzt <1.000m
Apotheke <2.000m
Klinik <5.000m
Krankenhaus <2.500m

Kinder & Schulen
Schule <1.000m
Kindergarten <1.000m
Universität <2.000m
Höhere Schule <5.000m

Nahversorgung
Supermarkt <1.000m
Bäckerei <1.500m
Einkaufszentrum <5.000m

Sonstige
Bank <1.500m
Geldautomat <1.500m
Post <2.000m
Polizei <2.000m

Verkehr
Bus <1.000m
Straßenbahn <4.000m
U-Bahn <5.500m
Bahnhof <2.000m
Autobahnanschluss <3.500m

Angaben Entfernung Luftlinie / Quelle: OpenStreetMap

Eckdaten Objektnr. 4356/288

Art: Haus - Villa
Land: Österreich
Baujahr: 1997
Zustand: Gepflegt
Alter: Neubau
Kaufpreis: 2.195.000,00
Wohnfläche: 561,00 m²
Grundstücksfl.: 1.742,00 m²
Bäder: 4
WC: 4
Terrassen: 3
Garten: 1.347,00 m²
Heizwärmebedarf:  C  84,10 kWh/m²a
fGEE:  C  1,19
Nebenkostenübersicht Kauf Immobilie merken Exposé

Ausstattung

Etagenheizung, Fußbodenheizung, Kamin, Einbauküche, Bad mit Fenster, Badewanne, Dusche, Teeküche, Wasch/Trockenraum, Alarmanlage, Sauna, Swimmingpool


Immobilie anfragen


Ihre persönliche Beratung

RealGoodLiving Real Estate Services GmbH

Bruno Franz

RealGoodLiving Real Estate Services GmbH

T +43 660 245 44 57

H +43 664 3553 790