Stilvoll wohnen. Nachhaltig leben. Ideal gelegen -Nobile Greenville

Wohnung , 4531 Kematen an der Krems


Lagebeschreibung – Leben am Golfplatz, zentral im oberösterreichischen Zentralraum Nobile Greenville entsteht in Kematen an der Krems, einer aufstrebenden Marktgemeinde zwischen Linz, Wels und Steyr. Die Lage verbindet das Beste aus zwei Welten: Ruhe, Natur und Freizeitqualität – bei gleichzeitig exzellenter Anbindung an die wichtigsten Städte der Region. Die Umgebung ist geprägt von sanften Hügeln, Wäldern und einem weitläufigen Rad- und Wanderwegenetz – ideal für aktive Erholung direkt vor der Haustür. Ein besonderes Highlight ist der nur wenige Minuten entfernte, renommierte Golfclub Kremstal: Diese 27-Loch-Meisterschaftsanlage zählt zu den schönsten Golfplätzen Oberösterreichs und steht für gehobenen Freizeitwert, Bewegung und gesellschaftliche Begegnung in traumhafter Kulisse. Ob zum entspannten After-Work-Spiel, zur sportlichen Herausforderung am Wochenende oder als Treffpunkt mit Freunden – hier beginnt exklusive Freizeitgestaltung gleich vor Ihrer Tür. Nobile Greenville ist damit nicht nur ein attraktiver Wohnstandort, sondern ein Lebensraum für Menschen, die Wert auf Stil, Lebensqualität und aktives Freizeitverhalten legen. Weitere Highlights der Lage auf einen Blick: • Supermarkt: ca. 8 Gehminuten • Tankstelle: ca. 7 Gehminuten • Zentralraum-Lage: Linz ca. 20 Min., Wels ca. 15 Min., Steyr ca. 25 Min. • Hervorragende Verkehrsanbindung (B139, A1, Bahnhof Kematen/Krems) • Natur & Bewegung: Rad- und Wanderwege ab der Haustür • Top-Infrastruktur im Ort: Nahversorger, Schulen, Apotheke u.v.m. • Exklusiv: Golfclub Kremstal in unmittelbarer Nähe • Ruhige Siedlungslage mit hoher Lebensqualität • Ideal für Familien, Berufspendler & Kapitalanleger

Beschreibung der Immobilie

Stilvoll wohnen. Nachhaltig leben. Ideal gelegen -Nobile Greenville

28 exklusive & hochwertige Eigentumswohnungen zwischen Linz, Wels & Steyr 



Mit Nobile Greenville entsteht ein modernes Wohnprojekt mit insgesamt 28 stilvollen Eigentumswohnungen, die Design, Wohnkomfort und Umweltbewusstsein perfekt vereinen. In bester Lage zwischen Wels, Linz und Steyr im Herzen von Kematen an der Krems, mit optimaler Anbindung an den oberösterreichischen Zentralraum, bietet das Projekt sowohl Eigennutzern als auch Kapitalanlegern ein hochwertiges Zuhause – oder eine zukunftssichere Investition.



Wohnen mit Stil & Qualität



Die Wohnungen bieten 2 bis 4 Zimmer mit durchdachten Grundrissen und Wohnflächen zwischen ca. 48 m² und 121 m².

Jede Einheit verfügt über großzügige Freiflächen – wie Loggien, Balkone, Terrassen oder Eigengärten – und schafft so ein offenes Wohngefühl mit direktem Bezug zur Natur.



Die Ausstattung der Wohnungen erfüllt höchste Ansprüche:



  • Fußbodenheizung mittels effizienter Fernwärme
  • Photovoltaikanlage zur umweltschonenden Energiegewinnung
  • Elektrische Außenbeschattung für sommerlichen Wärmeschutz
  • Edler Echtholzparkett in den Wohnräumen
  • Großformatige Feinsteinzeugfliesen in Bad & WC
  • Moderne Badausstattung u.a. mit Keramik von Villeroy & Boch 
  • Schiebetüren zu Terrassen & Gärten für ein offenes Raumgefühl




Mehrwert für Gesundheit & Freitzeit



Umgeben von Natur bietet Nobile Greenville ideale Bedingungen für Freizeit & Erholung: Wandern, Radfahren, Spazierengehen – direkt vor der Haustür.



Um auch bei Schlechtwetter fit und aktiv zu bleiben, steht allen Bewohnern ein hauseigener Fitnessraum exklusiv zur Verfügung.





Nachhaltig & zukunftsfit



Das gesamte Projekt wird nach modernsten ökologischen Standards errichtet:



  • Photovoltaikanlage
  • Niedrigenergiebauweise
  • E-Mobilität: Tiefgaragen- und Freistellplätze mit E-Lade-Vorbereitung
  • Geringe Betriebskosten durch energieeffiziente Technik




Auch für Investoren erhältlich – zum attraktiven Anlegerpreis mit Steuervorteilen und Frühkäuferbonus.


Wir weisen darauf hin, dass zwischen dem Vermittler und dem zu vermittelnden Dritten ein familiäres oder wirtschaftliches Naheverhältnis besteht.


Der Vermittler ist als Doppelmakler tätig.

Infrastruktur / Entfernungen

Gesundheit
Arzt <1.000m
Apotheke <4.500m
Klinik <5.000m

Kinder & Schulen
Schule <500m
Kindergarten <500m

Nahversorgung
Supermarkt <500m
Bäckerei <500m

Sonstige
Bank <500m
Geldautomat <500m
Post <4.500m
Polizei <4.500m

Verkehr
Bus <500m
Autobahnanschluss <6.000m
Bahnhof <1.500m
Flughafen <10.000m

Angaben Entfernung Luftlinie / Quelle: OpenStreetMap

Eckdaten Objektnr. 1793/70

Art: Wohnung
Land: Österreich
Baujahr: 2026
Zustand: Erstbezug
Alter: Neubau
Kaufpreis: 219.000,00
Kaufpreis / m²: 3.675,11 €
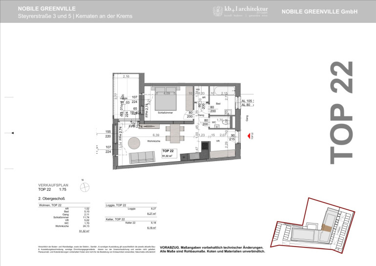
Wohnfläche: 51,30 m²
Nutzfläche: 59,59 m²
Zimmer: 2
Keller: 6,18 m²
Heizwärmebedarf:  B  30,20 kWh/m²a
fGEE:  A+  0,66
Nebenkostenübersicht Kauf Immobilie merken Exposé

Ausstattung

Dielenboden, Fliesen, Solarenergie, Fußbodenheizung, Personenaufzug, Carport, Garage


Immobilie anfragen


Ihre persönliche Beratung

BSc Sara Hufnagl

OVB Allfinanzvermittlungs GmbH

T +43 650 3069982