Investieren nahe dem Golfplatz – 2-Zimmer-Anlegerwohnung im 3. OG mit Lift!

Wohnung , 4531 Kematen an der Krems


Nobile Greenville entsteht in Kematen an der Krems – im Herzen des oberösterreichischen Zentralraums, perfekt angebunden an Linz, Wels und Steyr. Die ruhige Wohnlage kombiniert Natur & Erholung mit exzellenter Infrastruktur – und das nur wenige Minuten vom renommierten Golfclub Kremstal entfernt. Das Projekt ist damit nicht nur ein attraktiver Wohnstandort, sondern ein Lebensraum für Menschen, die Wert auf Stil, Lebensqualität und aktives Freizeitverhalten legen.   Weitere Highlights der Lage auf einen Blick: • 27-Loch-Golfplatz in unmittelbarer Nähe • Starke Lage: 20 Min. nach Linz, 15 Min. nach Wels • Bahnhof, A1 & B139 schnell erreichbar • Beliebte Wohnlage mit hoher Lebensqualität • Nahversorgung, Schulen, Apotheke im Ort • Rad- & Wanderwege direkt vor der Tür

Beschreibung der Immobilie

Investieren nahe dem Golfplatz – 2-Zimmer-Anlegerwohnung im 3. OG mit Lift!

Kapitalanlage mit Perspektive – 28 hochwertige Anlegerwohnungen in Top-Lage zwischen Linz, Wels & Steyr



Jetzt noch exklusive Anlegerangebote für 5 Wohnungen verfügbar!
Für kurze Zeit bieten wir bei ausgewählten Einheiten attraktive Sonderkonditionen – ideal für Kapitalanleger, die gezielt in nachhaltige Immobilienwerte investieren möchten. Mit Nobile Greenville entsteht ein modernes Wohnprojekt in Kematen an der Krems, einer aufstrebenden Gemeinde im oberösterreichischen Zentralraum. Die 28 exklusiven Eigentumswohnungen verbinden stilvolle Architektur mit energieeffizienter Bauweise – und bieten somit eine attraktive Gelegenheit für Anleger, die auf nachhaltige Immobilienwerte mit Entwicklungspotenzial setzen.



Investieren in Qualität & Lage



Das Projekt punktet durch seine strategische Lage zwischen den Städten Linz, Wels und Steyr – Regionen mit stabiler Bevölkerungsentwicklung, hoher Lebensqualität und kontinuierlicher Nachfrage nach Mietwohnungen.



Die 2- bis 4-Zimmer-Wohnungen bieten Wohnflächen zwischen ca. 48 m² und 121 m² und überzeugen durch:



  • durchdachte Grundrisse mit hoher Vermietbarkeit
  • großzügige Freiflächen (Loggien, Balkone, Terrassen, Eigengärten)
  • hochwertige Ausstattungsdetails, u.a.:
    • Fußbodenheizung mittels Fernwärme
    • Photovoltaikanlage
    • E-Ladestationen
    • Elektrische Außenbeschattung
    • Echtholzparkett & großformatige Feinsteinzeugfliesen
    • Sanitärausstattung u.a. von Villeroy & Boch
    • und vieles mehr



Neben den modernen Wohnstandards bietet das Projekt zahlreiche Zusatznutzen, die für zukünftige Mieter besonders attraktiv sind:



  • hauseigener Fitnessraum zur kostenlosen Nutzung
  • naturnahe Umgebung mit Rad- und Wanderwegen
  • renommierter 27-Loch-Golfplatz in unmittelbarer Nähe
  • hervorragende Verkehrsanbindung in alle Richtungen


Zukunftssichere Bauweise – nachhaltiger Investmentfaktor



  • Energieeffiziente Niedrigenergiebauweise
  • Geringe Betriebskosten durch moderne Haustechnik
  • E-Mobilität: TG- & Freiplätze mit E-Lade-Vorbereitung
  • Ökologisch orientiertes Gesamtkonzept


Jetzt informieren & die letzten Anlegerangebote sichern!


Wir weisen darauf hin, dass zwischen dem Vermittler und dem zu vermittelnden Dritten ein familiäres oder wirtschaftliches Naheverhältnis besteht.


Der Vermittler ist als Doppelmakler tätig.

Infrastruktur / Entfernungen

Gesundheit
Arzt <1.000m
Apotheke <4.500m
Klinik <5.000m

Kinder & Schulen
Schule <500m
Kindergarten <500m

Nahversorgung
Supermarkt <500m
Bäckerei <500m

Sonstige
Bank <500m
Geldautomat <500m
Post <4.500m
Polizei <4.500m

Verkehr
Bus <500m
Autobahnanschluss <6.000m
Bahnhof <1.500m
Flughafen <10.000m

Angaben Entfernung Luftlinie / Quelle: OpenStreetMap

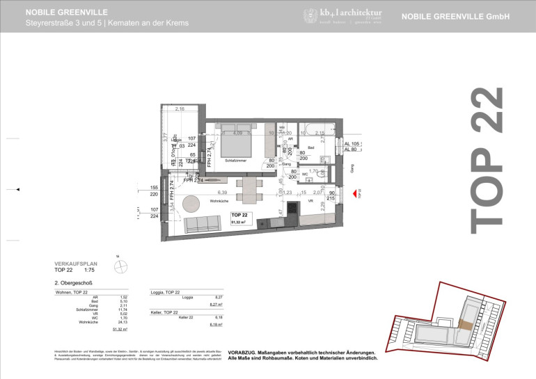
Eckdaten Objektnr. 1793/158

Art: Wohnung
Land: Österreich
Baujahr: 2026
Zustand: Erstbezug
Alter: Neubau
Kaufpreis: 219.000,00
Kaufpreis / m²: 3.675,11 €
Wohnfläche: 51,30 m²
Nutzfläche: 59,59 m²
Zimmer: 2
Keller: 6,18 m²
Heizwärmebedarf:  B  30,20 kWh/m²a
fGEE:  A+  0,66
Nebenkostenübersicht Kauf Immobilie merken Exposé

Ausstattung

Parkett, Dielenboden, Estrichboden, Fliesen, Parkettboden, Personenaufzug, Badewanne, Kabel/Satelliten-TV, Parkplatz, Tiefgarage, Carport, Sporteinrichtungen, Wasch/Trockenraum


Immobilie anfragen


Ihre persönliche Beratung

BSc Sara Hufnagl

OVB Allfinanzvermittlungs GmbH

T +43 650 3069982