Attraktive Praxis oder Bürofläche in Gänserndorf - Ihr neuer Standort - PROVISIONSFREI!

Büro / Praxis , 2230 Gänserndorf , Hans-Kudlich-Gasse


Diese attraktive Büro- oder Praxisfläche in der Hans-Kudlich-Gasse 2230 Gänserndorf bietet eine erstklassige Lage in der Nähe der Hauptstraße. Die Umgebung ist bestens erschlossen und stellt eine hervorragende Infrastruktur bereit. Optimale Anbindung an Bus und Bahnhof sorgt für eine bequeme Erreichbarkeit.

Beschreibung der Immobilie

Attraktive Praxis oder Bürofläche in Gänserndorf - Ihr neuer Standort - PROVISIONSFREI!

Willkommen in einer einmaligen Gelegenheit in 2230 Gänserndorf, Niederösterreich! Diese Praxisfläche bietet Ihnen nicht nur eine erstklassige Lage, sondern auch eine Vielzahl von Annehmlichkeiten, die Ihre beruflichen Träume Wirklichkeit werden lassen.



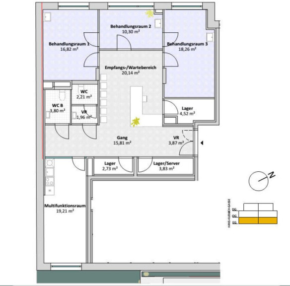
Mit einer großzügigen Fläche von 123,46 m² aufgeteilt in fünf helle und freundliche Zimmer, bietet diese Immobilie ausreichend Platz für Ihre individuellen Bedürfnisse. Ob Sie eine Arztpraxis, Therapiepraxis oder Bürofläche planen - hier finden Sie den idealen Raum, um Ihre Visionen zu verwirklichen.



Die zwei separaten WCs, einschließlich eines praktischen Gäste-WCs, sorgen für zusätzlichen Komfort sowohl für Sie als auch für Ihre Kunden oder Patienten. Die Ausstattung ist modern und funktional: Sie profitieren von einer effizienten Fernwärmeheizung sowie einer Glasfaseranbindung, die Ihnen schnelles Internet garantiert – ein wichtiger Faktor für jedes moderne Unternehmen.



Die Lage dieser Immobilie ist einfach unschlagbar. Sie finden sich in einer lebendigen Umgebung, die reich an Dienstleistungen ist. Zudem sind Supermärkte und Bäckereien nur einen kurzen Fußweg entfernt, was den Alltag für Sie und Ihre Mitarbeiter angenehm gestaltet.



Die Verkehrsanbindung ist optimal: Mit öffentlichen Verkehrsmitteln wie Bus und Bahnhof sind Sie bestens vernetzt. Das bedeutet nicht nur eine einfache Erreichbarkeit für Ihre Klienten, sondern auch für Sie selbst.



Auf Wunsch kann ein Garagenplatz für € 15.000,- für Ihr Fahrzeug erworben werden, der zusätzlichen Komfort bietet.



Nutzen Sie diese Chance, um Ihr Unternehmen oder Ihre Praxis an einem Standort zu etablieren, der sowohl modern als auch gut erreichbar ist.



Lassen Sie sich diese Gelegenheit nicht entgehen! Vereinbaren Sie noch heute einen Besichtigungstermin und überzeugen Sie sich selbst von den zahlreichen Vorteilen, die diese Immobilie zu bieten hat. Ihr neues Büro oder Ihre neue Praxis wartet auf Sie!


Hinweis gemäß Energieausweisvorlagegesetz: Ein Energieausweis wurde vom Eigentümer bzw. Verkäufer, nach unserer Aufklärung über die generell geltende Vorlagepflicht, sowie Aufforderung zu seiner Erstellung noch nicht vorgelegt. Daher gilt zumindest eine dem Alter und der Art des Gebäudes entsprechende Gesamtenergieeffizienz als vereinbart. Wir übernehmen keinerlei Gewähr oder Haftung für die tatsächliche Energieeffizienz der angebotenen Immobilie.

Infrastruktur / Entfernungen

Gesundheit
Arzt <250m
Apotheke <250m
Klinik <1.000m

Kinder & Schulen
Kindergarten <500m
Schule <500m

Nahversorgung
Supermarkt <250m
Bäckerei <250m

Sonstige
Geldautomat <250m
Bank <250m
Post <250m
Polizei <750m

Verkehr
Bus <250m
Bahnhof <1.000m

Angaben Entfernung Luftlinie / Quelle: OpenStreetMap

Eckdaten Objektnr. 6211/238

Art: Büro / Praxis
Land: Österreich
Baujahr: 2025
Alter: Neubau
Kaufpreis: 599.000,00
Nutzfläche: 123,46 m²
Zimmer: 5
WC: 2
Nebenkostenübersicht Kauf Immobilie merken Exposé

Ausstattung

Fernwärme, Personenaufzug, Kabel/Satelliten-TV, Garage


Immobilie anfragen


Ihre persönliche Beratung

JuNi Immobilien GmbH

Julia Kolarik

JuNi Immobilien GmbH

T 06607370504

H +43 660 737 05 04