Bürofläche/Ordination bei der Wiener Staatsoper

Büro / Praxis , 1010 Wien


Beschreibung der Immobilie

Bürofläche/Ordination bei der Wiener Staatsoper

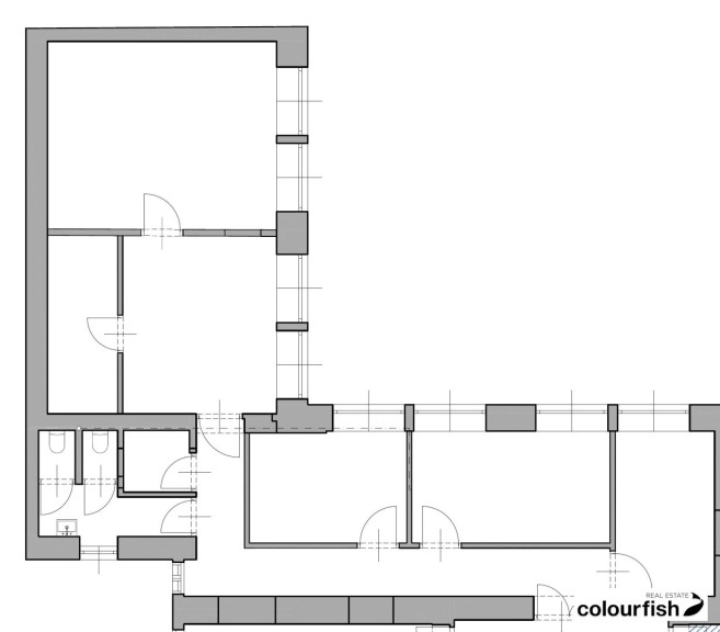
In einer der prominentesten Wiener Lagen, direkt an der Wiener Staatsoper, werden im Zuge einer umfangreichen Generalsanierung eines klassischen Wiener Altbaus eine hochwertige Bürofläche von ca. 112 m² zur Miete verfügbar. Die Einheit wurde zuletzt als Ordination genutzt. Der aktuelle Grundriss gliedert sich in fünf separate Büroräume, alle Räume blicken in den Innenhof, zwei Räume sind mit einem Handwaschbecken ausgestattet.



Die unmittelbare Nähe zur Kärntnerstraße bietet eine perfekte Infrastruktur und Nahversorgung, sowie zahlreiche namhafte Restaurants und Cafés in fußläufiger Reichweite. Trotz bester Stadtlage bietet der nahegelegene Burggarten ebenso die Möglichkeit einer entspannten Mittagspause im Grünen.



Das Gebäude liegt direkt an einem der wichtigsten ÖPNV-Knotenpunkte Wiens (Karlsplatz) und kann somit eine der besten Anbindung an den öffentlichen Verkehr bieten. Zusätzlich sorgen nahegelegene öffentliche Garagen in Kombination mit der Lage an der Wiener Ringstraße für eine ausgezeichnete Erreichbarkeit mittels PKW.



Verfügbare Fläche/Konditionen:
1. OG/ Top 4: ca. 112 m² - € 24,00m²/Monat erweiterbar auf ca. 278 m²

Betriebskosten: netto € 2,52/m²/Monat



Alle Preise verstehen sich zzgl. USt.



Ausstattung:



  • Lift
  • Fischgrätparkettboden
  • Großzügige Raumhöhen
  • teilweise Kühlung über Deckensplitgeräte
  • Fernwärme
  • Abstellraum


Öffentliche Verkehrsanbindung:



U-Bahn: U1, U2, U4 Karlsplatz

Straßenbahn: 1, 2, 62, 71, D, WLB

Bus: 2A, 59A, 360


Hinweis gemäß Energieausweisvorlagegesetz: Ein Energieausweis wurde vom Eigentümer bzw. Verkäufer, nach unserer Aufklärung über die generell geltende Vorlagepflicht, sowie Aufforderung zu seiner Erstellung noch nicht vorgelegt. Daher gilt zumindest eine dem Alter und der Art des Gebäudes entsprechende Gesamtenergieeffizienz als vereinbart. Wir übernehmen keinerlei Gewähr oder Haftung für die tatsächliche Energieeffizienz der angebotenen Immobilie.


Wir weisen darauf hin, dass zwischen dem Vermittler und dem zu vermittelnden Dritten ein familiäres oder wirtschaftliches Naheverhältnis besteht.


Der Vermittler ist als Doppelmakler tätig.

Infrastruktur / Entfernungen

Gesundheit
Arzt <500m
Apotheke <500m
Klinik <1.000m
Krankenhaus <1.500m

Kinder & Schulen
Schule <500m
Kindergarten <500m
Universität <500m
Höhere Schule <500m

Nahversorgung
Supermarkt <500m
Bäckerei <500m
Einkaufszentrum <500m

Sonstige
Geldautomat <500m
Bank <500m
Post <500m
Polizei <500m

Verkehr
Bus <500m
U-Bahn <500m
Straßenbahn <500m
Bahnhof <500m
Autobahnanschluss <3.500m

Angaben Entfernung Luftlinie / Quelle: OpenStreetMap

Eckdaten Objektnr. 7265

Art: Büro / Praxis
Land: Österreich
Kaltmiete (netto): 2.694,72 €
Kaltmiete: 2.977,70 €
Miete / m²: 24,00 €
Betriebskosten: 282,98 €
MwSt Gesamt: 595,54 €
Nutzfläche: 112,28 m²
Nebenkostenübersicht Miete Immobilie merken Exposé

Immobilie anfragen


Ihre persönliche Beratung

Colourfish Real Estate Immobilienmakler GmbH

Florian Rainer

Colourfish Real Estate Immobilienmakler GmbH

T +43 664 930 40 909

H +43 664 930 40 909