Top-Neubauprojekt: Modern wohnen in zentrumsnaher Grünlage - schlüsselfertig

Haus - Reihenhaus, 8572 Bärnbach


Siedlungslage, Grünlage, Zentrumsnähe, öffentliche Verkehrsmittel, Waldnähe, schlüsselfertig

Beschreibung der Immobilie

Top-Neubauprojekt: Modern wohnen in zentrumsnaher Grünlage - schlüsselfertig

Ihr neues Zuhause befindet sich in schöner Stadtrandlage mit kurzen Wegen in den Stadtkern von Bärnbach.



In diesem Neubauprojekt aus dem Jahr 2021 sind nur mehr wenige Einheiten frei - sichern Sie sich möglichst bald Ihr Reihenhaus und starten Sie mit Ihrer Familie in eine unbeschwerte Zukunft in der Wohnstadt Bärnbach.



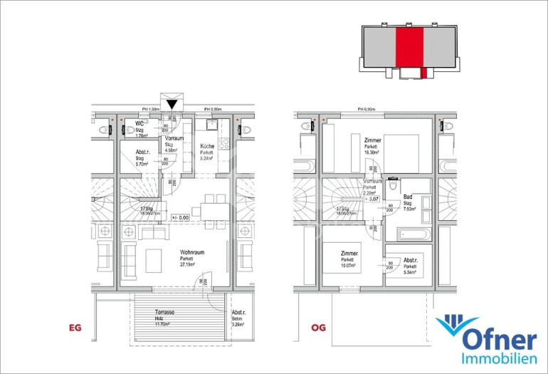
Auf einer Wohnfläche von ca. 86 m² über zwei Etagen bietet das Reihenhaus im Erdgeschoß einen Vorraum, den offenen Wohn-Essraum mit Zugang auf die Terrasse (11,70 m²), die Küche, einen Abstellraum und ein WC, sowie im Obergeschoß zwei Schlafzimmer, davon eines mit Schrankraum, und ein Badezimmer. Die Räume sind hell und freundlich und zeitgemäß angeordnet. Geheizt wird mittels Fernwärme über eine Fußbodenheizung in allen Räumen. Die Leerverrohrung zur Installation einer Klimaanlage ist bereits verlegt. Ein Abstellraum neben dem Eingang steht als zusätzliche Lagerfläche zur Verfügung. Die Gartenfläche beträgt ca. 50 m². Parkplätze im Carport mit Vorbereitung zur E-Ladestation können bei Bedarf dazugekauft werden.



Sie kaufen dieses Reihenhaus provisionsfrei in schlüsselfertigem Zustand. Die verwendeten Materialien und Ausstattungsdetails sind von hochwertiger Qualität. 



Für eine Familie, die sich eine Zukunft in einer perfekten Wohnstadt wünscht, ist diese Wohnanlage die ideale Wahl. Von der Kinderkrippe über den Kindergarten, die Volks- und Mittelschule, Musikschule, Ärzte, Apotheke, Dienstleister, Nahversorger, Gastronomie, Vereine und Veranstaltungen - das alles bietet Bärnbach das ganze Jahr hindurch. Dabei ist es ein beliebtes Ausflugsziel für Besucher der Hundertwasser-Kirche oder des Freibades, das Lipizzanergestüt Piber befindet sich nur wenige Minuten entfernt. Gut ausgebaute Spazier-, Wander- und Radwegenetze erfreut Sportler ebenso wie die Sporthalle, die Kletterwand, das Fitnessstudio, die Stocksportanlage oder die Tennisanlage. 



Der Bahnhof mit Anbindung in die Landeshauptstadt Graz ist nur ca. 2,4 km entfernt, nach Graz sind es ca. 35 Autominuten. Hier finden Sie verschiedene Universitäten und zahlreiche kulturelle Angebote, ebenso einen internationalen Flughafen.



Ihr Neustart in die Zukunft beginnt mit einer unverbindlichen und kostenlosen Besichtigung - Sie werden begeistert sein!



Walter Ofner, Tel. +43 664 188 39 29



Frank Klöckl, Tel. +43 664 146 19 05



office@ofner-immobilien.at, Büro Tel. 03142 / 22892 



Unsere Bürozeiten sind Montag bis Donnerstag von 8.00 bis 12.00 und von 13.00 bis 17.00 Uhr sowie Freitag von 8.00 bis 12.00 Uhr.



Besuchen Sie auch unsere Homepage www.ofner-immobilien.at





Ofner Immobilien - Von der Alm bis ans Meer

Noch nichts gefunden? Wir informieren Sie über geeignete Immobilienangebote noch vor allen anderen.
Legen Sie jetzt Ihren individuellen Suchagenten unter folgendem Link an. Wir schicken Ihnen passende Immobilien exklusiv vorab zu.

Suchagent anlegen - https://ofner-immobilien.service.immo/registrieren/de


Der Vermittler ist als Doppelmakler tätig.

Infrastruktur / Entfernungen

Gesundheit
Arzt <500m
Apotheke <500m
Klinik <2.000m
Krankenhaus <2.500m

Kinder & Schulen
Schule <500m
Kindergarten <500m

Nahversorgung
Supermarkt <500m
Bäckerei <1.000m
Einkaufszentrum <2.000m

Sonstige
Geldautomat <500m
Bank <500m
Post <1.000m
Polizei <3.000m

Verkehr
Bus <500m
Bahnhof <2.000m

Angaben Entfernung Luftlinie / Quelle: OpenStreetMap

Eckdaten Objektnr. 1819

Art: Haus - Reihenhaus
Land: Österreich
Baujahr: 2021
Zustand: Erstbezug
Alter: Neubau
Kaufpreis: 360.000,00
Wohnfläche: 85,70 m²
Zimmer: 3
Bäder: 1
WC: 2
Terrassen: 1
Garten: 49,55 m²
Heizwärmebedarf:  B  26,50 kWh/m²a
fGEE:  A+  0,61
Nebenkostenübersicht Kauf Immobilie merken Exposé

Ausstattung

Fußbodenheizung, Zentralheizung


Immobilie anfragen


Ihre persönliche Beratung

Ofner Immobilien GmbH

Walter Ofner

Ofner Immobilien

T +43 3142 22892 - 10

H +43 664 1883929