Flexible Retailfläche im Central Hub

Einzelhandel , 1210 Wien


Beschreibung der Immobilie

Flexible Retailfläche im Central Hub

Diese flexibel nutzbare Retailflächen im TwentyOne sind von der Straße aus begehbar und sind für den Einzelhandel aber auch für Ärzte, Fitness oder ähnliches nutzbar. Die Sichtbarkeit und Belichtung ist durch große Glasfronten gegeben.



Eine Zusammenlegung der Fläche ab ca. 597 m² ist  möglich. Gastronutzung ist nicht gewünscht.



Das TwentyOne besteht insgesamt aus sechs sogenannten „Hubs“, welche gesamthaft als Ökosystem wirken. Das Büro- und Laborgebäude mit ca. 14.000 m² Büronutzfläche punktet mit einem attraktiven Billa Plus im Erdgeschoss mit 2.500 m² Verkaufsfläche. Durch flexible Raumkonzepte, innovative Technik, bedarfsorientierte Infrastruktur sowie weitere moderne Angebote wird aus einem Office-Park ein lebendiges Business-Quartier.



Der Central Hub ist ab sofort bezugsfertig und bietet auf ca. 26.000 m² Büro-/Labor- und Co-Working Space, ca. 2.000 m² jeweils für Veranstaltungs- & Konferenzräume und für Gewerbe & Last Minute Logistik sowie ca. 2.200 m² für Retail & Gastronomie beherbergen.



verfügbare Fläche/Konditionen:
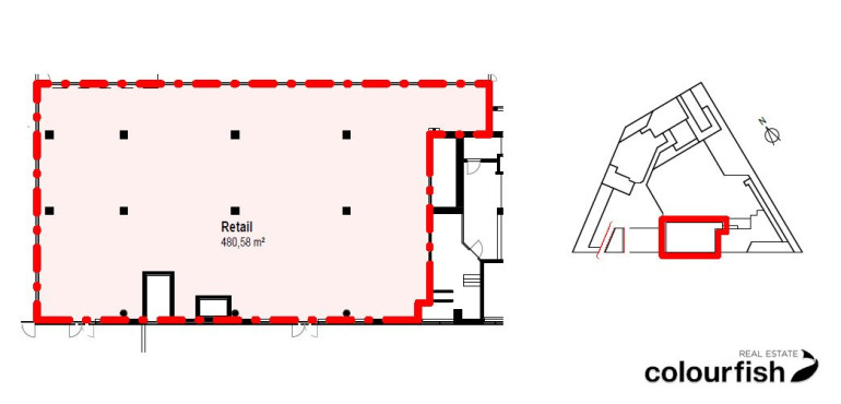
EG: ca.  480,58 m² 

Mietpreis: netto ab € 16,00/m²/Monat

Betriebskosten: netto € 4,88 zzgl. Heizung und Kühlung



Weitere verfügbare Flächen/Konditionen: 

EG: ca. 116,44 m²

Mietpreis: netto ab € 16,00/m²/Monat

Betriebskosten: netto € 4,88 zzgl. Heizung und Kühlung



Alle Preise zzgl. 20% USt.



Öffentliche Verkehrsanbindung:
S-Bahn: S1, S2 und S7, REX, Regionalzüge

Autobus: 30A und 31A (im 4 Minuten Takt)

U1 Station Leopoldau eine S-Bahn-Station entfernt

U6 Station Floridsdorf eine S-Bahn-Station entfernt

direkte Verbindung zum Flughafen Wien–Schwechat



Individualverkehr:
A22 Donauuferautobahn (1,5 km)

Knoten Floridsdorf (1,8 km)

Nordbrücke (2,8 km)

Auffahrt zur S2 (4 km)


Hinweis gemäß Energieausweisvorlagegesetz: Ein Energieausweis wurde vom Eigentümer bzw. Verkäufer, nach unserer Aufklärung über die generell geltende Vorlagepflicht, sowie Aufforderung zu seiner Erstellung noch nicht vorgelegt. Daher gilt zumindest eine dem Alter und der Art des Gebäudes entsprechende Gesamtenergieeffizienz als vereinbart. Wir übernehmen keinerlei Gewähr oder Haftung für die tatsächliche Energieeffizienz der angebotenen Immobilie.


Wir weisen darauf hin, dass zwischen dem Vermittler und dem zu vermittelnden Dritten ein familiäres oder wirtschaftliches Naheverhältnis besteht.

Infrastruktur / Entfernungen

Gesundheit
Arzt <1.500m
Apotheke <1.000m
Klinik <1.500m
Krankenhaus <1.500m

Kinder & Schulen
Schule <1.000m
Kindergarten <500m
Universität <2.000m
Höhere Schule <3.000m

Nahversorgung
Supermarkt <500m
Bäckerei <1.000m
Einkaufszentrum <2.000m

Sonstige
Geldautomat <1.500m
Bank <1.500m
Post <1.500m
Polizei <1.500m

Verkehr
Bus <500m
U-Bahn <2.000m
Straßenbahn <1.500m
Bahnhof <500m
Autobahnanschluss <2.000m

Angaben Entfernung Luftlinie / Quelle: OpenStreetMap

Eckdaten Objektnr. 7222

Art: Einzelhandel
Land: Österreich
Zustand: Erstbezug
Alter: Neubau
Kaltmiete (netto): 7.689,28 €
Kaltmiete: 10.034,51 €
Miete / m²: 16,00 €
Betriebskosten: 2.345,23 €
MwSt Gesamt: 2.006,91 €
Nutzfläche: 480,58 m²
Nebenkostenübersicht Miete Immobilie merken Exposé

Immobilie anfragen


Ihre persönliche Beratung

Colourfish Real Estate Immobilienmakler GmbH

Sophie Schmück

Colourfish Real Estate Immobilienmakler GmbH

T +43 1 535 1111

H +43 664 356 46 56