Frequenzlage bei U4-U6-Längenfeldgasse - Ideal für Ihr Geschäft

Einzelhandel , 1120 Wien , Arndtstraße


Gleich um die Ecke befindet sich die Station Längenfeldgasse, bei der sich die U-Bahnlinien U4, U6 und die Buslinie 12A kreuzen. Fußläufig erreichbar sind auch die Linie 62, die Badner Bahn sowie einige weitere innerstädtische Buslinien. Zum Bahnhof Meidling gelangen Sie nach einem kurzen Fußweg von 15 Minuten.

Beschreibung der Immobilie

Frequenzlage bei U4-U6-Längenfeldgasse - Ideal für Ihr Geschäft

Branchenfreies Lokal, das in einem neu errichtetem Wohnhaus und einer Frequenzlage auf seine Bestimmung wartet.



Ob ein Fitness-, Yoga- oder Kosmetikstudio, Physiotherapie, Friseur, Boutique oder ein Reisebüro - wir haben für alle Platz.



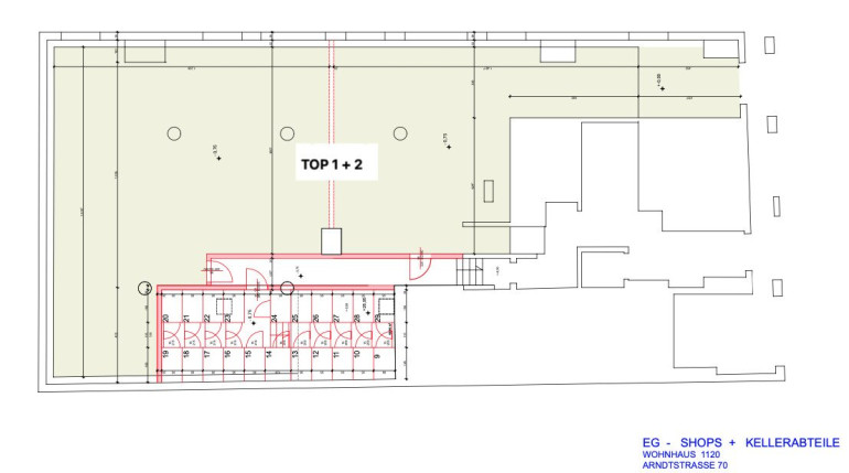
Die Gesamtfläche dieses ein wenig unter dem Staßenniveau positioniertem Geschäftslokal beträgt ca. 256 m2. Der Haupteingang befindet sich ebenerdig auf der Arndtstraße.



Hohe Räume, große Fensterflächen, Laufkundschaft.



Sehr hell, gut teilbar, mehrere Sanitärräume möglich.





Beläge werden rasch nach Mieterwunsch verlegt, Sanitärräume errichtet, DAN-Küchenzeile nach Maß zur Verfügung gestellt.





Heizung: Fernwärme (Fußbodenheizung)



Strom: Wien Energie und Photovoltaikanlage im Haus



Internetanbieter: Magenta





Miete: € 2.842,71



USt: € 568,54



Kaution: € 10.300,00



Vertragsvergebührung: 1% der Jahresmiete gerechnet auf die Zeit des Vertrages



Vertragserichtungskosten: € 200



Tiefgarage: 1 Stellplatz für € 120 anmietbar



Fahrradraum: vorhanden





Bei weiteren Fragen und Besichtigungswünschen stehe ich Ihnen gerne zur Verfügung.

Noch nichts gefunden? Wir informieren Sie über geeignete Immobilienangebote noch vor allen anderen.
Legen Sie jetzt Ihren individuellen Suchagenten unter folgendem Link an. Wir schicken Ihnen passende Immobilien exklusiv vorab zu.

Suchagent anlegen - https://pr-immobilien-real-estate.service.immo/registrieren/de


Wir weisen darauf hin, dass zwischen dem Vermittler und dem zu vermittelnden Dritten ein familiäres oder wirtschaftliches Naheverhältnis besteht.


Der Vermittler ist als Doppelmakler tätig.

Infrastruktur / Entfernungen

Gesundheit
Arzt <250m
Apotheke <250m
Klinik <500m
Krankenhaus <1.500m

Kinder & Schulen
Schule <250m
Kindergarten <500m
Universität <250m
Höhere Schule <750m

Nahversorgung
Supermarkt <250m
Bäckerei <250m
Einkaufszentrum <500m

Sonstige
Geldautomat <500m
Bank <500m
Post <500m
Polizei <500m

Verkehr
Bus <250m
U-Bahn <250m
Straßenbahn <500m
Bahnhof <250m
Autobahnanschluss <3.000m

Angaben Entfernung Luftlinie / Quelle: OpenStreetMap

Eckdaten Objektnr. 3696

Art: Einzelhandel
Land: Österreich
Baujahr: 2024
Zustand: Rohbau
Alter: Neubau
Kaltmiete (netto): 2.130,00 €
Kaltmiete: 2.842,71 €
Miete / m²: 8,32 €
Betriebskosten: 712,71 €
MwSt Gesamt: 568,54 €
Nutzfläche: 256,15 m²
Heizwärmebedarf:  B  31,00 kWh/m²a
fGEE:  A  0,73
Nebenkostenübersicht Miete Immobilie merken Exposé

Ausstattung

Fernwärme


Immobilie anfragen


Ihre persönliche Beratung

PR-IMMOBILIEN / REAL ESTATE

Mag. Svetlana Papadopoulos Piskorová

PR-IMMOBILIEN - REAL ESTATE Paunovic Radisa (Inh. & GF)

T +436509243069

H 06509243069