Charmante Doppelhaushälfte in idyllischer Lage – Modernes Wohnen in Münchendorf bei Wien

Haus , 2482 Münchendorf , Unter Bregarten


Lage & Umgebung: Münchendorf punktet mit kurzen Wegen: Spar, Billa, gemütliche Heurige, Kindergarten und Grundschule sind direkt im Ort zu finden. Sportbegeisterte freuen sich über Tennisplätze, während Pendler die S60-Anbindung (18 Min. nach Wien-Meidling) sowie Bushaltestellen schätzen. Verkehrsanbindung: Bahnhof (S60) in naher Umgebung – schnelle Verbindung nach Wien Busse in verschiedene Richtungen

Beschreibung der Immobilie

Charmante Doppelhaushälfte in idyllischer Lage – Modernes Wohnen in Münchendorf bei Wien

Willkommen in diesem gepflegten Zuhause, das Komfort und ländliche Ruhe perfekt vereint! Die Doppelhaushälfte in Münchendorf, vor den Toren Wiens, besticht mit ca. 88 m² Wohn- und ca. 130 m² Wohnnutzfläche, einem ca.220 m² Grundstück und einer durchdachten Aufteilung, die Raum für Familie, Hobby und Entspannung bietet.



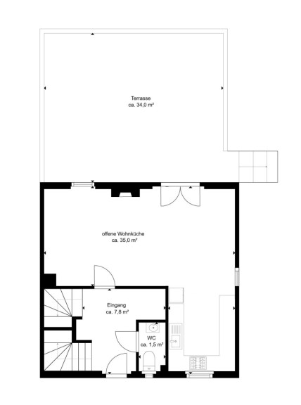
Grundriss & Ausstattung:



Im Erdgeschoss erwartet Sie eine helle, offene Wohnküche mit direktem Zugang zur großzügigen, teilüberdachten Terrasse (ca.34 m² - Südausrichtung) – ideal für gesellige Abende oder entspannte Morgenstunden. Ein praktischer Vorraum mit Garderobe und ein separiertes Gäste-WC (mit Fenster und Waschbecken) runden das ebenerdige Wohnkonzept ab.



Das Obergeschoss beherbergt drei freundliche Schlafzimmer sowie ein modernes Bad mit Badewanne, WC, Fenster und wohliger Fußbodenheizung – perfekt für einen erholsamen Start in den Tag.



Der Keller (aus Dichtbeton) bietet vielfältige Nutzungsmöglichkeiten: Zwei Technik-/Lagerräume und ein 19 m² Hobbyraum mit Fußbodenheizung laden zum Werkeln, Gestalten oder als Fitnessbereich ein.



Besondere Highlights:



- Getrennt begehbare Schlafzimmer

- Offene Wohnküche

- Gaszentralheizung für effiziente Wärme

- Sonnige Terrasse mit Überdachung und Zugang zum Garten

- Gepflegter Garten mit Gewächshaus, Gartenhaus und seitlichem Zugang zum Fußweg entlang der Triesting – ideal für Naturliebhaber

- Helle Räume durch fensterreiche Gestaltung

- 2 PKW Stellplätze



Dieses Haus bietet mehr als Wohnraum – es ist ein Ort zum Wohlfühlen!



Ob als Familienidyll, Investition oder Rückzugsort mit Freiraum für kreative Projekte: Hier finden Sie Raum für Ihre Träume.



Hier geht es zum 3D-Rundgang: https://my.matterport.com/show/?m=4f5YgY8QKDj

Hier geht es zum Video: https://youtu.be/dSC3vgqI5Gc



Lassen Sie sich von diesem besonderen Zuhause überzeugen – vereinbaren Sie jetzt Ihre Besichtigung!


Der Vermittler ist als Doppelmakler tätig.

Infrastruktur / Entfernungen

Gesundheit
Arzt <250m
Apotheke <4.500m
Klinik <5.500m
Krankenhaus <9.250m

Kinder & Schulen
Kindergarten <750m
Schule <1.000m
Höhere Schule <8.250m

Nahversorgung
Supermarkt <500m
Bäckerei <500m
Einkaufszentrum <6.750m

Sonstige
Bank <500m
Geldautomat <4.750m
Post <1.000m
Polizei <4.500m

Verkehr
Bus <250m
Bahnhof <250m
Autobahnanschluss <2.500m
Straßenbahn <5.750m

Angaben Entfernung Luftlinie / Quelle: OpenStreetMap

Eckdaten Objektnr. 504

Art: Haus
Land: Österreich
Baujahr: 2007
Kaufpreis: 449.000,00
Betriebskosten: 98,45 €
Heizkosten: 113,00 €
Sonstige Kosten: 76,67 €
Wohnfläche: 88,00 m²
Nutzfläche: 129,76 m²
Grundstücksfl.: 220,00 m²
Zimmer: 4
Bäder: 1
WC: 2
Terrassen: 1
Stellplätze: 2
Keller: 23,76 m²
Heizwärmebedarf:  B  47,00 kWh/m²a
fGEE:  C  1,02
Nebenkostenübersicht Kauf Immobilie merken Exposé

Ausstattung

Fliesen, Laminatboden, Gas, Zentralheizung, Einbauküche, Wohnküche / offene Küche, Südbalkon, Bad mit Fenster, Badewanne, Parkplatz


Immobilie anfragen


Ihre persönliche Beratung

Kostner Immobilien GmbH

DI (FH) Axel Bernd-Kostner

Kostner Immobilien GmbH

T 0660 4747840