Urbanes Wohnen in zentraler Lage - grüner Innenhof - schöner und praktischer Schnitt - erstklassige Infrastruktur!

Wohnung , 4020 Linz , Wienerstraße 340


Beschreibung der Immobilie

Urbanes Wohnen in zentraler Lage - grüner Innenhof - schöner und praktischer Schnitt - erstklassige Infrastruktur!

Raumwunder mit klaren Linien und gemütlicher Atmosphäre



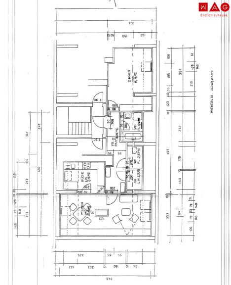
Betreten Sie die Wohnung über einen zentral gelegenen Vorraum, der Ihnen Zugang zu allen Bereichen bietet – ein funktionaler Dreh- und Angelpunkt Ihres neuen Heims. Rechterhand erwartet Sie das ruhig gelegene Schlafzimmer mit knapp 14 m² – ein behaglicher Rückzugsort mit Platz für Bett, Schrank und persönliche Entfaltung.



Das moderne Badezimmer ist clever geschnitten, verfügt über eine Wanne sowie Waschmaschinenanschluss, und wird durch ein separates WC ergänzt – ideal für Alltag und Gäste. Praktisch: Ein Abstellraum sowie ein zweiter Flur sorgen für zusätzliche Ordnung und Struktur im Alltag.



Das Herzstück der Wohnung bildet jedoch der großzügige Wohn-/Essbereich: Offen gestaltet, lichtdurchflutet, mit einer Wohnfläche von über 23 m². Die anschließende Küche (ca. 9 m²) ist klar abgetrennt und bietet Raum für kulinarische Kreativität, ohne den Wohnraum zu unterbrechen. Ein Grundriss, der kochfreudige Genießer genauso anspricht wie Liebhaber gemütlicher Abende auf dem Sofa.




Der nahe Wasserwald und das Hallen- und Freibad Schörgenhub sind ideal für

Freizeitaktivitäten. Weiters befindet sich in unmittelbarer Nähe eine der modernsten

und größten Kletterhallen Österreichs.



Miete inkl. Betriebskosten und MwSt.: € 598,40

Baukostenzuschuss/ Kaution gesamt € 2.494,40

 

Sie sind an weiteren Wohnungs- bzw. Gewerbeangeboten interessiert? Ein vielfältiges Angebot finden Sie auf unserer Website.

Zur WAG-Immobiliensuche: SUCHE

Zur WAG-Wohnungsanmeldung: Wohnungsanmeldung

Gerne beraten wir Sie persönlich über unser vielfältiges Angebot, rufen Sie uns einfach an! Und das natürlich ohne Vermittlungsgebühren und provisionsfrei!

Angaben sind ohne Gewähr auf Richtigkeit und Vollständigkeit. Druckfehler vorbehalten.

Infrastruktur / Entfernungen

Gesundheit
Arzt <625m
Apotheke <500m
Klinik <1.800m
Krankenhaus <2.675m

Kinder & Schulen
Kindergarten <725m
Schule <850m
Universität <4.050m
Höhere Schule <5.025m

Nahversorgung
Supermarkt <200m
Bäckerei <625m
Einkaufszentrum <2.275m

Sonstige
Bank <675m
Geldautomat <675m
Post <675m
Polizei <500m

Verkehr
Bus <600m
Straßenbahn <50m
Bahnhof <2.325m
Autobahnanschluss <1.650m
Flughafen <4.175m

Angaben Entfernung Luftlinie / Quelle: OpenStreetMap

Eckdaten Objektnr. 6650/18762

Art: Wohnung
Land: Österreich
Zustand: Gepflegt
Gesamtmiete: 598,40
Kaltmiete (netto): 372,46 €
Kaltmiete: 544,01 €
Betriebskosten: 171,44 €
MwSt Gesamt: 54,39 €
Wohnfläche: 60,00 m²
Zimmer: 2
Bäder: 1
WC: 1
Heizwärmebedarf:  C  78,00 kWh/m²a
fGEE:  C  1,23
Nebenkostenübersicht Miete Immobilie merken Exposé

Ausstattung

Zentralheizung, Badewanne


Immobilie anfragen


Ihre persönliche Beratung

Team Vermietung 1

WAG Wohnungsanlagen GmbH

T +43 (0)50 338 6000