Hofseitige, möblierte 2-Zimmerwohnung

Wohnung , 1160 Wien,Ottakring , Haberlgasse


Beschreibung der Immobilie

Hofseitige, möblierte 2-Zimmerwohnung

Quick facts: Wohnzimmer I Kabinett I möbliert I ruhig I Innenhof I Lugner City I öffentliche Verkehrsmittel



Ich freue mich auf Ihren Anruf:

Irene Lindenberger, MSc 01/526 26 36 



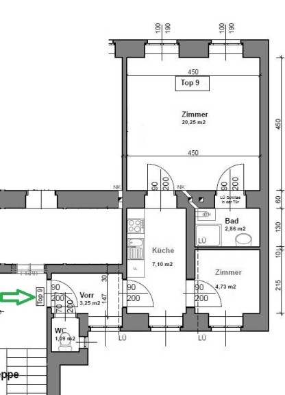
Haberlgasse - hier wartet eine möblierte 2-Zimmerwohnung auf neue Bewohnerinnen und Bewohner. Sie hat eine Wohnfläche von ca. 40qm. Die ruhige und zentrale Lage sind ein absoluter Pluspunkt. 



Die Wohnung teilt sich wie folgt auf: 
Vorraum

Separate Toilette

Küche

Zimmer

Wohnzimmer 

Badezimmer mit Dusche



Die Nähe zur Lugner City bietet eine sehr gute Nahversorgung mit sämtlichen Geschäften des täglichen Bedarfs. Des Weiteren besticht die Lage durch die ausgezeichnete Anbindung an das öffentliche Verkehrsnetz, U6-Station Thaliastrasse und diverse Straßenbahn- und Buslinien (48A, 9). In naher Umgebung der Liegenschaft befindet sich der Vogelweidpark für erholsame Momente im Grünen.



Energieausweis: HWB 144



Ich freue mich auf Ihren Anruf:

Irene Lindenberger, MSc 01/526 26 36 

 


Wir weisen darauf hin, dass zwischen dem Vermittler und dem zu vermittelnden Dritten ein familiäres oder wirtschaftliches Naheverhältnis besteht.


Der Vermittler ist als Doppelmakler tätig.

Eckdaten Objektnr. 1760/47

Art: Wohnung
Land: Österreich
Baujahr: 1900
Zustand: Modernisiert
Möbliert: Voll
Alter: Altbau
Kaufpreis: 169.000,00
Betriebskosten: 89,18 €
MwSt Gesamt: 8,92 €
Wohnfläche: 40,00 m²
Zimmer: 2,50
Bäder: 1
WC: 1
Heizwärmebedarf:  D  144,00 kWh/m²a
Nebenkostenübersicht Kauf Immobilie merken Exposé

Ausstattung

Gas, Etagenheizung, Personenaufzug, Dusche


Immobilie anfragen


Ihre persönliche Beratung

Lind Immobilien

Irene Lindenberger

Lind Immobilien

T +43 1 526 26 36

H +43 660 824 3952