Wunderschönes 7-Zimmer-Büro mit Balkon in ausgezeichneter Lage, Nähe Schottentor

Büro / Praxis , 1090 Wien


Beschreibung der Immobilie

Wunderschönes 7-Zimmer-Büro mit Balkon in ausgezeichneter Lage, Nähe Schottentor

Zur Vermietung gelangt ein wunderschönes 7-Zimmer-Büro mit Balkon im 9. Wiener Bezirk, Nähe Schottentor.



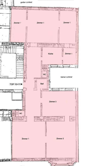
Dieses Objekt befindet sich im 2. Obergeschoß eines eleganten Gründerzeithauses, nur wenige Minuten von der Votivkirche entfernt. Das zweite Obergeschoß kann sowohl mit Lift, als auch durch ein stilvolles Treppenhaus erreicht werden. Die Immobilie umfasst insgesamt eine Fläche von ca. 201 m², welche sich auf sieben Zimmer, zwei Toiletten, ein Bad und eine Küche aufteilen. Alle Zimmer sind mit hochwertigem Parkettboden verlegt.



Durch die Fenster flutet viel Tageslicht in das Objekt, welches von den weiß-gestrichenen Wänden reflektiert wird und die Innenräume noch weiter erhellt. Durch die offene Raumgestaltung und die weitläufige Größe lässt sich das Objekt individuell gestalten.



Die Räume sind teils straßenseitig, teils hofseitig ausgerichtet.



Das Büro ist mit einer Klimaanlage ausgestattet.



Die exzellente Infrastruktur bietet direkte Nähe zum Ring und zur Wiener Innenstadt, sowie ausgezeichnete Anbindung zu öffentlichen Verkehrsmitteln wie der U2 (Station Schottentor) und vielen Straßenbahnlinien (Station Schottentor und Schwarzspanierstraße).



Überzeugen Sie sich selbst von dieser einzigartigen Immobilie.



Für Besichtigungen und nähere Informationen stehen wir Ihnen gerne zur Verfügung!



Frau Marie-Louise Eisenburger

national - Tel: 0676 605 9800
international - Tel: +43 676 605 9800
e-mail: eisenburger@lifestyle-properties.at


Wir weisen darauf hin, dass zwischen dem Vermittler und dem zu vermittelnden Dritten ein familiäres oder wirtschaftliches Naheverhältnis besteht.

Infrastruktur / Entfernungen

Gesundheit
Arzt <500m
Apotheke <500m
Klinik <500m
Krankenhaus <1.000m

Kinder & Schulen
Schule <500m
Kindergarten <1.000m
Universität <500m
Höhere Schule <1.000m

Nahversorgung
Supermarkt <500m
Bäckerei <500m
Einkaufszentrum <2.000m

Sonstige
Geldautomat <500m
Bank <500m
Post <500m
Polizei <500m

Verkehr
Bus <500m
U-Bahn <500m
Straßenbahn <500m
Bahnhof <500m
Autobahnanschluss <3.000m

Angaben Entfernung Luftlinie / Quelle: OpenStreetMap

Eckdaten Objektnr. 4786

Art: Büro / Praxis
Land: Österreich
Baujahr: 1884
Alter: Altbau
Kaltmiete (netto): 3.216,00 €
Kaltmiete: 3.679,55 €
Betriebskosten: 405,80 €
MwSt Gesamt: 735,91 €
Wohnfläche: 201,00 m²
Nutzfläche: 201,00 m²
Zimmer: 7
Bäder: 1
WC: 2
Balkone: 1
Heizwärmebedarf:  C  89,90 kWh/m²a
fGEE: 1,71
Nebenkostenübersicht Miete Immobilie merken Exposé

Ausstattung

Parkett, Gas, Etagenheizung, Einbauküche, Personenaufzug, Dusche


Immobilie anfragen


Ihre persönliche Beratung

IM Lifestyle Properties GmbH

Marie-Louise Eisenburger

Lifestyle Properties

T +43 1 512 14 84

H +43 676 6059800