SCHLÜSSELFERTIGES HAUS! Erstbezug I Neubau I große Terrasse I mit S-Bahn ca. 15 min. HBF Wien I Luftwärmepumpe inkl. Kühlfunktion! I hochwertige Ausstattung

Haus , 2481 Achau


S-Bahn Station nach Wien 350m entfernt Wien U1 Oberlaa: ca. 14 Min. entfernt SCS: ca. 9 Min. entfernt Flughafen Schwechat: ca. 17 Min. entfernt Spar: ca. 3 Min. enfernt Tankstelle: ca. 3 Min. entfernt Supermarkt: Billa Plus, Hofer ca. 5 Min. entfernt Volksschule: 170m entfernt Bahnhof Achau - S60: 700m entfernt

Beschreibung der Immobilie

SCHLÜSSELFERTIGES HAUS! Erstbezug I Neubau I große Terrasse I mit S-Bahn ca. 15 min. HBF Wien I Luftwärmepumpe inkl. Kühlfunktion! I hochwertige Ausstattung

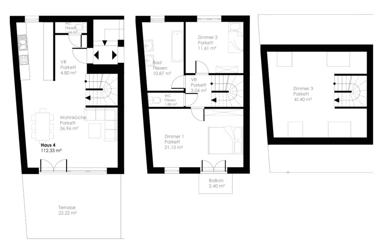
Dieses schöne SCHLÜSSELFERTIGE 4 Zimmer Haus mit ca. 133,37m² Wohnfläche und einer Terrasse von ca. 22,22m² lässt Träume Realität werden. Die Immobilie überzeugt durch Ihre südliche Ausrichtung und bezaubert durch die durchdachte Raumaufteilung und die ruhige Innenhoflage. Weiters profitieren Sie hier von der tollen öffentlicher Anbindung - Sie erreichen den Wiener Hauptbahnhof in ca. 15 Minuten.



Das Haus teilt sich auf wie folgt: 



  • Vorraum 4,80m²
  • Wohnküche 36,96m²
  • 1 Zimmer 21,15m² mit Balkon 2,40m²
  • 2 Zimmer 11,61m²
  • 3 Zimmer 41,40m²
  • Badezimmer 10,87m²
  • 2 WC jeweils ca. 1,8m²
  • Terrasse ca. 22,22m²



Kurzinfo Ausführung und Ausstattung:



  • große Terrasse
  • hochwertiger Parkettboden und Fließen
  • Badezimmer mit Badewanne und Dusche
  • Ziegelmassiv-Bauweise
  • Vollwärmeschutzfassade
  • hochwertige Fenster mit 3-Schichtverglasung und Sonnenschutzelementen
  • Luftwärmepumpe mit Kühlfunktion!
  • Fußbodenheizung
  • gepflasterte Stellplätze 



Öffentliche Verkehrsanbindung:



  • Bus 215,216 Haltestelle Achau Gemeinde: 27 Minuten nach Mödling Bahnhof 
  • Achau Bahnhof: 20 Minuten nach Wien Hauptbahnhof
  • Die SCS ist mit Auto in 9 Minuten erreichbar
  • Der Flughafen Schwechat ist mit Auto in 17 Minuten erreichbar



Kaufpreis:



Der Kaufpreis beläuft sich auf Euro 515.000,--!



Zusätzlich zum Haus sind 2 Stellplätze zum Kaufpreis von je 14.000€ verpflichtend zu erwerben.



Monatliche Betriebskosten: 



190,70€ zzgl. USt. 10,00 %



Rücklage 58,48€



Energieausweis 



Der Heizwärmebedarf beträgt 38,53 kWh/m²a, welcher der Klasse B entspricht.



Kurzinfo Lage:



  • Bushaltestelle gleich gegenüber
  • S- Bahn Station 350m entfernt
  • in 9 Autominuten zur SCS
  • in 14 Autominuten zur U1 Oberlaa
  • in 17 Autominuten direkt zum Flughafen Wien
  • Volksschule 160 m entfernt 
  • Kindergarten in 5 Gehminuten erreichbar
  • Supermarkt wie Billa, Hofer und Merkur in 5 Autominuten erreichbar
  • Zentrale Ortslage: Gemeindeamt und Allgemeinärzte etc. sind zu Fuß erreichbar
  • abwechslungsreiche Gastronomie vom Restaurant bis zum Winzerhof
  • Vielfältige Möglichkeiten für Sport und Freizeit: Fußball, Golf, Reiten, etc. 




Gerne steht Ihnen Frau Elina Strautmane für weitere Fragen bzw. flexibel gestaltbare Besichtigungstermine unter  0664 99 52 3313 zur Verfügung.  



www.ringsmuth-immobilien.at



Wir weisen ausdrücklich auf unser wirtschaftliches Naheverhältnis mit dem Abgeber/der Abgeberin und auf unsere Vermittlungstätigkeit als Doppelmakler hin. 



Irrtum und Änderungen vorbehalten!


Der Vermittler ist als Doppelmakler tätig.

Infrastruktur / Entfernungen

Gesundheit
Arzt <3.000m
Apotheke <2.500m
Klinik <7.000m
Krankenhaus <7.000m

Kinder & Schulen
Kindergarten <3.000m
Schule <500m
Universität <9.000m
Höhere Schule <7.500m

Nahversorgung
Supermarkt <1.000m
Bäckerei <500m
Einkaufszentrum <5.000m

Sonstige
Bank <500m
Geldautomat <500m
Post <3.000m
Polizei <3.500m

Verkehr
Bus <500m
U-Bahn <7.000m
Bahnhof <1.000m
Straßenbahn <7.000m
Autobahnanschluss <4.000m

Angaben Entfernung Luftlinie / Quelle: OpenStreetMap

Eckdaten Objektnr. 15694

Art: Haus
Land: Österreich
Zustand: Erstbezug
Alter: Neubau
Kaufpreis: 515.000,00
Wohnfläche: 133,37 m²
Nutzfläche: 157,99 m²
Zimmer: 4
Bäder: 1
WC: 1
Balkone: 1
Terrassen: 1
Heizwärmebedarf:  B  38,53 kWh/m²a
fGEE:  A  0,85
Nebenkostenübersicht Kauf Immobilie merken Exposé

Ausstattung

Parkett, Fliesen, Fußbodenheizung, Wohnküche / offene Küche, Südbalkon, Bad mit Fenster, Badewanne, Parkplatz


Immobilie anfragen


Ihre persönliche Beratung

Alexander Ringsmuth GmbH

Elina Strautmane

Alexander Ringsmuth GmbH

T +43 1 3709098

H +43 664 99523313