Universal nutzbare Eventfläche mit Traumkulisse

Gastgewerbe , 2724 Maiersdorf , Hochkogelstraße 127


- Naturpark Hohe Wand - zahlreiche Wanderwege und Kletterwände in direkter Umgebung - in nur einer Stunde Fahrzeit gelangen Sie in die Wiener Innenstadt

Beschreibung der Immobilie

Universal nutzbare Eventfläche mit Traumkulisse

Sehr geehrte Damen und Herren,





inmitten des beliebten Naherholungsgebiets „Naturpark Hohe Wand“ stehen Ihnen verschiedene Eventflächen im Hochkogelhaus zur Anmietung zur Verfügung. Die Anmietung kann entweder auf Tagesmietbasis für ein einzelnes Event oder auf langfristiger Basis erfolgen, wenn Sie Ihre eigene Eventlocation aufbauen möchten.



Ob für private Feiern, Firmenveranstaltungen, Yoga Retreats, Seminare, Workshops oder andere besondere Anlässe – die Location bietet Ihnen und Ihren Gästen eine spektakuläre Kulisse mit einzigartigem Fernblick über das gesamte Tal.

 



Die Highlights im Überblick:



  • Lage direkt an der Klippe der Hohen Wand
  • Fernblick im wahrsten Sinne des Wortes
  • ehemalige Gastrofläche ist kurzfristig einsatzbereit nach technischer Überprüfung
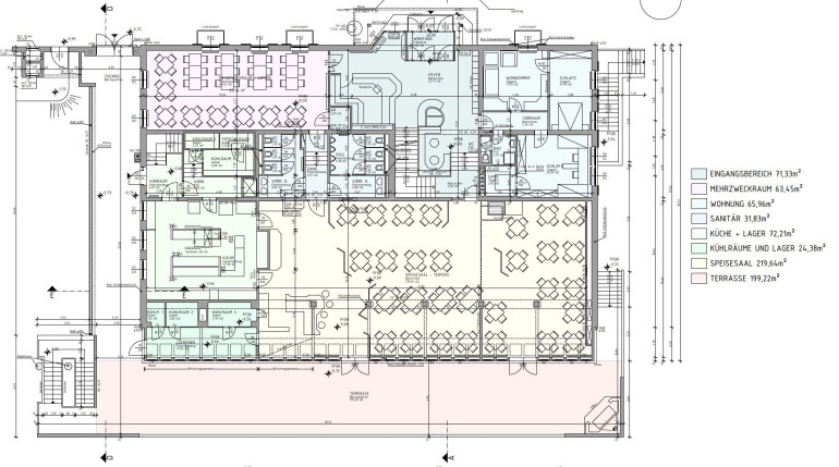
  • Großer Gästebereich: Platz für bis zu 118 Gäste
  • Mehrzweckraum/Veranstaltungsraum: Platz für bis zu 56 Gäste
  • Terrasse: ca. 200 m² 
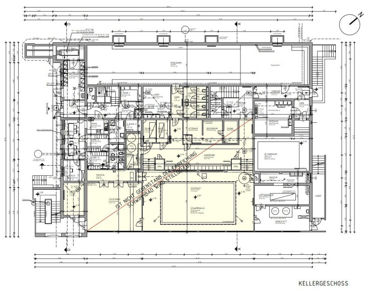
  • 150m2 Hallebereich im UG mit Fernblick 
  • ca 1500m2 Gartenfläche für Outdooraktivitäten 




Preisgestaltung bei Tagesmieten



  • Gastronomiefläche (ca 400m2): netto 1.200 € pro Tag
  • Halle (ca 155m2): netto 600 € pro Tag
  • Garten (ca 1500m2): netto 600 € pro Tag


Kombipaket (Gastro + Halle + Garten): 2.000 €/Tag netto  





Preisgestaltung bei langfristiger Miete auf Monatsbasis



Langfristige Nutzung für die Errichtung Ihrer eigenen Eventlocation inklusive Gastrofläche, Halle, Garten und weitere Bereiche auf Anfrage:



  • Nettomiete: 4.500 €  
  • Betriebskosten: € 2,35/m2 netto


Die Betriebskosten belaufen sich auf ca € 2,35/m2 netto und werden je nach Flächenbedarf (Gastronomiebereich, Halle, sonstige Bereiche) kalkuliert.  




Zusätzliche Anmietungsmöglichkeiten im Haus (auf Anfrage):



  • Büroflächen
  • Mitarbeiterwohnungen
  • Gästezimmer/Apartments (20 m² bis 35 m²)
  • Lagerräume




Übernachtungsmöglichkeiten: Für Gäste, die länger bleiben möchten, stehen unsere Self-Check-in-Apartments zur Verfügung. Diese können über Booking.com, Airbnb oder direkt über unsere Homepage gebucht werden.



Kontaktieren Sie uns jederzeit für nähere Informationen oder einen Besichtigungstermin (gerne auch spät abends oder am Wochenende).



Wir freuen uns auf Ihre Anfrage!


Wir weisen darauf hin, dass zwischen dem Vermittler und dem zu vermittelnden Dritten ein familiäres oder wirtschaftliches Naheverhältnis besteht.


Der Vermittler ist als Doppelmakler tätig.

Eckdaten Objektnr. 271544066

Art: Gastgewerbe
Land: Österreich
Zustand: Gepflegt
Alter: Neubau
Kaltmiete (netto): 4.500,00 €
Kaltmiete: 4.500,00 €
Nutzfläche: 400,00 m²
Gesamtfläche: 550,00 m²
Bäder: 2
WC: 6
Terrassen: 1
Garten: 1.500,00 m²
Nebenkostenübersicht Miete Immobilie merken Exposé

Ausstattung

Fliesen, Zentralheizung, Einbauküche, Angeschl. Bar, Gastterrasse


Immobilie anfragen


Ihre persönliche Beratung

Immobiliaris GmbH

Mag. Bernhard Kramer-Drauberg

Immobiliaris GmbH

T +43 650 777 28 96