***Neu*** Bewilligter Rohdachboden mit Entwicklungspotenzial! 8 tolle Einheiten mit Freiflächen!

Zinshaus Renditeobjekt , 1100 Wien


Beschreibung der Immobilie

***Neu*** Bewilligter Rohdachboden mit Entwicklungspotenzial! 8 tolle Einheiten mit Freiflächen!

++ ENTWICKLUNGSPOTENZIAL ++



Zum Verkauf gelangt ein bewilligter Rohdachboden in einer gefragten Lage des 10. Wiener Gemeindebezirks. Dieses Objekt bietet eine hervorragende Möglichkeit, ein exklusives Wohnprojekt zu realisieren.




OBJEKTBESCHREIBUNG



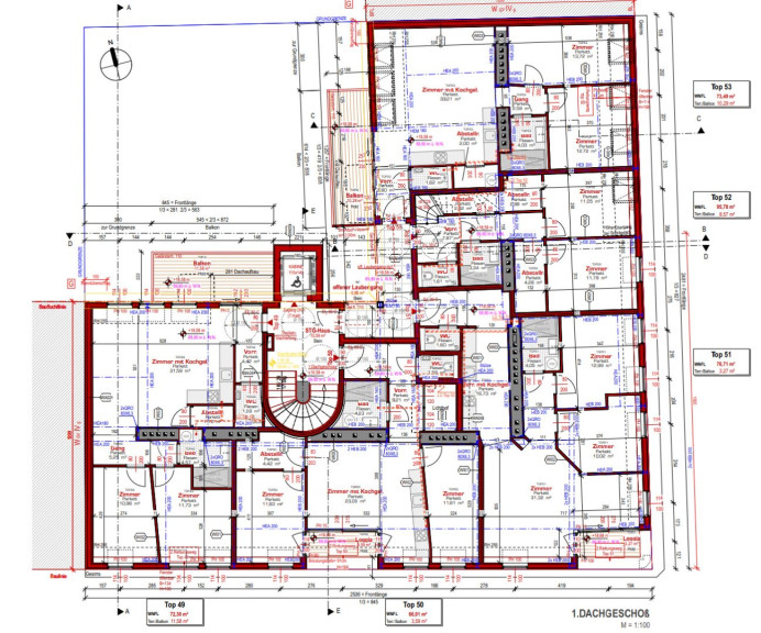
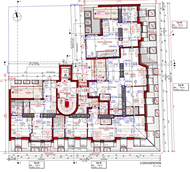
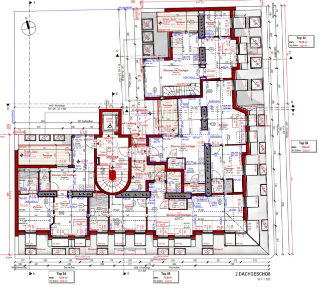
Die geplante Entwicklung umfasst 8 gut geschnittene Wohnungen mit einer Gesamtwohnnutzfläche von ca. 588 m² sowie Freiflächen von insgesamt ca. 62 m². Die geplanten Einheiten im Detail:



  • Top 49: ca. 72 m² WNF + ca. 11 m² Balkon (3 Zimmer, 1. DG)
  • Top 50: ca. 66 m² WNF + ca. 4 m² Balkon (2 Zimmer, 1. DG)
  • Top 51: ca. 77 m² WNF + ca. 3 m² Balkon (3 Zimmer, 1. DG)
  • Top 52: ca. 96 m² WNF + ca. 9 m² Terrasse (3 Zimmer Maisonette, 1. + 2. DG)
  • Top 53: ca. 73 m² WNF + ca. 10 m² Balkon (3 Zimmer, 1. DG)
  • Top 54: ca. 55 m² WNF + ca. 11 m² Terrasse (2 Zimmer, 2. DG)
  • Top 55: ca. 73 m² WNF + ca. 8 m² Terrasse (2 Zimmer, 2. DG)
  • Top 56: ca. 75 m² WNF + ca. 7 m² Terrasse (2 Zimmer, 2. DG)



LAGE



Die Immobilie befindet sich im 10. Wiener Gemeindebezirk, einer aufstrebenden Gegend, die eine perfekte Balance zwischen urbanem Leben und ruhigen Wohnmöglichkeiten bietet. Diese Lage punktet durch ihre hervorragende Infrastruktur und eine hohe Lebensqualität.




  • Einkaufsmöglichkeiten:
    Direkt in der Umgebung finden sich zahlreiche Geschäfte des täglichen Bedarfs, darunter Supermärkte, Drogerien, Bäckereien und kleinere Fachgeschäfte. Für ausgedehnte Shoppingtouren bieten sich nahegelegene Einkaufszentren und Einkaufsstraßen an.



  • Kulinarische Vielfalt:
    Die Nachbarschaft besticht durch ein breites Angebot an Gastronomie – von traditionellen Wiener Gasthäusern über gemütliche Cafés bis hin zu internationalen Restaurants. Hier ist für jeden Geschmack etwas dabei.



  • Gesundheit und Versorgung:
    In unmittelbarer Nähe befinden sich Apotheken, Arztpraxen und weitere medizinische Versorgungseinrichtungen, die eine Rundum-Betreuung gewährleisten.



  • Bildung und Freizeit:
    Der Bezirk bietet eine ausgezeichnete Auswahl an Bildungseinrichtungen, von Kindergärten über Schulen bis hin zu Hochschulen. Für Freizeitaktivitäten stehen Parks, Fitnessstudios und kulturelle Angebote zur Verfügung, die sowohl Familien als auch Singles ansprechen.



  • Erholungsgebiete:
    Grünflächen und Parks, wie etwa der nahegelegene Kurpark Oberlaa oder kleinere Stadtparks, laden zum Entspannen und Verweilen ein. Diese Oasen sind ideal für Spaziergänge, Sport oder einfach eine Auszeit vom städtischen Trubel.





VERKEHRSANBINDUNG



Das Objekt ist hervorragend an das öffentliche Verkehrsnetz angeschlossen:



  • Buslinien: 48A, N46
  • Straßenbahnen: 9, 44, 46


Mit diesen Verbindungen erreichen Sie die Wiener Innenstadt in nur 15 Minuten. Darüber hinaus gewährleisten die öffentlichen Verkehrsmittel eine ideale Anbindung an andere Teile der Stadt, einschließlich Bildungseinrichtungen und Freizeiteinrichtungen.




KAUFPREIS



Der lastenfreie Kaufpreis beträgt € 499.000,-.



Der Käufer des Rohdachbodens ist verpflichtet auf eigene Kosten eine Aufzugsanlage zu errichten und allen Miteigentümern unentgeltlich zur Verfügung zu stellen. (Die Lift-Betriebskosten und Lift-Reperaturrücklage sind von jeder Einheit zu leisten)




Hinweis:
Für die Vereinbarung eines Besichtigungstermins bitten wir um eine schriftliche Anfrage. Wir antworten verlässlich am selben Tag!







Sollten Sie Fragen haben oder einen Besichtigungstermin wünschen, zögern Sie bitte nicht mich zu kontaktieren. (am besten via E-Mail Anfrage)



Zur Vereinbarung eines Besichtigungstermins lassen Sie uns bitte jedenfalls eine E-Mailanfrage zukommen!



Der IMMY ist die renommierteste Auszeichnung für Wiener Makler- und Verwalterbetriebe im Bereich Wohnimmobilien. Wir sind stolz den goldenen IMMY für das Jahr 2019 gewonnen zu haben!



Vielen Dank vor allem an unsere Kunden! Unser Unternehmen wurde auch zum Besten Start Up und in den Jahren 2015, 2018, 2019 und 2020 als Qualitätsmakler ausgezeichnet!



Bitte achten Sie darauf, dass Sie diese Immobilie, nach Ihrer Anfrage bei Adonia Immobilien, nicht auch bei einem anderen Immobilienmaklerbüro anfragen! Vielen Dank!



Nicht alle unsere Immobilien finden Sie auf den gängigen Plattformen. Wir freuen uns auf Ihren Besuch auf unserer Homepage unter adonia.at 



Wir weisen ausdrücklich auf unser wirtschaftliches Naheverhältnis mit dem Abgeber/ der Abgeberin hin!  Unsere gesetzlichen Pflichten als Doppelmakler werden dadurch jedoch nicht beeinträchtigt. Irrtum und Änderungen vorbehalten. 



Alle hier veröffentlichen Informationen basieren auf den uns von dem Abgeber/ der Abgeberin zur Verfügung gestellten Informationen und wurden nicht selbst erhoben.



Unsere Allgemeinen Geschäftsbedingungen können Sie sowohl in dem Ihnen zugesandten Expose einsehen als auch auf unserer Homepage. Wir weisen ausdrücklich darauf hin, dass diese AGBs Vertragsinhalt werden.



Der Schutz von personenbezogenen Daten ist uns wichtig und auch gesetzlich gefordert. Die Verarbeitung Ihrer personenbezogenen Daten erfolgt nach den datenschutzrechtlichen Bestimmungen. Auf unserer Homepage (unter Datenschutzinformation) finden Sie eine Übersicht die Sie über die wichtigsten Aspekte der Verarbeitung personenbezogener Daten informieren soll.



Wir weisen darauf hin, dass zwischen dem Vermittler und dem Auftraggeber ein wirtschaftliches Naheverhältnis besteht. Der Vermittler ist als Doppelmakler tätig.




Wir weisen darauf hin, dass zwischen dem Vermittler und dem zu vermittelnden Dritten ein familiäres oder wirtschaftliches Naheverhältnis besteht.


Der Vermittler ist als Doppelmakler tätig.

Infrastruktur / Entfernungen

Gesundheit
Arzt <1.000m
Apotheke <500m
Klinik <1.000m
Krankenhaus <2.500m

Kinder & Schulen
Schule <500m
Kindergarten <500m
Universität <500m
Höhere Schule <2.000m

Nahversorgung
Supermarkt <500m
Bäckerei <500m
Einkaufszentrum <1.500m

Sonstige
Geldautomat <500m
Bank <500m
Post <500m
Polizei <1.500m

Verkehr
Bus <500m
U-Bahn <1.000m
Straßenbahn <500m
Bahnhof <500m
Autobahnanschluss <500m

Angaben Entfernung Luftlinie / Quelle: OpenStreetMap

Eckdaten Objektnr. 60219

Art: Zinshaus Renditeobjekt
Land: Österreich
Kaufpreis: 498.900,00
Wohnfläche: 588,00 m²
Heizwärmebedarf: 77,50 kWh/m²a
fGEE: 1,60
Nebenkostenübersicht Kauf Immobilie merken Exposé

Immobilie anfragen


Ihre persönliche Beratung

Adonia Realitätenvermittlung GmbH

Luca Schelodetz

Adonia Immobilien GmbH

T 0664/910 15 40