Novaragasse 1020 Wien : Atelier im 2. Bezirk zum Kauf

Wohnung , 1020 Wien , Novaragasse


Beschreibung der Immobilie

Novaragasse 1020 Wien : Atelier im 2. Bezirk zum Kauf

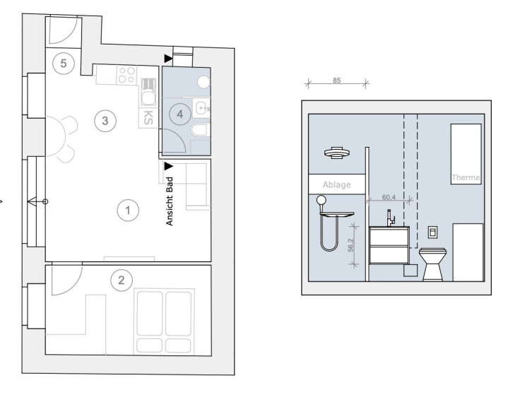
Zum Verkauf gelangt ein im Jahr 2023 grundsaniertes Atelier im zweiten Bezirk, zwischen Praterstern und Taborstraße. Das Atelier ist mit Fußbodenheizung ausgestattet und wird mittels Brennwertheizung wärmeversorgt. Es wurde Weitzer Eichenparkett im Fischgrätmuster verlegt sowie geschmackvolle Fliesen im Badezimmer mit Walk-In Dusche gelegt. 



Das Atelier ist Richtung Westen einen hellen, offenen Innenhof orientiert wohin auch die Terrassentüren aufgehen. Vom Vorbesitzer wurde der Platz vor der Terrassentüre im Sommer als Platz zum Malen verwendet. Hingewiesen sei, dass es sich dabei um Allgemeinfläche handelt. Dem Atelier ist ein unsaniertes Gang-WC zugeordnet.



Im Jahre 2024 wurde glücklicherweise eine umfassende TheWoSan des Gebäudes beschlossen. Gedämmt werden alle Fassadenteile sowie Kellerdecke und oberste Geschoßdecke. Es werden alle Fenster auf moderene 3-fach isolierte Kunststofffenster getauscht werden. Der Heizwärmebedarf wird somit von ca. 158kWh auf ca. 26kWh um 84% gesenkt werden! Die Finanzierung erfolgt zu entweder als Einmalzahlung (für das vorliegende Objekt ca. € 9.235) oder als Darlehen über eine moderate Erhöhung der Reparaturrücklage von € 42 auf ca. € 63 pro Monat.


Hinweis gemäß Energieausweisvorlagegesetz: Ein Energieausweis wurde vom Eigentümer bzw. Verkäufer, nach unserer Aufklärung über die generell geltende Vorlagepflicht, sowie Aufforderung zu seiner Erstellung noch nicht vorgelegt. Daher gilt zumindest eine dem Alter und der Art des Gebäudes entsprechende Gesamtenergieeffizienz als vereinbart. Wir übernehmen keinerlei Gewähr oder Haftung für die tatsächliche Energieeffizienz der angebotenen Immobilie.

Eckdaten Objektnr. 7735/457

Art: Wohnung
Land: Österreich
Kaufpreis: 279.000,00
Betriebskosten: 66,91 €
MwSt Gesamt: 13,38 €
Wohnfläche: 46,24 m²
Zimmer: 2
Nebenkostenübersicht Kauf Immobilie merken Exposé

Ausstattung

Fliesen, Parkett, Fußbodenheizung, Einbauküche, Dusche


Immobilie anfragen


Ihre persönliche Beratung

Immobiliaris GmbH

Mag. Bernhard Kramer-Drauberg

Immobiliaris GmbH

T +43 650 777 28 96