Coming soon: SIEGFRIED63 | Naturnah wohnen, urban leben!

Wohnung , 1210 Wien , Siegfriedgasse 63


Nähe obere Alte Donau

Beschreibung der Immobilie

Coming soon: SIEGFRIED63 | Naturnah wohnen, urban leben!

*** JETZT VORMERKEN! ***



Das Neubauprojekt SIEGFRIED63 in der gleichnamigen Siegfriedgasse umfasst 12 exklusive Wohnungen in ruhiger, naturnaher Umgebung.



Ruhe, Erholung, viel Grün und gleichzeitig Urbanität. Das bietet der Stadtteil „Donaufeld“ in Wien, Floridsdorf.

Perfekte Infrastruktur und eine Vielzahl an nahegelegenen Erholungsmöglichkeiten. Die Alte Donau ist nur wenige Gehminuten entfernt.



Optimal angebunden ist man mit den öffentlichen Verkehrsmitteln und dem Floridsdorfer Hauptbahnhof.

Sportliebhaber können den Bezirk sowie die Natur entlang der Donau über das sehr gut ausgebaute Radwegenetz erkunden.



Die künftigen Bewohnerinnen und Bewohner dürfen sich auf durchdachte Grundrisse, hochwertige Ausführung sowie persönliche Freiräume freuen, die für ein lebenswertes Wohlfühlambiente in den eigenen vier Wänden sorgen.



Diese Highlights erwarten Sie im Projekt Siegfriedgasse



  • grüne, ruhige Umgebung
  • moderne Energiestandards: Energieversorgung über Luft-Wasser-Wärmepumpe
  • Photovoltaikanlage
  • Garage mit Vorbereitung für E-Mobilität
  • barrierefrei und seniorengerecht


Klimaeffizienz



Die Luftwärmepumpe garantiert eine ökologisch nachhaltige und kosteneffiziente Energieversorgung, da sie die in der Umgebungsluft vorhandene Wärme nutzt. Dies reduziert den Energieverbrauch und die Betriebskosten erheblich, während gleichzeitig die Umwelt geschont wird.



Ausstattung



Die Wohnungen überzeugen durch eine erstklassige Ausstattung, die höchsten Wohnkomfort bietet.​



Elektrische Außenjalousien, hochwertiges Echtholzparkett und große Fenster schaffen eine helle und einladende Atmosphäre. Die integrierte Fußbodenheizung und Kühlung sorgt für das perfekte Raumklima zu jeder Jahreszeit.



Darüber hinaus verfügen die Terrassen und einige Balkone über praktische Wasseranschlüsse. Eine Bewässerungsanlage für die Gärten sorgt für eine unkomplizierte Pflege der Grünflächen.



Alle Wohnungen sind barrierefrei gestaltet und bieten somit höchsten Wohnkomfort für alle Lebenssituationen.



Infrastruktur, Lage & Umgebung



Der öffentliche Verkehr ist sehr gut ausgebaut. Die U-Bahn-Linien U1 und U6 sowie die Wiener Schnellbahn befinden sich in unmittelbarer Nähe. Ebenfalls die Straßenbahn Linie 25 und 26, sowie Busse der Linie 29A, 29B.

Der Bahnhof Floridsdorf ist mit dem Fahrrad in nur 5 Minuten erreichbar oder zwei Stationen mit der Straßenbahn und ermöglicht eine bequeme Anbindung an das Wiener Stadtzentrum. 

Zahlreiche Geschäfte des täglichen Bedarfs, ärztliche Versorgung (u.a. Klinik Floridsdorf), das Shoppingcenter SCN befinden sich in unmittelbarer Nähe.



Freizeit genießen



Ihr neues Zuhause bietet vielfältige Möglichkeiten der Freizeitgestaltung.



Die idyllische Alte Donau erreichen Sie in nur 900 Metern und finden dort ideale Bedingungen für entspannende Spaziergänge, sportliche Aktivitäten und erholsame Stunden am Wasser. Mit dem Fahrrad ist man in wenigen Minuten am Mühlschüttel Park (An der Oberen Alten Donau) oder beim Floridsdorfer Bad. Auch der Floridsdorfer Wasserpark oder der Donaupark sind so in nur wenigen Minuten erreichbar.



Floridsdorf gilt als sehr beliebte Wiener Heurigengegend. Die Stammersdorfer Kellergasse ist weit über die Bezirksgrenzen hinaus bekannt. Bei Wander-Fans oder für Fahrradtouren beliebt sind der Bisamberg oder der Radweg entlang der Donauinsel.



Das Projekt befindet sich in der Vorbereitung für den geplanten Baubeginn im Herbst 2025.

Die voraussichtliche Fertigstellung ist für Ende 2026 vorgesehen.

Noch nichts gefunden? Wir informieren Sie über geeignete Immobilienangebote noch vor allen anderen.
Legen Sie jetzt Ihren individuellen Suchagenten unter folgendem Link an. Wir schicken Ihnen passende Immobilien exklusiv vorab zu.

Suchagent anlegen - https://accenta-immobilien.service.immo/registrieren/de


Wir weisen darauf hin, dass zwischen dem Vermittler und dem zu vermittelnden Dritten ein familiäres oder wirtschaftliches Naheverhältnis besteht.


Der Vermittler ist als Doppelmakler tätig.

Sie wollen auch Ihre Immobilien Verkaufen oder Vermieten?

Accenta Immobilien - Ihr Partner für Immobilienvermittlung
www.accenta-immo.at
01/997 12 93

 

Infrastruktur / Entfernungen

Gesundheit
Arzt <200m
Apotheke <425m
Klinik <1.400m
Krankenhaus <1.475m

Kinder & Schulen
Schule <250m
Kindergarten <375m
Universität <1.025m
Höhere Schule <1.475m

Nahversorgung
Supermarkt <350m
Bäckerei <425m
Einkaufszentrum <1.200m

Sonstige
Geldautomat <550m
Bank <725m
Post <700m
Polizei <400m

Verkehr
Bus <275m
U-Bahn <1.025m
Straßenbahn <275m
Bahnhof <1.150m
Autobahnanschluss <1.750m

Angaben Entfernung Luftlinie / Quelle: OpenStreetMap

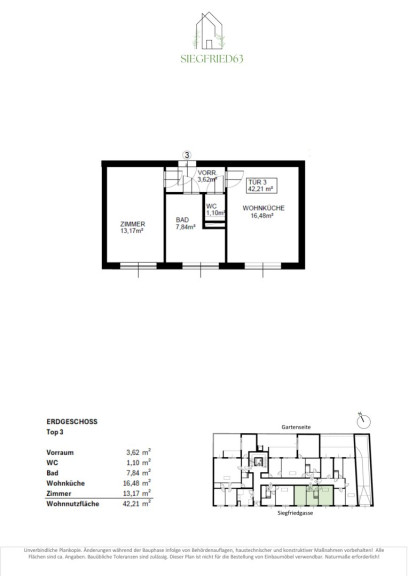
Eckdaten Objektnr. 10992

Art: Wohnung
Land: Österreich
Baujahr: 2025
Zustand: Erstbezug
Alter: Neubau
Kaufpreis: 249.000,00
Wohnfläche: 42,21 m²
Nutzfläche: 42,21 m²
Gesamtfläche: 42,21 m²
Zimmer: 2
Bäder: 1
WC: 1
Heizwärmebedarf:  B  36,80 kWh/m²a
fGEE:  A  0,71
Nebenkostenübersicht Kauf Immobilie merken Exposé

Ausstattung

Parkett, Fliesen, Fußbodenheizung, Personenaufzug, Kabel/Satelliten-TV, Garage


Immobilie anfragen


Ihre persönliche Beratung

Accenta Immobilien e.U.

Martina Schütz

Accenta Immobilien e.U.

T +43 1 9971293

H +43 699 17089345

F +43 1 997129310