Trasdorf - Baugründe

Grundstück - Baugrund Eigenheim, 3452 Trasdorf


Beschreibung der Immobilie

Trasdorf - Baugründe

Das Grundstück befindet sich zwischen Tulln an der Donau, St. Pölten und Krems an der Donau. 



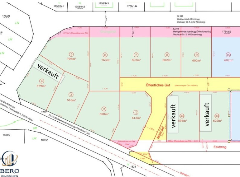
Hier entsteht eine Siedlung mit Zugang zum öffentlichen Badesee! Achtung: kein direktes Seegrundstück!



Die Nähe zum Badesee und zum Diamond Golfplatz aber auch zum Tullnerfelder Bahnhof mit Anbindung zum Flughafen haben die Region enorm aufgewertet.



Die Bauklasse röm. 1 und 2 lässt viele Möglichkeiten zu, ob Bungalow oder ein Haus mit Obergeschoß für ihre Familie.





Wichtige Informationen zum Grundstück:



  • kein Bebauungsplan, Bebauung laut Niederösterreichischer Bauordnung
  • Eigengrund
  • Preis zuzüglich Auf- und Anschließungskosten = zirka € 24.340,- mit Baubewilligung zu bezahlen
  • Strom & Wasser sowie Kanal bereits beim Grundstück
  • Bauzwang 3 Jahre ab Beginn (Fertigstellung plus 2 Jahre)
    • 3 Jahre ab Kauf muss der Bau eines Hauses eingereicht werden

  • nur ca. 12-15 Minuten von Tulln, Sankt Pölten und Krems
  • ca. 613m² Gesamtfläche
    • Widmung: Bauland Wohnen

  • zwei Stellplätze pro Bauplatz benötigt
  • Bauklasse I, II
  • offene Bebauung
  • Abstand zum Nachbarn 3,5m oder halbe Gebäudehöhe 




  • der Bahnhof in Trasdorf ist zu Fuß in 2 min erreichbar oder 

    Bahnhof Tullnerfeld 9 min mit Auto
  • Autowaschanlage 2 Minuten entfernt
  • Bäckerei Otzelberger im Ortskern 
  • Supermarkt in Heiligeneich (Nachbarortschaft)
  • Schulen und Kindergarten in Atzenbrugg/Heiligeneich
  • Ärztezentrum und Apotheke am Bahnhof Tullnerfeld 
  • Auch für unsere Tiere ist gesorgt Tierarztpraxis in 2 km 
  • Obst und Gemüse ab Hof Verkauf in Rust im Tullnerfeld (Fam. Zachhalmel)

     


Sport und Freizeit:



  • Badesee 500 Meter entfernt inkl. Beachvolleyball
  • Radweganbindung zur DONAU
  • European Golfplatz
  • Fußball: Sportanlagen USV Heiligeneich/Atzenbrugg
  • Tennisplatz in der Nähe 
  • Pferde Stellplätze in  1km Entfernung 
  • Hunde Platz (Wuffund Wau Zone)




Für Fragen oder Terminvereinbarung stehe ich Ihnen gerne zur Verfügung
Rufen Sie am besten gleich an  +43 676 5362642 oder senden Sie uns eine E-Mail unter: norbert.vukits@bero-immobilien.at 


Norbert Vukits, Bero Immobilien GmbH




Obige Angaben basieren auf Informationen des Eigentümers und sind ohne Gewähr. Irrtum und Änderungen vorbehalten.





Hinweis gemäß Energieausweisvorlagegesetz: Ein Energieausweis wurde vom Eigentümer bzw. Verkäufer, nach unserer Aufklärung über die generell geltende Vorlagepflicht, sowie Aufforderung zu seiner Erstellung noch nicht vorgelegt. Daher gilt zumindest eine dem Alter und der Art des Gebäudes entsprechende Gesamtenergieeffizienz als vereinbart. Wir übernehmen keinerlei Gewähr oder Haftung für die tatsächliche Energieeffizienz der angebotenen Immobilie.


Wir weisen darauf hin, dass zwischen dem Vermittler und dem zu vermittelnden Dritten ein familiäres oder wirtschaftliches Naheverhältnis besteht.


Der Vermittler ist als Doppelmakler tätig.

Infrastruktur / Entfernungen

Gesundheit
Arzt <2.500m
Klinik <9.000m
Apotheke <2.000m

Kinder & Schulen
Schule <2.500m
Kindergarten <2.500m

Nahversorgung
Supermarkt <2.000m
Bäckerei <500m
Einkaufszentrum <2.000m

Sonstige
Geldautomat <2.000m
Bank <2.000m
Post <5.000m
Polizei <3.500m

Verkehr
Bus <500m
Bahnhof <500m
Autobahnanschluss <9.000m

Angaben Entfernung Luftlinie / Quelle: OpenStreetMap

Eckdaten Objektnr. 5660/7352

Art: Grundstück - Baugrund Eigenheim
Land: Österreich
Kaufpreis: 186.620,00
Grundstücksfl.: 602,00 m²
Nebenkostenübersicht Kauf Immobilie merken Exposé

Immobilie anfragen


Ihre persönliche Beratung

Bero Immobilien GmbH

Heinz – Peter Nastl

Bero Immobilien GmbH

H +43 660 157 50 54