Hangweg 23 - Neubauprojekt in Graz Eggenberg - 2-Zimmer-Wohnung mit Terrasse und Garten
Wohnung
,
8020
Graz
Beschreibung der Immobilie
Hangweg 23 - Neubauprojekt in Graz Eggenberg - 2-Zimmer-Wohnung mit Terrasse und Garten
Exklusives Neubauprojekt in Graz Eggenberg, Hangweg 23 – Uran Retreat – an den Ausläufern des Plabutsch.
Durchdachte und flexibel anpassbare Grundrisse machen jede der 7 Eigentumswohnungen, in der Größe von 57,56 m² bis 118,26 m² Nfl., zu Ihrem individuellen Wohntraum. Von Gartenwohnungen über elegante Balkonwohnungen bis hin zu luxuriösen Penthouses.
Highlights:
- Moderne Architektur von Andrea Vattovani
- Gemeinschaftsgarten mit Spielplatz, Grillbereich, Tischtennisbereich und Schachtisch, Urban Gardening und Insektenhotels
- Fußbodenheizung über Luftwärmepumpe
- Sattelitenanlage
- Voraussichtlicher Baustart: Sommer 2025
- Voraussichtlicher Fertigstellungstermin: 06/2026
- Honorarfrei für Käufer:innen
Tiefgaragenparkplätze ab € 22.500,- brutto erhältlich.
Trotz Ruhelage sind die Wohnungen sehr gut an das Grazer Verkehrsnetz angebunden (Bim-Linie 7, Bus-Linien 710, 711, 712). Egal, ob per Rad oder öffentlich: Ohne große Umwege gelangen Sie bequem ins Stadtzentrum sowie zu nahegelegenen Kindergärten, Schulen und zur Fachhochschule Joanneum.
Bei den angegebenen Fotos handelt es sich um Symbolfotos.
Grundrisse und Flächenangaben der Bauausführung können aufgrund technischer oder baulicher Erfordernisse abweichend ausfallen.
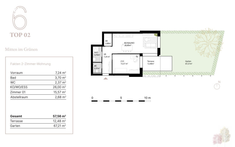
Die 2-Zimmer-Wohnung:
Die TOP 2 erstreckt sich auf ca. 57,56 m² Nfl. und bietet ein einzigartiges Wohngefühl. Diese 2-Zimmer-Wohnung kombiniert gekonnt die Vorteile von Garten und Terrasse. Der Wohnbereich öffnet sich zu einer großzügigen, östlich ausgerichteten Terrasse mit direktem Zugang zum eigenen, ca. 67,21 m² großen Garten – perfekt für gemütliche Stunden im Freien.
Wir weisen darauf hin, dass zwischen dem Vermittler und dem zu vermittelnden Dritten ein familiäres oder wirtschaftliches Naheverhältnis besteht.
Infrastruktur / Entfernungen
Gesundheit
Arzt <500m
Apotheke <500m
Klinik <500m
Krankenhaus <1.500m
Kinder & Schulen
Schule <500m
Kindergarten <500m
Universität <2.000m
Höhere Schule <2.000m
Nahversorgung
Supermarkt <1.000m
Bäckerei <1.000m
Einkaufszentrum <3.000m
Sonstige
Geldautomat <500m
Bank <500m
Post <500m
Polizei <2.000m
Verkehr
Bus <500m
Straßenbahn <500m
Autobahnanschluss <3.500m
Bahnhof <2.000m
Flughafen <9.500m
Angaben Entfernung Luftlinie / Quelle: OpenStreetMap
Eckdaten Objektnr. 961/35086
| Art: | Wohnung |
| Land: | Österreich |
| Zustand: | Erstbezug |
| Kaufpreis: | 339.000,00 € |
| Nutzfläche: | 57,56 m² |
| Zimmer: | 2 |
| Bäder: | 1 |
| WC: | 1 |
| Terrassen: | 1 |
| Garten: | 67,21 m² |
| Heizwärmebedarf: | B 42,40 kWh/m²a |
| fGEE: | A+ 0,75 |
Ihre persönliche Beratung
Dieser Makler ist ein offizielles Mitglied des IR – ir.at Mehr Erfahren

