Moderne Bürofläche nahe Flughafen und Autobahn
Büro / Praxis
- Bürofläche,
5020
Salzburg
,
Innsbrucker Bundesstraße 140
Das Business Center West liegt an der Innsbrucker Bundesstraße stadtauswärts fahrend rechter Hand unmittelbar vor der OMV-Tankstelle vor der Flughafen-Unterführung sowie der Abzweigung zum Hangar 7 (Michael Spazier Strasse). An der Achse zum Flughafen, Airport-Center und Autobahnknoten Salzburg-West gelegen, ist eine perfekte Verkehrsanbindung gegeben. Die Fahrzeit ins Stadtzentrum und die Altstadt beträgt meist weniger als 10 Minuten.
Beschreibung der Immobilie
Moderne Bürofläche nahe Flughafen und Autobahn
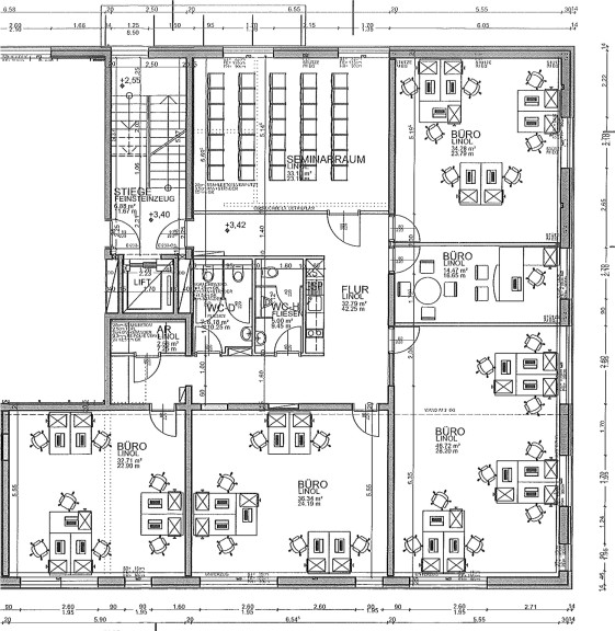
Modernes Büro im Business Center West - Raumaufteilung flexibel möglichDie vermietungsgegenständliche Büroeinheit befindet sich im 1. OG eines sehr gepflegten Bürogebäudes. Die barrierefreie Aufschließung mit Lift ist gegeben.
In den Betriebskosten sind inkludiert Aufzug und Klimakosten-Akonto.
Die Räumlichkeiten sind hochwertig ausgestattet, zur Grundausstattung gehören eine integrierte blendfreie Beleuchtung, elegante Sanitäranlagen sowie sämtliche Anschlüsse. Einziehen und durchstarten ist hier das Credo.
Die Einheit befindet sich in einem sehr guten Zustand und kann bei Bedarf nach Rücksprache mit dem Eigentümer adaptiert werden.
Eckdaten Objektnr. 505240109_4
| Art: | Büro / Praxis - Bürofläche |
| Land: | Österreich |
| Baujahr: | 2010 |
| Gesamtmiete: | 4.490,33 € |
| Kaltmiete (netto): | 3.000,00 € |
| Miete / m²: | 12,00 € |
| Betriebskosten: | 672,50 € |
| Heizkosten: | 69,44 € |
| Bürofläche: | 250,00 m² |
Ausstattung
Zentralheizung, Personenaufzug, DV-Verkabelung
Ihre persönliche Beratung
Dieser Makler ist ein offizielles Mitglied des IR – ir.at Mehr Erfahren
